编者按:本项目为天津大学新校区综合体育馆,相比于时下通过装饰获得的夸张、恣意的建筑形象,本设计中裸露的结构产生的“建构”之美,以及由此带来的沉静、朴素和富有韵律感的空间,呈现的则是另一种更加恒久的空间“诗意”。
专题链接:专题学院·第52期 国内大学建筑合集,查看更多优秀国内大学建筑案例。
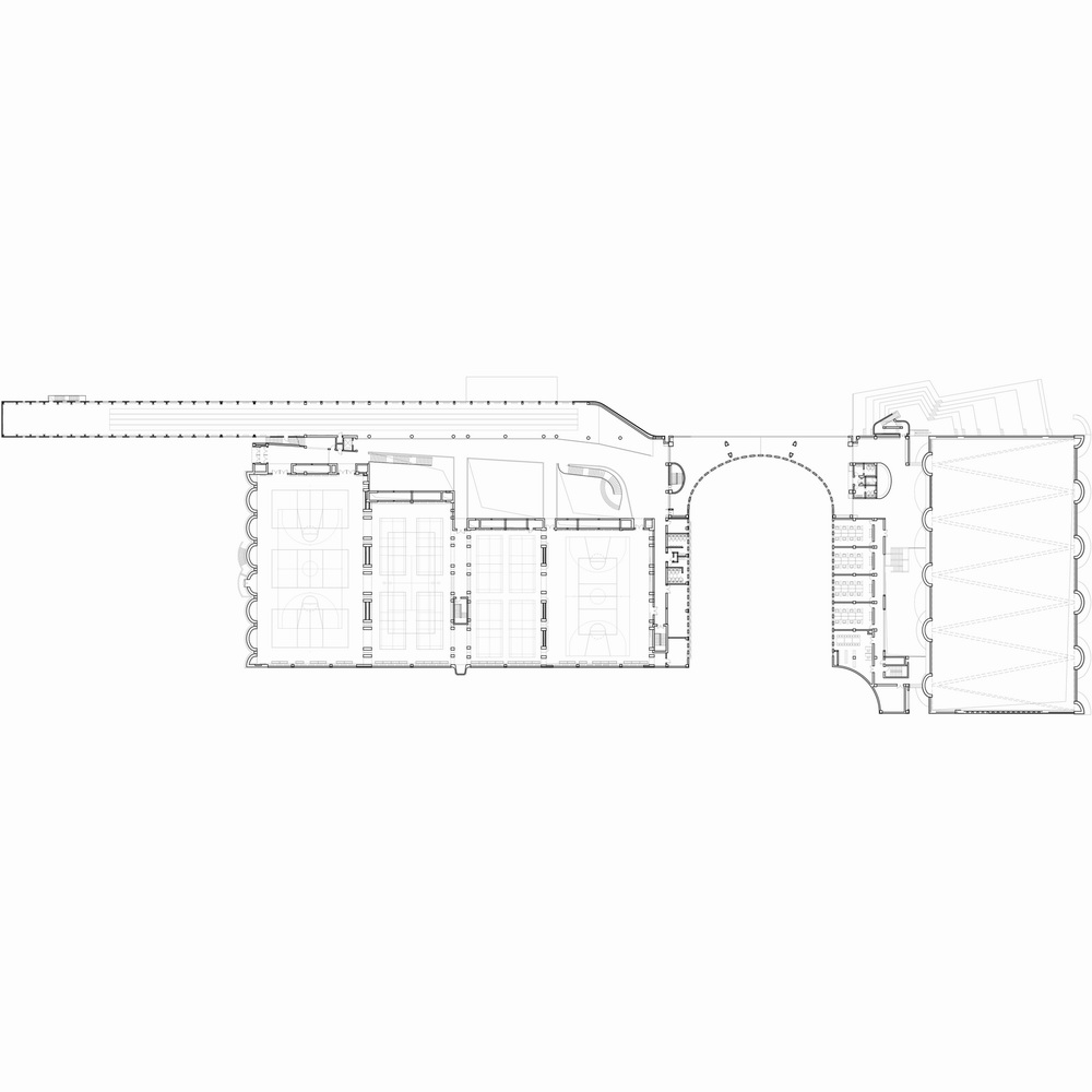
天津大学新校区综合体育馆位于校前区北侧,建筑主体包含室内体育活动中心和游泳馆两大部分,以一条跨街的大型缓拱形廊桥将两者的公共空间串通为一个整体,并形成一个环抱的入口广场,沟通建筑东西和南北。
各类室内运动场地,依其对平面尺寸、净空高度及使用方式(专用或兼用)的不同要求,紧凑排列,并以线性公共空间(公共大厅、缓拱廊桥和游泳馆门厅)叠加、串联为一个整体,不仅增强了整个室内空间的开放性和运动氛围,而且天然造就了错落多样的建筑檐口高度,以及高效而舒展的平面布局。
设计强调在几何逻辑控制下对建筑基本单元形式和结构的探寻,重复运用和组合这些单元结构,以生成特定功能、光线及氛围的建筑空间。室内体育中心的公共大厅屋面采用了波浪形渐变的直纹曲面形屋面(空心密肋屋盖结构),其东侧长达140米的室内跑道,不仅为大厅带来凸显屋面形状的自然光线和向远处延伸的外部景观,而且那些奔跑于架高跑道上的人,也成为可由室内外空间中欣赏的独特风景,彰扬建筑的运动主题。
运动场地空间的屋顶和外墙,使用了一系列直纹曲面、筒拱及锥形曲面的钢筋混凝土结构,带来大跨度空间和高侧窗采光,在内明露木模混凝土筑造肌理,在外形成沉静而多变的建筑轮廓。达到建筑结构、空间与形式完美统一。
相比于时下通过装饰获得的夸张、恣意的建筑形象,本设计中裸露的结构产生的“建构”之美,以及由此带来的沉静、朴素和富有韵律感的空间,呈现的则是另一种更加恒久的空间“诗意”。
技术图纸
△总平面图
△平面图
△西立面图
△剖面图
△屋盖轴测图
△过程草图
项目信息
建筑设计:李兴钢建筑工作室
面积:18362m²
项目年份:2015年
摄影师:孙海霆,张虔希,张广源,Yuan Huang 黄源
厂家:东方世爵,中节能国环,益汇达
结构设计:任庆英、张付奎、李森
项目获奖:2016,WA中国建筑奖技术进步奖优胜奖
设计团队:李兴钢、张音玄、闫昱、易灵洁、梁旭
City:津南区
Country:中国

BIM建筑网

















