© Hertha Hurnaus
©Steven Holl
在维也纳以西 60 分钟车程的格朗罗伊斯,在一个微微向南倾斜的葡萄园坡地,斯蒂文霍尔事务所为罗仙姆酒店完成 30 间客房的扩建工程。与当地建筑师 Sam-Ott- Reinisch 的再次合作,新建筑延续了 2005 年原罗仙姆酒店和葡萄酒中心的设计概念。
© Hertha Hurnaus
© Hertha Hurnaus
© Holzinger/Sam Architects
©Steven Holl
©Steven Holl
© Holzinger/Sam Architects
© Holzinger/Sam Architects
© Hertha Hurnaus
© Holzinger/Sam Architects
新扩建的设计概念为“地面之上”,通过预制拱顶空间与原有拱顶相连。入口的倒影池反射出建筑曲面的几何形状。
“建筑,无疑是一种协作,当合作团队是由真正的朋友以及很棒的业主所组成时,这尤其令人愉快,他们深深欣赏建筑所传达的精神与对细节、光线和空间的热爱。”
——斯蒂文·霍尔
© Hertha Hurnaus
© Hertha Hurnaus
扩建部分的屋顶和墙面都覆盖莱茵锌克(Rheinzink),这种天然磨砂材料经过风化后与周围景观和天空融为一体。从酒店房间的玻璃幕墙可瞭望远处的山脉、葡萄园和原有的罗仙姆酒店以及葡萄酒中心。木制外露混凝土墙与定制的天然木制家具形成完美的互补。
© Holzinger/Sam Architects
© Holzinger/Sam Architects
© Holzinger/Sam Architects
© Holzinger/Sam Architects
© Hertha Hurnaus
技术图纸
△总平面图
△地下一层平面图
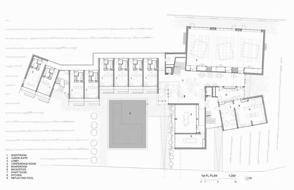
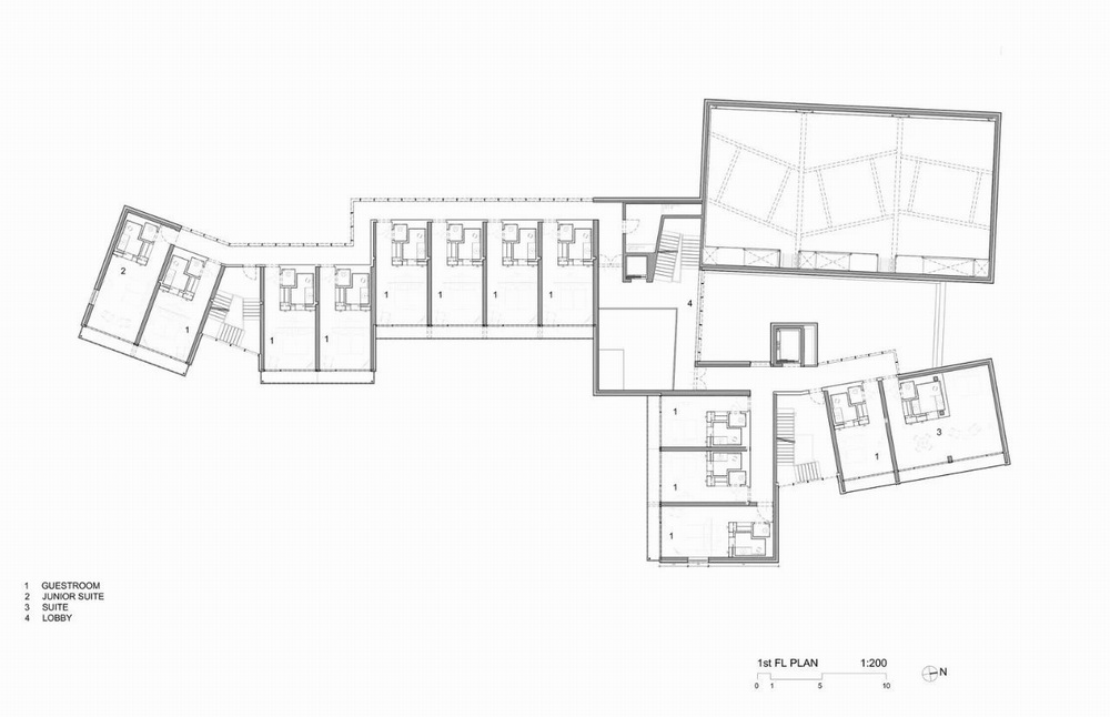
△一层平面图
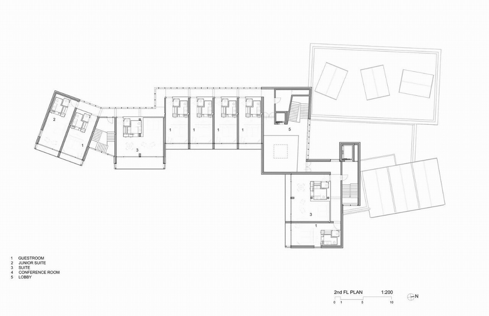
△二层平面图
△三层平面图
△屋顶平面图
△立面图
△立面图
△剖面图
△剖面图
©Steven Holl
©Steven Holl
©Steven Holl
©SHA
©SHA
©SHA
项目信息
建筑设计:斯蒂文·霍尔建筑事务所
地址:Loisium-Allee 2, 3550 Langenlois, 奥地利
项目年份:2021
摄影师:Hertha Hurnaus,Holzinger/Sam Architects
建筑面积:2900.0 平方米
主创建筑师:斯蒂芬·霍尔
负责合伙人:Noah Yaffe
项目设计师:Lourenzo Amaro de Oliveira
设计团队:JongSeo Lee, Ruoyu Wei, Lucas Almassy
当地设计师:ottreinisch .architecture
当地设计团队:Sam-Ott-Reinisch, Irene Ott-Reinisch, Franz Sam, Gregory Holzinger, Karin Sam, Daniel Wohlschlager
结构工程师:RETTER & Partner Ziviltechniker
MEP 工程师:KWI Engineers GmbH
承包商:Swietelsky AG

BIM建筑网




































