△二层 钢丝桥 ©孙海霆
△4.5m书架与钢丝绳桥 ©孙海霆
我们理想的住宅设计是以空间为主导的,包含真实朴素的材料与技艺,持续新鲜与宁静感受的居所。为营造这样的环境,“手艺”往往意味着非常规的做法,或许不能和传统的精雕细琢相提并论;但在今日批量工厂生产的环境里,手艺实验是达到某种特别空间感受的途径。
这一户型位于90年代末砖混结构住宅楼顶层跃层;1层客厅朝西,2层阳光房朝东。房间都串联在东西方向上,楼梯狭窄靠墙。这是基础的自然条件。
△工地原照片
我们的设计一直在尝试园林与现代建筑之间的关联性,除了游走路径的串联与可达、在空间中划分更小的空间、愉快的探索感、视线通透与对望、光线与材料、对传统的隐喻与童心未泯的快乐,在住宅里还能与园林建立怎样的空间关联呢?
·空间的调整
△轴测分解图
调整空间格局通过三个主要操作,其余的房间梳理围绕这三个核心:
(1)一层的玻璃砖弧形墙把客厅分出一部分给阳台,给客厅带来异质的因素。玻璃砖墙、书架与楼梯集合成一件小家具。卧室的隐私有了一定的保障,而且还保证客厅有两个采光光源。
△一层客厅楼梯集合家具 ©孙海霆
△玻璃砖弧形墙与卧室 ©孙海霆
△把阳台划分出去之后,客厅还保证有两个窗口的采光
(2)二楼是一个4.5m高的坡屋顶阁楼。搭建夹层需要通透性,以免破坏空间感。玻璃夹层未免落入俗套,并且,玻璃的反光倒影也与这个空间格格不入。因此,我们使用了两个弯曲的钢桁架来建造桥,并用钢丝网编织了几乎透明的网,透过钢丝网去看4.5m高的红砖墙书架,视野完全不受阻碍。桥的钢桁架没有刷成白色或其他颜色,留下了原始抛光焊接的痕迹。提供了陌生化的室内景观。钢丝绳网过滤的光线,也有些许幻想色彩。木工师傅李兵帮我们编织了这个小桥,绷紧钢丝绳的过程中悬挂超过80kg的重物,也为钢丝绳网增加了预应力。
△二层钢丝桥与下方书房 ©孙海霆
△二层客厅与钢丝绳编织桥 ©在造建筑
(3)二层4.5m高的卧室增加了一个斜坡屋顶的“小房子”,屋顶上形成一处小空间。屋檐延伸到相邻的客厅,屋檐、竹窗下方形成一个小书房。我们喜欢“小河里的大鲨鱼”的尺度对比感:钢丝网桥、卧室屋檐下方比窗洞口延伸的竹子窗,都是这一感觉的实现。
△二楼卧室小房子 ©孙海霆
△二层卧室与坡屋顶 ©在造建筑
△二层钢丝桥 ©在造建筑
·房间的梳理
△轴测分解图
一层拆旧之后,厨房敞开,通过一个黑胡桃木悬挑餐桌,密集解决通常最占空间的玄关-餐厅-高坐具的家庭中心。为客厅腾出更多自由的面积。
△一层客厅悬挑桌子 ©孙海霆
△手工凿毛的混凝土梁与构造柱
△一层客厅与榫卯支架 ©孙海霆
为了遮挡油烟,我们设计了一道剖切厨房的拉帘,用常见的8cm宽透明pvc折叠拉帘来完成这一隔断。厨房台面是连续的,拉帘也因此切为L形。
△一层厨房 L形的pvc现成拉帘 ©在造建筑
一层入口是房屋结构的一个败笔,横亘了一个巨大的梁,给人以压抑感,这里也是通向楼上的开口处。我们把混凝土梁凿毛,和周边细腻的材料形成对比,这里的低矮空间也恰好成为餐桌的限定区域。
△一层主卧望向玻璃砖卧室,餐厅-玄关-高坐具中心集中一处 ©在造建筑
△一层客厅楼梯与混凝土梁,入口看向玻璃砖卧室阳台 ©在造建筑
△一层卫生间浴室墙壁嵌入船用的舷窗 ©孙海霆
一层浴室墙壁嵌入船用的舷窗,不损坏结构的前提下引入光线和空气。
二层最高处层高4.5m,原阳光房朝东,提示了户外感觉。这里做成水洗石铺地与墙面,弧形转角,成为一处室内的小园。
△二层 叠石沙发与洗石子花园 ©孙海霆
△叠石沙发在洗石子花园里 ©在造建筑
二层坡屋顶下方梁后是一个小三角空间,原本被封住。我们将它打开,木地板延伸进去,玻璃砖为之带来采光,让这个三角空间显得更开敞。
△坡屋顶下方的三角空间 ©在造建筑
△一层上二层楼梯间的玻璃砖通到二层的坡屋顶©在造建筑
·材料与细部
弧形玻璃砖墙开长窗,我们找到一块松木虫蛀板,木工师傅李兵建议做了四扇折叠实木板窗,可以变化成一张内向的桌面。
△折叠窗示意图
△一层 客厅卧室的弧形玻璃砖墙 与木折叠窗 ©孙海霆
△一层弧形玻璃砖墙木折叠窗 ©在造建筑
△木折叠窗的插销与风钩 ©在造建筑
△制作过程中排虫蛀板的花纹 ©在造建筑
△弯折89度的穿孔板楼梯踏板,工厂直接弯折出这一角度,两块板弯折完成后在现场焊接 ©在造建筑
△二楼卧室上夹层的压花玻璃墙 ©孙海霆
二楼衣柜背后是上夹层的楼梯。工人偶然取消了楼梯侧面板上方的背板。我们将错就错,将衣橱的背板留空,并嵌入压花玻璃。后面过道影影绰绰。
△化石 门把手 ©在造建筑
△化石 门把手2 ©在造建筑
我们用三叶虫和鹦鹉螺化石替换了一些工业门把手。自然的光泽和形式使朴素的橡胶木指接板优雅。2楼主卧室的对开门是两个三叶虫化石。这种化石本身是泥质沉积岩化石,质地相对来说比较疏松。顺势在书架相应的位置做镂空,这样在门完全开平的时候,三叶虫可以藏在书里。中国古代对开的门上,一般都装有铺手,铺手的高度往往是在视线高度。而现代人装门把手,一般只有1100mm的高度,便于单开门的用手习惯。而对开门与此截然不同。而且对开门的仪式感和单开门很有差异。最初装在1100高度,后来提高到视线高度,因此即便是熟稔传统工艺的木匠师傅,也免不了受到现代工业产品习惯的影响。
△二层主卧对开门的把手在视线高度 ©在造建筑
在工业门把手的墙面位置,我们把墙做了挖空的处理。门完全开平的时候,门把手可以顺势藏在墙里。
△二层钢丝绳网的光影 ©在造建筑
二楼阳台空间由小颗粒的水洗石做成,地面和墙壁都是凹凸不平的质感,让人联想到室外花园的粗糙感,这里成为放置植物和石头的抽象空间。
△二层卫生间的水洗石墙面与地面,以及浇筑的洗手池 ©在造建筑
△洗手池浇注模
钢丝绳网桥的制作与编织过程,使用木板模板制作弧形钢板,焊接铁链作为编织钢丝绳的拉扣,钢丝绳编织的过程需要不断绷紧拉伸。
△栏杆模板,施工队长江工 ©在造建筑
△李兵师傅在绷紧钢丝绳 ©在造建筑
竹子窗的制作,仅仅在左右两侧,露出纤细的不锈钢槽。上下两个边框都用竹子遮挡住不锈钢方框。
△二层卧室屋檐 竹子窗 ©孙海霆
△小洞口与长弧形竹窗 ©在造建筑
我们使用回收榆木门板做了一个抽象的“叠山”,这也是可以坐的一件家具。这个花园为封闭的室内带来一丝幻想空间的味道。李兵师傅自制的锯条,现场做榫卯。
△叠石沙发示意图
△叠石沙发 ©在造建筑
△叠石沙发2 ©在造建筑
红砖墙上的搁架,制作了榫卯连接的弧形置物板。
△李兵师傅自制开榫卯的锯
△榫卯连接的弧形置物板
我们在这一次设计依然希望打磨材料与技艺,寻找和园林感共通、但又不做作的形式。希望在这个住宅里的居住可以寻找到轻松和持续的新鲜感,从朴素的材料与体面的手艺里获得更多的宁静。
技术图纸
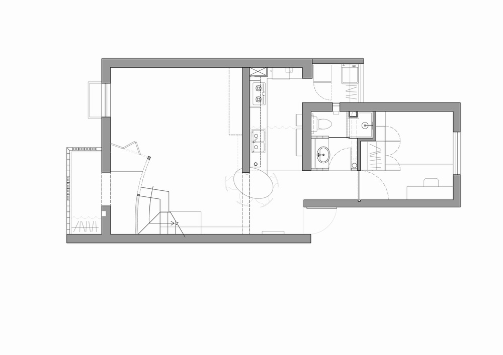
△一层平面
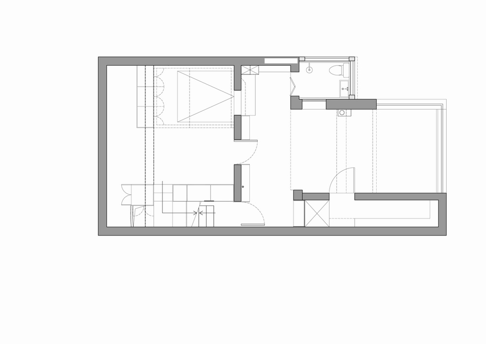
△二层平面
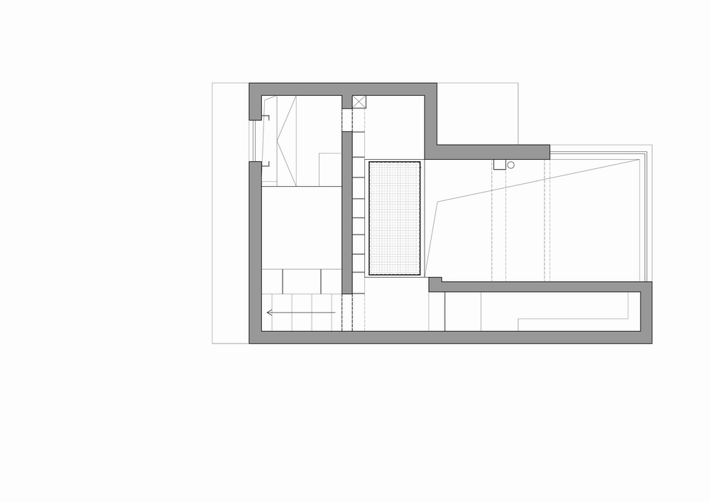
△二层夹层平面
项目信息
项目名称:手艺实验之家
项目地址:北京
设计单位:在造建筑
主案设计师:张清帆、张波
项目面积:110平米
设计起止日期:2020年1月-2020年4月
完工时间:2020年11月
主要材料:橡胶木指接板、穿孔钢板、钢板、钢丝绳、玻璃砖、榆木板、虫蛀松木板、水洗石、干粘石、水磨石、凿毛混凝土、竹子、化石、风钩、蝴蝶合页
项目摄影:孙海霆,在造建筑

BIM建筑网



















































