目前全球工业集热排放的总量有超过40%都来自于建造工业的能源排放。加之当下全球人口的增长和气候变迁危机的到来,建筑师在每个项目的设计和建造中都面临不小的挑战与责任。
该项目坐落于挪威波什格伦 (Porsgrunn)的西福尔-泰勒马克郡 (Vestfold og Telemark),这栋11层的建筑物旨在延续当地自19世纪以来拥有最大水力发电厂的历史。新落成的泰勒马克郡能源厂意在体现当地对绿色能源的持续投入与关注,以及其在脱碳方面的领先表现。大楼东南向的立面和屋顶,每年可生产25.6万千瓦时的能源。这个量级的能源是挪威当地普通家庭年度能源使用量的20倍。生产能源的过剩部分将被储存在当地的能源网络中。
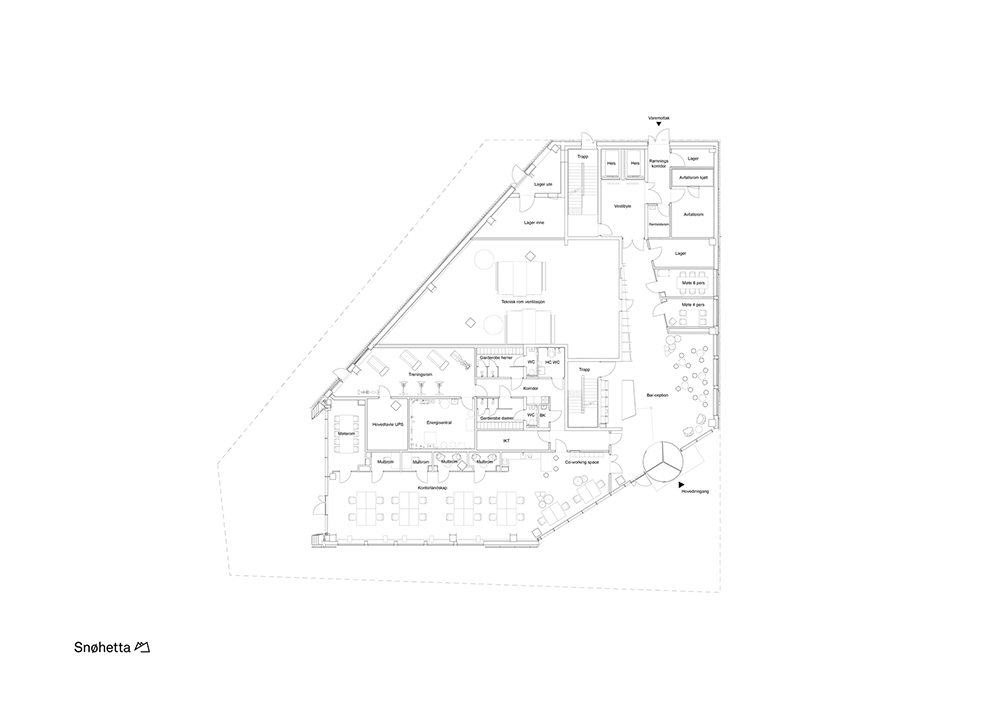
该建筑倾斜且略呈圆锥形的外观造型,在东侧立面上具有一个清晰的45度倾斜凹口。这样一来,这个能源厂就可以在Herøya工业园区内有着一个代表性的外观风格。该项目包含了一个接待室、办公空间、两层的联合办公空间、共享员工食堂、顶层会议室、以及一个屋顶露台。建筑师利用两个巨大的台阶将建筑的地面层与屋顶层连接在了一起,从接待室一直贯穿到员工食堂和顶层会议室。位于九层的木制直台阶,将员工食堂和顶层会议室彻底贯通,并给来访者提供了前往屋顶露台的路线。
该项目还以获得BREEAM特级认证为目标,来体现其在可持续发展方面的雄心壮志。这个项目不光意在服务所在的街区环境,还试图给全世界提供一个可持续设计的空间样本。
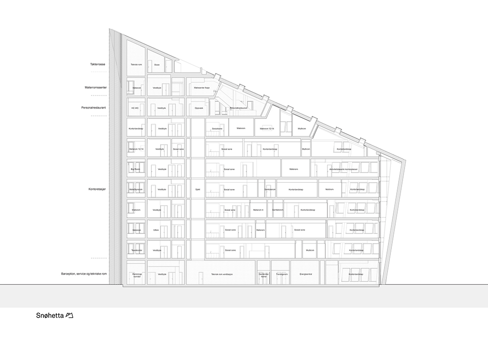
该项目的一大亮点在于24度缓慢倾斜的屋顶。建筑师意在尽可能地扩大屋顶的表面积范围,以收获最大数量的太阳能能源。除了光伏顶篷外,建筑师还用PV电池对建筑的南侧立面进行了包裹。
建筑西侧、西北侧和东北侧的立面使用的是木制栏杆。这样一来,立面就会在太阳光的照射下,产生一定的建筑阴影。木制栏杆立面的后一层使用的是Cembrit立面面板,以保证建筑整体的统一表达。该项目是一栋被动式房屋,建筑师采用了三层隔离窗户来保证内部的超级隔热性能。混凝土面板的使用也使得该建筑可以在白天较快地储存热量,并在夜间散失较少的热能。建筑每层所设置的水循环系统,保证了建筑物内部冷却和加热系统的高效运作。
内部空间的设计原则是满足基本的功能需求,并减少不必要的浪费。因此,该项目的楼板、玻璃墙、办公室分隔、厨房设计、灯光和卫生间都采用了相同的设计元素、色彩和材料。该项目灵活的空间设计和双层的联合办公空间,使得业主和未来的潜在租户可以轻松地对内部空间进行规划和再设计。
建筑师在项目的材料选择上,以环境可持续性为基本原则,挑选的都是具有韧性和低能耗的材料。因此,该项目主要使用了当地的木材、石膏和环保混凝土。甚至,建筑师并没有对这些材料进行进一步的处理和修饰。从厨房内的各种材料到地毯砖和各类家具,建筑师选择的都是高质量且具有持久度的材料。地毯砖的组成中有70%是回收渔网。而木地板是由工业烟灰所再生的木质碎屑打造而成的。空间内定制的叶片导视系统完美地满足了不同办公空间的区分需求,并减少了不必要的材料浪费。
建筑师采用了传统且高效的照明方案,以保证该项目在人工照明上的最低能效。屋顶的特殊垂直角度,使得日光可以轻易地进入建筑的顶部三层空间。而亮色家具的选择,也使得室内照明的效率达到了最大化。
该项目和多个姊妹项目,包括Kjørbo能源厂, Montessori能源厂和Brattørkaia能源厂,都试图提供一个环境经济型的可持续建筑样板。同时,这些项目还很好地回应了新冠疫情下的办公空间设计。
技术图纸
△总平面图
△平面图
△立面图
△剖面图
项目信息
建筑师:Snøhetta
面积:7931m²
项目年份:2020
摄影师:Ivar Kvaal
厂家:STENI
技术承包商:Skanska
技术设计:Skanska teknikk, Asplan Viak
Country:挪威

BIM建筑网





















