△ 项目用地鸟瞰
项目地位于四川省成都市成华区,中环路锦绣大道段与金马河路交汇口处,距成都东客站300 米,地理位置十分优越,作为城市商业综合体项目的营销中心,目前已完工即将投入使用。
01/ 简约时尚的玻璃艺术
定位青年群体的都市体验式营销中心,简洁时尚的建筑立面,灵动自由的室内空间,线面结合的立面手法,无处不体现简约时尚的气息。米白色花岗石的厚重,无框通透超白玻结合无框折面白釉玻的轻盈组合,形成强烈的虚实关系,凸显折面白釉玻所呈现的独特视觉体验。
02/线面构成的空间魅力
两层之间的深褐色铝板线条打破整体形态,折面白釉玻与通透超白玻整体外凸,分而不离。
△折面白釉玻璃
竖向深褐色金属杆件与横向杆件呼应,隐而不透,虚实对比,形成线面构成的独特空间魅力。
△ 建筑材料分析
△ 白釉玻璃图案研究
△展示区
03/沉浸体验的动态游览
营销中心作为项目的展示区,我们希望能提供一个沉浸体验的动态感官,承载视觉艺术的展示空间,入口广场引入,灰白渐变的铺装引导,拾级而上的景观楼梯引人入胜,景观楼梯两侧水景犹如都市田园,由大入小的空间体验,再到宽敞的大厅、舒适的洽谈区,山水诗意的空间启发人们对理想生活的美好期望。
△吧台
△洽谈区
△洽谈区
△总平面图
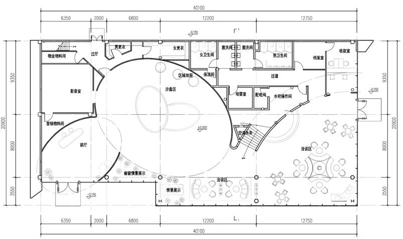
△首层平面图
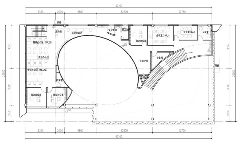
△二层平面图
△屋顶层平面图
△西立面图
△东立面图
△南立面图
△北立面图
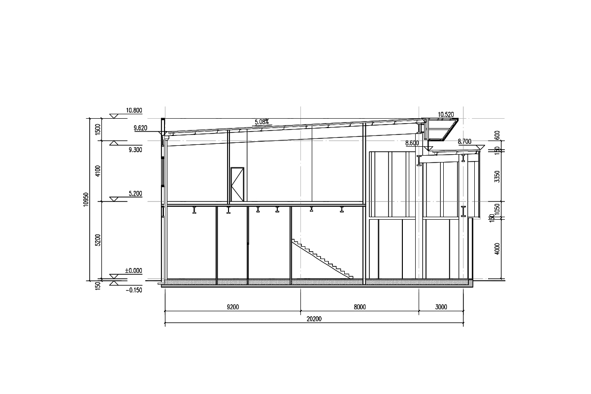
△剖面图
项目信息:
项目名称:成都成华和悦广场营销中心
项目地址:中国,成都,成华区中环路锦绣大道段与金马河路交汇口
建筑面积:1229.33平方米
业主:润达丰控股集团有限公司
业主设计负责人:顾磊、王德龙
设计公司:汉嘉设计集团股份有限公司西南分公司
微信公众号:汉嘉西南
总建筑师:王哲
设计总监:王川
方案团队:周雨坤、张奇、刘婷婷、滕树杰
施工图团队:傅海、李世峥、王兴德、邹银水、王绍恒、陈绥羽、王建军
平面团队:余咏润、张子扬
完工时间:2021年
建筑主材:石材、超白玻、白釉玻、铝板
摄影师:邓科

BIM建筑网




























