【竹海】创研于湖的南边,是中国竹子主要原产地之一,顺应地利【竹海科技】是针对竹业开发,管理,供应,研发,生产,销售的全球首家“竹”全产业集团。潜心研发 “竹炭板”以优渥的属性正逐步替代传统板材,这将是不可回避的“环保革命”。
【竹海】早于2019年便启动了“全球计划”将于全世界各大核心区位建立营运中心。即便是2020年伊始的全球疫情突发亦未影响到他们的布局。特区汕头作为粤港澳,长台闽两个超级大区的核心枢纽有着绝佳的区位优势【竹海】决定落子于此借力粤东辐射东南沿海区域。
GGD好好设计创始人林彦先生与【竹海】广东区域负责人温少歆先生一同在地考察现场时提出:希望是结合空间的特质,去建构一个“去”商业化的商业艺术展示空间,让设计和艺术去助力销售。多年的商业设计经历使林彦变得触觉灵敏并具备快速捕捉到精准 “用户画像” 的能力。
新址位于新津片区,这里原本是农业区域,或许是因为中心城区的可用面积日趋紧张,近年来变成各类建材资本扎堆的地方。质朴的环境与新兴的建筑物形成强有力的冲击感,在无字句处读书,无序却又焕发生机与可能性。
场域的前半段,由入口将访者带到极端,单一动线的规划是设计师林彦刻意而为之。设计师改变惯性入口,将大门移动至空间整体最鸡肋的位置,将其打造成独立入口,有意在其中安插各类场景,让访者代入其中。立面大玻璃邀请日光肆意挥洒,任其在天地壁【竹炭板】留下行径的轨迹,点亮空间材质的肌理,铺陈出时间的印痕。
轻松的基调,在刻意打造的沙龙场域中蔓延,试想我们可以在此进行不只是公事上的一切日常活动,而你我皆受邀其中。林彦认为设计的底色是【突破限制】,因此让两根方管去撑起一整块实心大理石,石料在没有“下地”的日子里,将承载多个重要“角色”这是【技术与艺术】的结晶,亦是【竹海】对于极致态度的前导语言。
一切的呈现本该是动能,在此刻犹如一个静默的时空,让到访者集中注意力将更有利于产品质感的呈现。用全球唯一【竹炭钢琴】奏响那些时间里最动人之处。
多功能长台的设计灵感来源于【达·芬奇】的《维特鲁威人》以比例最精准的男性为蓝本,因此后世也常以“完美比例”来形容当中的男性。
面层展示是【竹海】的立馆初心,GGD好好设计选用多项相异媒材,以直面且多元化的手法铺陈在空间,目的是希望访客参与会议时,去身临其境,去触摸,去感受温度。而不仅侷限在空泛的想象或大同的营销话术之中,让产品自己“发声”。
复合面材的呈现,让竹炭板不再是单一的炭黑。万能收口解决方案,增添视觉的分割韵律,形塑整体空间的美学,强调原料的环保属性。自入门初始,这便是一场单一材料运用的试验过程。
林彦认为空间的设计并不需迁就某个特定功能,材质的运用更应随心所欲,创造出无限的使用可能,以突显材质优越的兼容性。
宁可食无肉,不可居无竹。无肉令人瘦,无竹令人俗。————苏轼《於潜僧绿筠轩》
竹子自古就是自然馈赠人类的建材,但因为技术原因,天然的竹子其耐候性一般,鲜有百年的竹建筑留存于世。【竹海】将毛竹经过破碎再进行高温炭化,加工成活性炭粉压制成型。通过技术手段改变了竹子的物理形态,涅槃后的竹炭板低醛,高硬,防潮,净化,满足了现代人的“居竹”需求。
摆脱薄弱或无关的预设,以一种新的认识方式拥抱不确定性。迂回与虚掩。我们智造“未知”让来访者在无意识内跌入我们预设好的参观流程,犹如子弹上膛一般,根本停不下来。
被【竹炭板】包裹起来的洽谈空间,遁入虫洞般的空间折叠,犹如爱丽丝迷失仙境,纵横交错模糊了边界,迷失了尺度感,在白日里“秉烛夜谈”,与“互联网”争夺用户注意力是实体经济刻不容缓的思考。
优异的材质亦需配备成熟的整体解决方案,产品研发部执着于各类棘手的收口解决方案与款式迭代,为每一份委托保驾护航。
设计师林彦关注的是潜藏在背后的逻辑,起承转合、开合围敞。空间是容器,展厅容的是产品与人,空间的始终归于一点,两者之间由无数隐匿的副线贯穿。制造随机停留的可能,使访者保留更多时间与体力,对品牌做更深入的品读。
围绕选材间为回形的中心,空间顺时针将功能区域分为各类实例场景,通过动线的推敲,合理地分布并彼此交错相融。经由视觉的元素与空间语汇连接,潜移默化地促成人们在其中的行为,增强空间故事线索的串联,犹如打开潘多拉的魔盒,材质展示板背后对应的应用场景,增强现实身临其境。
精致趣味的场景是研究上大量的投入和近乎较真的细节执行,设计上从各个机能关联的推演得出最优的空间细分尺度,使【竹海】以一种独有的设计语境,完美诉说有关结构、材料和空间之间的品牌故事。不单是一个品牌展厅,这空间更是一本关于【竹炭板】的《应用指导手册》。
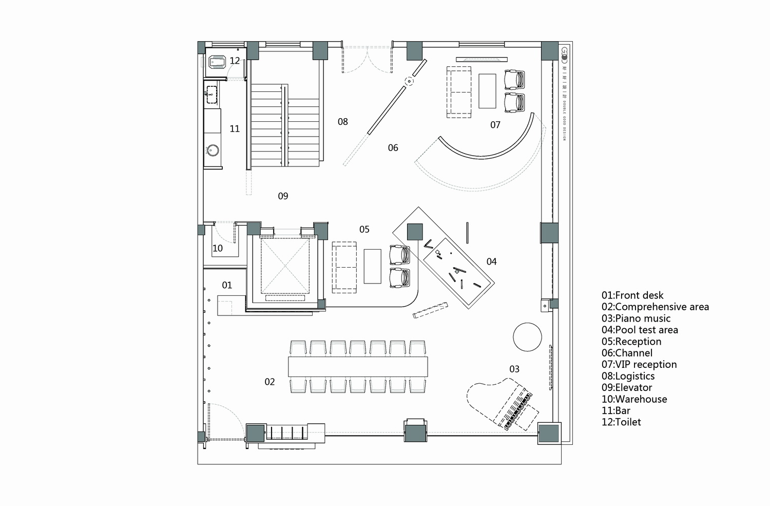
项目图纸
△平面图
项目信息
项目名称:竹海
设计方:好好设计
联系邮箱E-mail:651502334@qq.com
WeChat:651502334
项目设计&完成年份:2020年8月(启动设计)2021年3月(项目竣工)
主创及设计团队:林彦&丹仪
特别顾问:竹海广东运营团队 温少歆先生
项目地址:中国/广东省/汕头市/龙湖区/下九合/金英路1号
建筑面积Gross Built Area (square meters):1800M²
合作方:软装:好好优选/工程:王增林
主要材料:竹炭板(竹海)/大理石/彩钢板/涂料/线型灯/
撰文:灵验

BIM建筑网
































