本案位于扬州邗江区,建筑坐落于运河北路与古运河交汇处,地块南侧拥有扬州少有的东西向运河流域,河面宽达80米。我们利用 600 米运河风光带和 400 米私享归家路,串联起一公里河居世家的生活画面,犹如一幅《扬州河居图》,在河边徐徐展开。
设计最大程度地考虑了建筑的“在地性”。在空间规划上,我们采用扬州特色的园林设计手法,将艺术馆整体动线分成五个部分,打造壹门-贰园-叁堂-肆水-伍运的画意空间。我们希望对每个空间与建筑关系的细致刻画达到步移景异、引人入胜的观感效果。
建筑面向运河展开,与河形成对话的关系,运河的波浪堆叠前行,拍打于建筑之上,形成五片前后错位、形态各异的浪型立面。与建筑玻璃体量交错咬合,虚实相生,让建筑与场所更加紧密地联系在一起。
主立面由铝板格栅排列而成,通过重复的竖向线条,演绎出传统江南建筑的坡顶斜瓦。弧线元素在整体设计一以贯之,是构成整个建筑形象最重要特质的符号。建筑的灯光照明则尽可能地烘托建筑特色,形成强烈的韵律感。在夜幕降临,华灯初上,建筑仿佛又换了一幅模样,立于河畔。
立面上近十二米高的金属格栅幕墙是整个设计的一大难点,如何让金属杆件挺拔而又干净显得尤为重要。我们将金属杆件进行分类,采用模数化设计保证金属杆件尽可能规整,安装上使用套管固定的方式,减少背后固定的横梁数量,使格栅达到轻盈通透的效果。值得一提的是,我们借用扬州书印文化,在杆件的端头用金属刻印收尾,让建筑美于形体,惊于细节。
项目图纸
△户型图
△户型图
△户型图
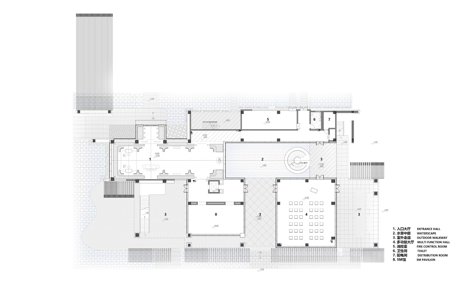
△平面图1F
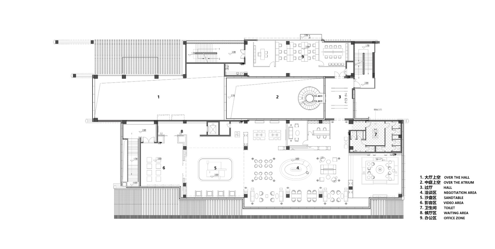
△平面图2F
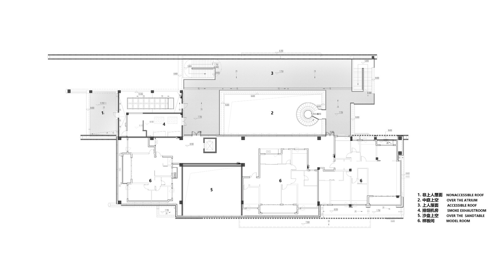
△平面图3F
△东立面图
△北立面图
△南立面图
△西立面图
△轴侧图
项目信息
项目名称:美的禹洲·大河艺术馆
项目地址:中国江苏省扬州市邗江区
占地面积:9432平方米
建筑面积:3068平方米
设计时间:2020年10月
完成时间:2021年05月
设计方:PTA上海柏涛
事务所网站:http://www.pta-sh.com.cn
主创建筑师:王珣、曹静怡、徐磊
设计团队:吴吉鸿,祝博,王丁辉,邱辰希,李磊,王云清,毛凯,张扬,李冲,张昕颖,王金,邹宏宇,林宁,赵世红,陈蔚天,陈杨墨,袁碧莹,张波,佘铭,程锡军,顾小嵩,陈啸,张依扬,刘欣
业主:美的置业、禹州集团
景观设计:上海魏玛景观设计规划有限公司
室内设计:上海牧笛室内设计工程有限公司
软装设计:重庆元禾大千艺术品有限公司
幕墙设计:上海盛斯建筑设计有限公司
施工图:中哲国际工程设计有限公司
摄影师:是然建筑摄影
主要材料:铝制金属型材、灰色透明玻璃、石材

BIM建筑网


































