RACE CLUB是来自韩国的品牌夜店,他们把韩国年轻人对舞池体验的新定义带到了西湖旁边。
夜幕降临,铁色的幕墙下缓缓燃起橙火,门前不规则起伏的金属仿佛移动的地壳,将大地剖出亮眼的红色,途径的行人目击着一场静止的地貌变化。
等候大厅头顶上的悬湖倒映着途径每一个惊喜的游人,流动的墙壁以及背后隐约绿植,构成都市里的隐秘景观。门廊的曲径将所有城市中疲惫的旅人,轻巧地连接在一起,引向更深的梦境。
来到隔音走廊,根据热力学第二定律,我们身处的世界不可挽回地从有序走向无序,直到宇宙中所有的能量全部变为热,而银是世上最好的导热金属,穿过这里,去接近能量的源头——舞池。
艳光洒向地板,静如落日般的天顶,将他们似火的热情无限放大,直至滚烫得像是他们踏入舞池时躁动的脉搏。都市林立的冰冷建筑中,独有此处一隅宛如日心。尼采说,不起舞的日子,都是对生命的辜负。
以往的舞池卡座都会配备沙发和酒几供客人休息饮酒,但这次我们取消了部分沙发卡座的设计,只做了不锈钢的地台,没有舒适的座位,年轻的人们反而热情,只要有一个人跳了起来,很快这份能量就会在这片区域感染开来。
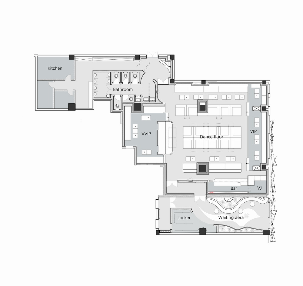
技术图纸
项目信息
项目名称:RACE CLUB
项目地点:杭州
场地面积:450平方
设计类型:夜店室内设计
施工团队:钟工
设计单位:间禾建筑设计咨询(上海)有限公司
设计成员:高可昕 许逸雯 杨睿 伊俊 陈生
摄影师:胡凯凡
项目视频:胡凯凡
舞美设计:刘海龙 王宝星 张乐
完工时间:2021年07月
公司网站:jh-architecture.net
联系邮箱:yang.design@foxmail.com
涉及材料:水泥,不锈钢,磨砂玻璃,大理石,镜子,LED灯,土质涂料。

BIM建筑网

























