社会医疗保障体系(medico-social support structure, SAMS)欢迎高级医师在回家之前来此作短暂的停留。这座新建筑是位于瑞士莫尔日(Morges)山丘上埃奇琴斯(Échichens)的 SILO 基金会的第二座综合楼。它提供了包括全科医生办公室、理发室和茶室等额外服务。
该项目希望融入场地和周边的建成环境,后者主要包括附近的村庄和 SILO 基金会的第一座建筑。新建筑试图在其间承担重要角色,连接现有的建筑物。
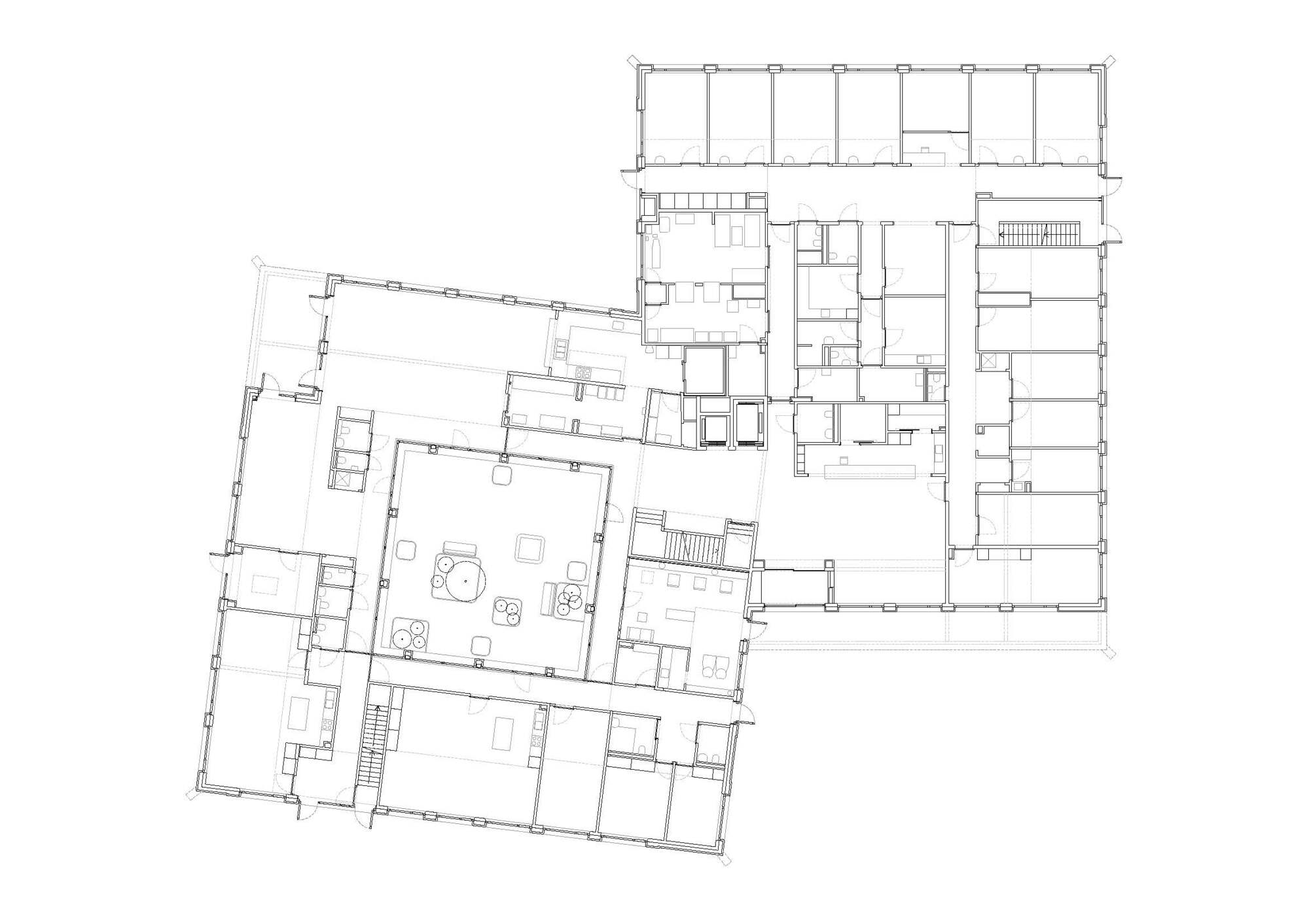
该建筑主要呈现为两个体块,每一个都围绕着一处庭院进行布置。因此,建筑的尺度也更贴合于乡村环境。立面采用的是预制的钢筋混凝土构件。
这座建筑是永恒的。作为字面意义上的服务建筑,它远远超越了自身的功能意义。尽管它可能看上去透出某种古代风尚,但它实际上提供了对于来自乡土遗产的结构主题的当代审视。与其说这是一种怀旧,不如说是要将该项目坚定地融入比其所在的文化背景更广泛的时间序列中的期望。
项目图纸
△模型图
△区位图
△总平面图
△一层平面图
△二层平面图
△屋顶平面图
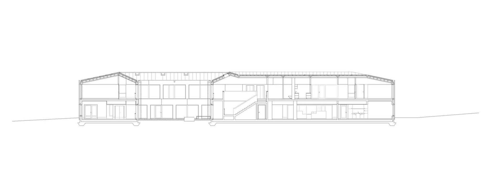
△剖面图
△剖面图
△剖面图
项目信息
建筑设计:Lacroix Chessex
面积:2450 m²
项目年份:2020
摄影师:Olivier di Giambattista
地点:瑞士,Échichens
微信公众号:xuebim
关注建筑行业BIM发展、研究建筑新技术,汇集建筑前沿信息!
← 微信扫一扫,关注我们+

BIM建筑网




































