Kendeda大楼创新可持续设计旨在促进环境教育、研究和一个支持社区外展的公共论坛。该项目是美国东南部第一个获得完整的Living Building Certification的项目,并为可持续性设定了新标准。它证明了在最极端气候条件中也能达到Living Building的要求。
设计灵感来自美国南部当地的门廊。该项目为校园重新构想了这种地域性的无处不在的建筑元素。更新的门廊实现了传统的功能,即在建筑物周围营造凉爽的微气候,并模糊室内和室外的界限。此外,门廊被用来满足Living Building Challenge的严格要求。光伏顶棚创造了该建筑超出100%的能源需求,并能积累足够的雨水来满足建筑中100%的用水需求。
从这所大学1880年代最早的承重砖石和木结构建筑以来,Kendeda大楼是第一座木结构建筑。与混凝土和钢系统相比,选择大块木材是因为其隐含碳足迹要小得多。但如果在这样的空间中仅靠木材支撑,是具有挑战性的,所以项目中使用了带有钢构的胶合叠层支撑柱,来实现较大空间的跨度。这种混合方法减少了所需的木材总量,同时使建筑功能区块的流线安排更加高效。支撑和横向元素完全暴露,使建筑成为一种教学工具,并定义了内部环境的特征。钉子层压木板在场外镶板并用吊车固定到位。
2.5万英尺长的2×4材料是从亚特兰大的生命周期建筑中心(Lifecycle Building Center)回收的,该中心从废弃的电影布景中获取板材。平台木板由当地非营利组织GeorgiaWorks!的学徒组装,提供宝贵的商业技能。新木材的下脚料用于制造中庭的三级座椅台阶。除了结构木材外,从校园和乔治亚州南部被风暴砍伐的树木中回收的木材还用于制作台面和家具。Kendeda大楼中所有使用的水都来自光伏顶棚收集的雨水。
经过处理的雨水用于饮水机、水槽和淋浴,这些装置产生的灰水被送到建筑物主入口的人工湿地。然后,这些水通过重力下渗到雨水花园和外部梯田的滞留结构。该大学目前花费了大量费用将暴雨积水排放到亚特兰大的延伸下水道系统中。Kendeda大楼展示了可以在整个校园部署雨水智能管理的可用策略。
真正衡量Kendeda大楼成功的标准是它在亚特兰大及其他地区激发的变革。现成的先进技术和产品意味着该策略可以被其他学校、机构甚至家庭屋主轻松复制。这座建筑延续了Kendeda基金十年来的工作,促进了亚特兰大建筑环境的可持续性。
项目图纸
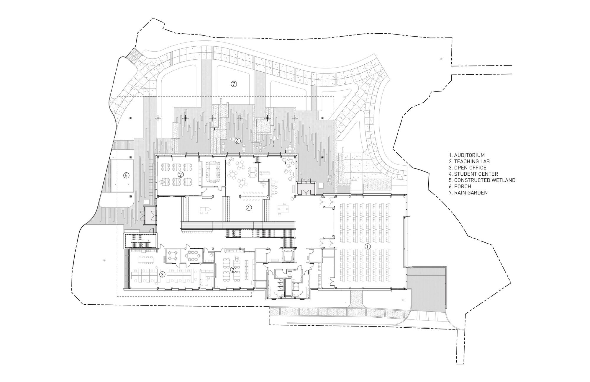
△一层平面图
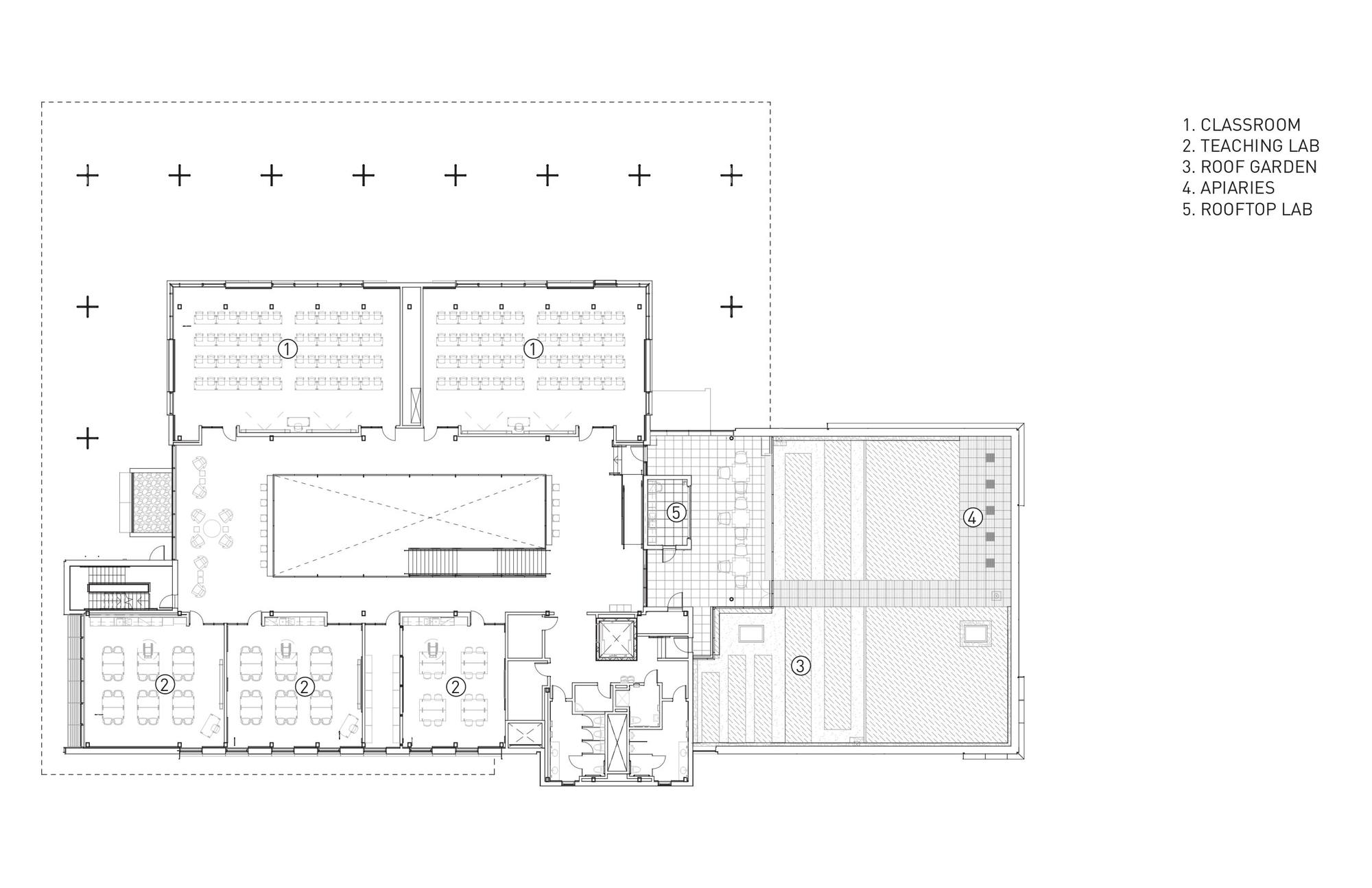
△二层平面图
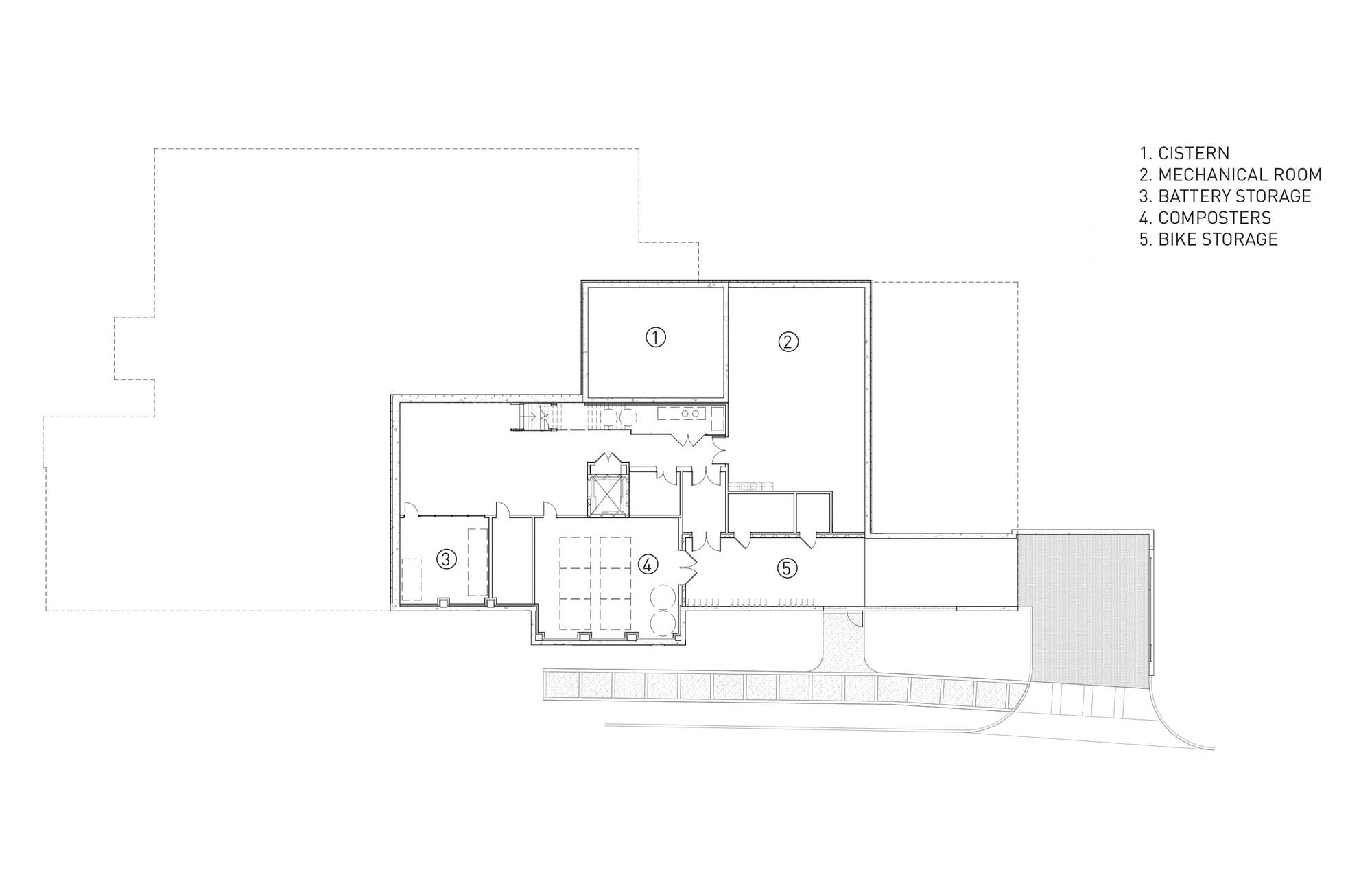
△三层平面图
△节点构造图
△立面图
△立面图
△立面图
△剖透视
△分析图
△分析图
项目信息
建筑设计:Miller Hull Partnership
面积:47000 ft²
项目年份:2019
摄影师:Jonathan Hillyer, Gregg Willett
厂家:Accoya, American Hydrotech, Assa Abloy, Bristolite, Clivus Multrum, Columbia Forest Products, Fluxwerx, GAF, Green Leaf Brick Company, Kawneer, Knauf, LG, Mecoshade, Milliken, Morin | Kingspan, Oregon, Prosoco, Sunpower, USG, Viracon
建筑设计与认证指导:The Miller Hull Partnership, LLP
Miller Hull 团队:Brian Court, Margaret Sprug, Chris hellstern, Matt Kikosicki
合作首席建筑师:Lord Aeck Sargent
灰水系统:Biohahbitats
地点:美国,Atlanta

BIM建筑网














































