从以车为本到以人为本
“江一洞119消防站”是位于江一洞地区的新消防站,江一洞是遵循首尔市(SMC)城市设计区规划在城市东南边缘的新开发区。我们通过关注消防站在当代应该扮演什么角色的问题来推敲设计。在研究了在相同建筑法规和计划下在首尔建造的现有消防站后,我们提出了一个关注消防员工作和生活条件质量的消防站。在过去的几十年里,占据消防站设计过程主导地位的是可容纳大量消防车的车库,并成为设计构图的中心,办公室和备用室等消防员空间因此被视为外围功能。我们的目标是如何通过克服这种传统形式,让消防站成为一个以人为本的建筑,同时保持其基础功能完美运转。
119消防站,消防员的第二个家
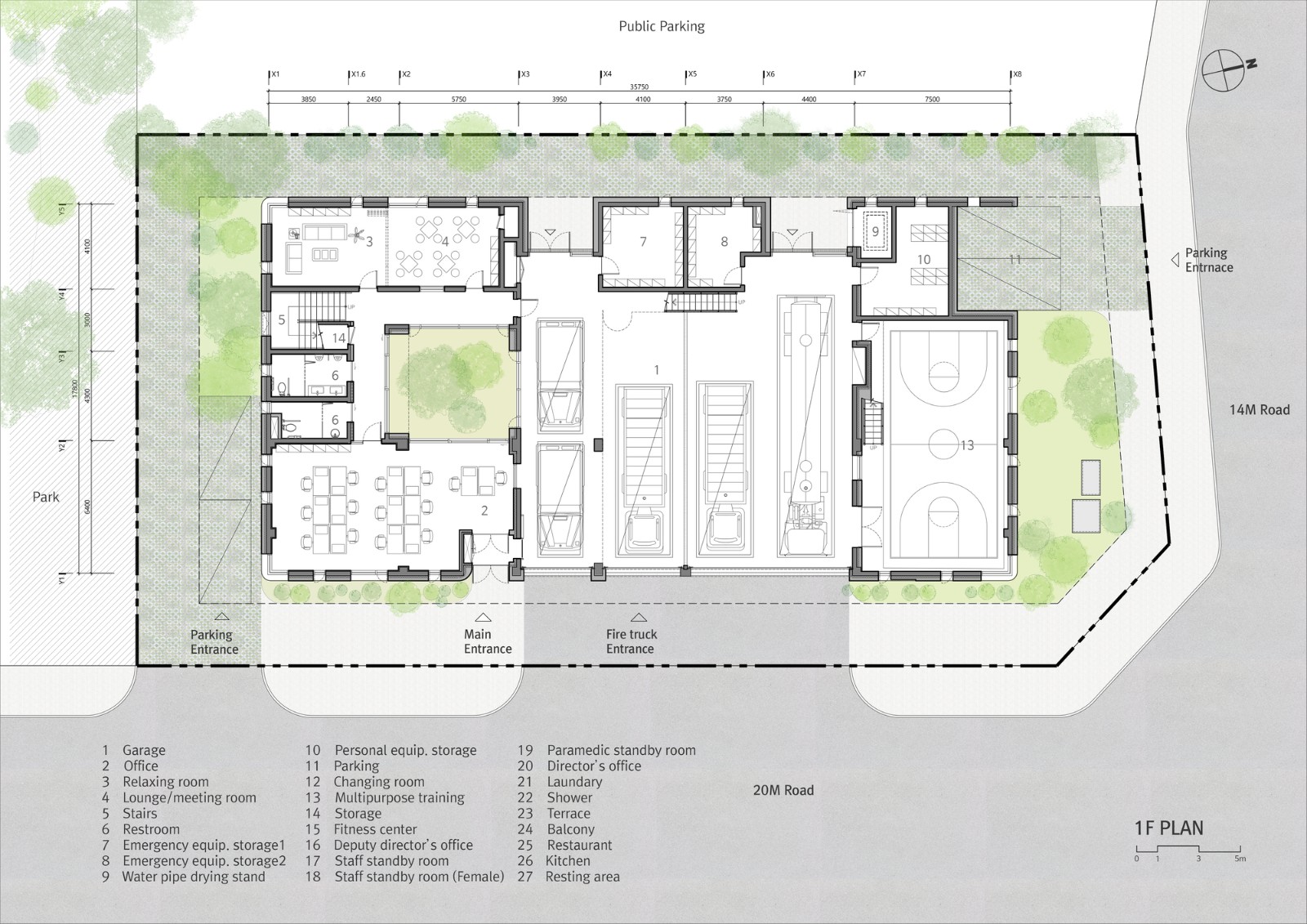
仔细看消防站的节目,不光是车库和消防设施,其中也有很大比重的供消防员饮食、运动、睡觉、休息的日常生活空间。从给出的方案来看,构成“Gangil 119 消防站”总面积的约 35% 是消防车辆和直接训练相关设施的区域,而其余 65% 以上的区域由消防员的日常工作场所组成。工作和生活空间,如备用房间(休息和睡眠的私人空间)、餐厅、洗手间、办公室、餐厅等。
这揭示了一个事实,即在消防站中,作为消防员停留和居住的如同第二个家的空间具有十分重要的角色。通过会议和调查,我们能够从在职消防员的各种意见中更加确信这一点。在许多情况下,他们抱怨由于工作和生活空间面向车库,导致车辆通风和废气等生活条件问题。随着我们发现这种建筑类型对居住空间的更多需求,我们重新思考了消防站这一建筑类型,我们试图将“江一洞119消防局”重新定义为以人为本的建筑,为消防站提出新的身份。
以庭院为中心的居住空间
在“江一洞119消防局”中,可以带来阳光和微风的庭院成为为主要空间,周围设置了消防车车库和人们的空间。由于预算紧张和现实的考虑,庭院变得越来越小,但它在项目中被保留了下来。它充当了消防车空间和人空间之间的桥梁,同时为引入了与人日常相伴的自然和室外空气。
以院落为中心,一楼紧邻车库的地方设置了快速调度的训练和工作功能,作为消防平台,二楼是生活空间,作为消防员的第二个家,供一天24小时待命的消防员休息。三楼布置了厨房、餐厅和洗衣房来以支持生活空间,旁边的屋顶露天的训练和休息空间。
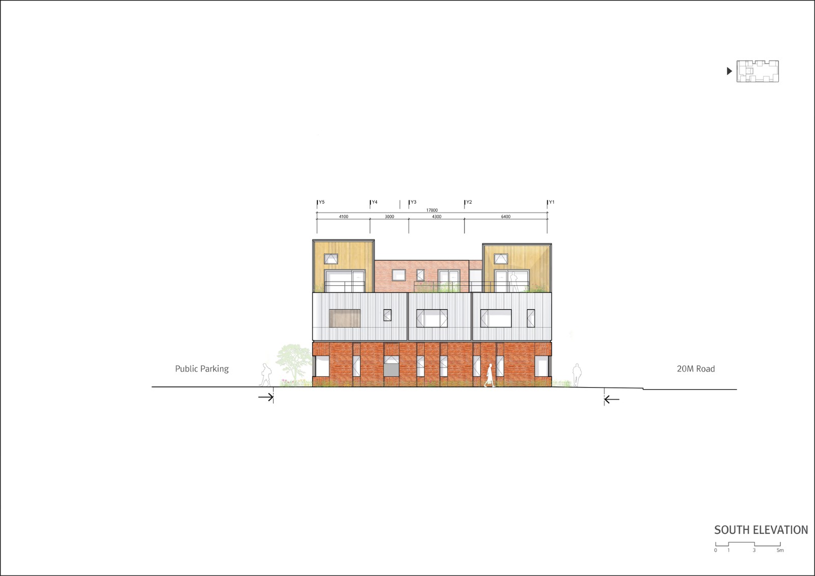
如同呼吸庇护所的119消防局—— 在“江一洞119消防局”,我们通过对人的居住空间的讨论提出消防局建筑的类型和身份。二楼的消防员个人生活空间采用白色镀锌钢板完成,具有独立的体量,就像聚集在一楼顶部的小房子一样。一楼用红砖砌成,作为消防演练和调度的平台。通过给出和呈现消防站这一建筑单体一个集体身份来构建消防员集体日常生活的小型个体空间。
在备用房等个人生活区之间提供阳台等室外空间,以鼓励自然采光和通风等基本生活需求。在“江一洞119消防局”中,待命室不再只是功能性的候车室,而是作为消防员的第二居所的生活空间,高高的天花板通过屋顶突出的天窗提供更多的照明和通风。“江一洞119消防局”试图将消防局重新定义为围绕生活空间组织的建筑物,不仅消防车而且常驻消防员都可以在这里呼吸和享受大自然。通过赋予首尔 119 消防局的新身份,将其包含的功能投射到建筑物上。
用分配给车辆设施的预算建造面向人的居住的空间
几经周折建成的“Gangil 119消防站”,试图解决消防站的根本局限性,但同时也存在一些不足。在各种原因中,政府对消防站作为公共设施的看法也起到了一定的作用。从首尔市政府制定的建设成本指南来看,消防站的建设成本为 219 万韩元/平方米,比首尔政府其他设施要低得多;一般市民设施(299万韩元/平方米)、公共办公楼(270万韩元/平方米)、社区服务中心(263万韩元/平方米)、公共图书馆(273万韩元/平方米)。相反,建筑成本的设定与公共停车场和车辆中转中心相当(139万韩元)。
这种预算差异来自于人的建筑和车辆的建筑的不同观点。尽管参加者多方努力,但在过去几年中,许多我们调查在过去纪念建造的顶级119消防局建筑仍存在漏水和饰面等施工问题。如果我们将消防站的愿景转变为人的建筑物,那么目前消防站作为车辆场所的建设成本确实少的令人遗憾。为了使公共建筑具有卓越的质量和设计,并成为我们社会的重要基础设施,我们不仅需要良好的设计,还需要良好的社会标准和准则来实现它。
项目图纸
△区位图
△一层平面图
△二层平面图
△三层平面图
△轴测图
△西立面图
△南立面图
△东立面图
△北立面图
△剖面图
△剖面图
项目信息
建筑设计:OA-Lab
面积:974 m²
项目年份:2020
摄影师:Jinbo Choi
厂家:Vision Ceramics
主创建筑师:Jungmin Nam
画图:Hongryang Lim
设计助理:Kyungho Lee
记录建筑师:Kyungyong Lee
地点:韩国,Gangdong-gu

BIM建筑网





































