苏州高新技术开发区一直处于城市化发展的前沿,通过一场邀请竞标,BAU被选中为该地区设计一所学校,该学校包含一所拥有24间教室的幼儿园和一所拥有48间教室的小学。
教室及其中间
前沿教育模式探索更具互动性、协作性、求知欲、以学生为中心的教学环境。因此,当代学校建筑的目标是模糊课堂上的正式教学与其中间地带小会议室的非正式学习之间的界限。
通过巧妙的空间设计,非正式的学习空间可以容纳非正式教学,反之亦然。这种新的教育方式要求整个学校成为一个教学相长的环境。
小场地,大量功能
先前的BAU学校项目都呈现了建筑作为图形在一片开放空间上的结果。这个项目(在一个较小场地中的小学和幼儿园)的图形背景平面可以视为反转-开放空间作为图形在建筑的背景之中– 更像罗马大竞技场或纳尔沃纳广场,而非莱维敦或橡树公园。
非正式教与学
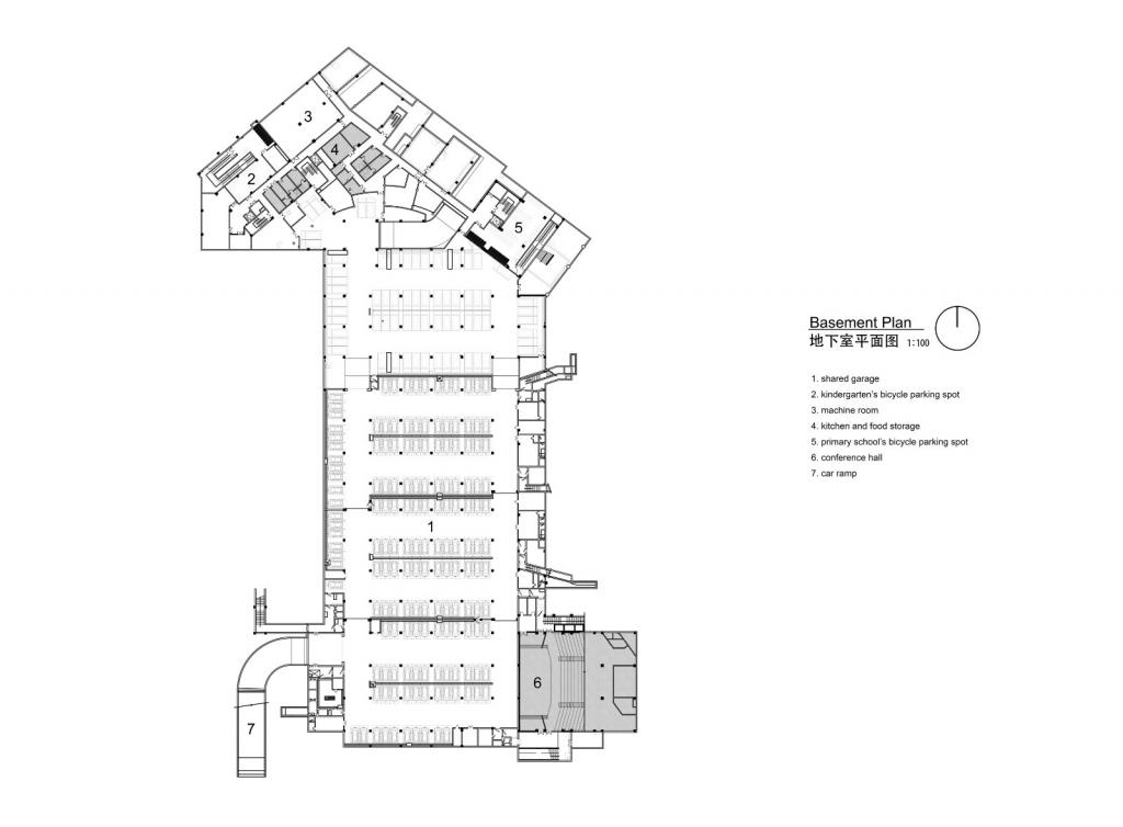
该场地被设想为一个建筑平台,所需的各种开放空间都可从该平台提取:运动场、幼儿园孩子的操场、小学生的庭院、两所学校的入口、还有学校和人行道之间的一圈绿地。
环绕着开放空间的梁容纳了一个创新的网络——传统的学校走廊变成了一个松散而开阔的空间,鼓励非正式的教学和学习。这些巨大的走廊为展览和大型小组作业等非正式活动提供了一些半封闭的学习空间。
正式教与学
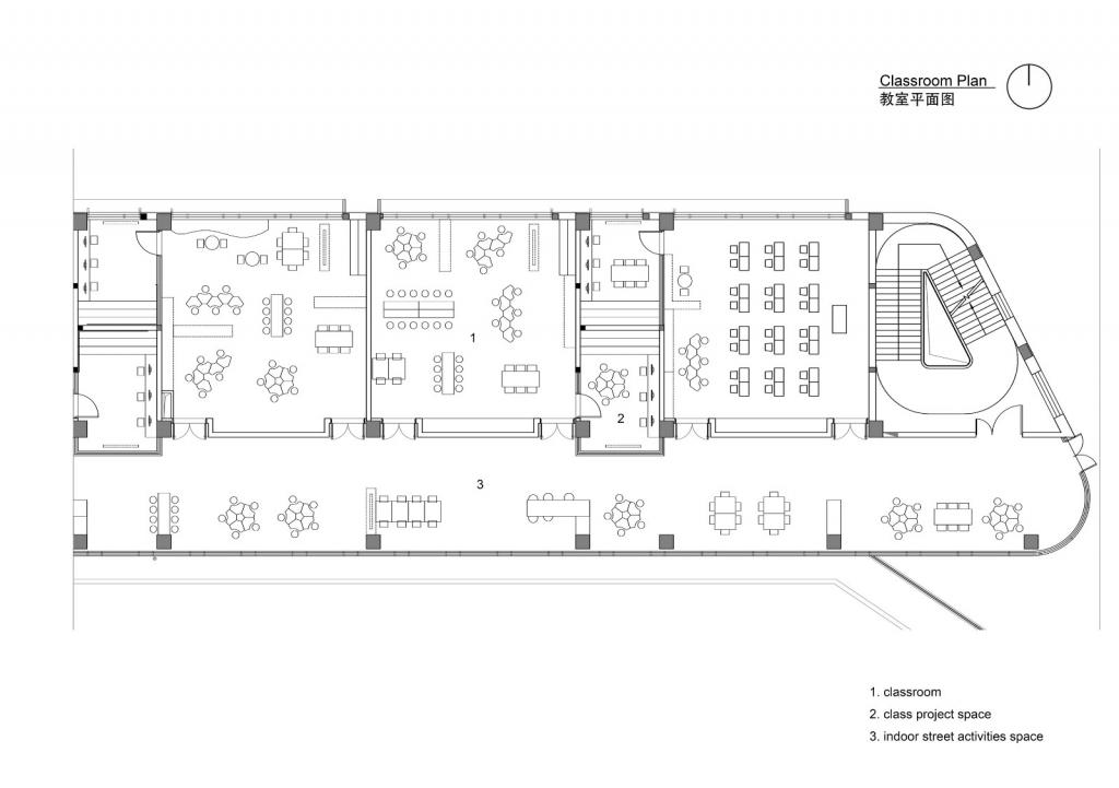
六道规则的横梁呈太阳形汇集,容纳了改良的教室,横跨蜿蜒的梁。
在这些横梁中,每两个传统教室都有一个玻璃墙面的会议室。这使得较小的学生小组能够在不分散课堂注意力的情况下进行交流,并且在老师的掌握范围内。
建筑的非正式/正式部分在空间上、形式上和物质上都有清晰的表达。
位置,图像学和抽象艺术
该项目与中国古典园林学者克雷格·伊斯顿合作,结合本土常见的几何图形,通过构架、缩放、挪动、包裹、叠加和分层等多种意想不到的方式,将艺术和游戏融入学习环境。
幼儿园源于德语,原意是儿童的花园
五个主题花园为幼儿园提供了不可思议的空间:在联想花园中培养儿童的想象力并模拟实现;在机能花园中跳跃攀爬、荡秋千、滑滑梯锻炼孩子的体能;在自然花园中挖土、种植、轻轻拍打、穿梭于竹海中,能够培养孩子的自然意识;在劳动花园中孩子们可以学习农作、家务以及培养管理能力;在感官花园中闻花的芳香、品草的味道、感受水的流动、聆听管道声音、真实地触摸、体验自然。
过去现在和未来
该项目成功证实了:古老的空间模式可以与当前的教育理论一同作用,为后代提供当代教学和学习环境。
项目图纸
△总平面图
△景观平面图
△一层平面图
△二层平面图
△三层平面图
△四层平面图
△地下室平面图
△教室平面图
△立面图
△剖面图
项目信息
项目情况:2020年竣工
地点:江苏,苏州,苏州新区
设计年代:2017-2020
客户:苏州科技城社会事业服务中心
场地面积:55,891㎡
建筑面积:67735.95平米
建设投资:人民币4亿
类型:教育
功能项目:
幼儿园:24个教室、多功能厅、音乐教室、阅览室、美术教室、宝贝厨房
小学:一到六年级48个教室、多功能剧场、阶梯教室、展厅、图书馆、艺术教室、电脑教室、书法教室、音乐教室、舞蹈教室、手工教室、科学实验室、广播教室、食堂、体育活动中心等
BAU项目组成员:
项目主创:James Brearley
建筑: SteveWhitford、罗怀利、Francisco Garcia Sung、Pablo Jimenez Fernandez、汤彬彬、李正、姜雨佳、李旭丰、卢芃宏、荣昱、吴冲、王宏彬、王双貂、沈杨洋、张捷旻、CraigEaston(艺术指导)
景观:黄芳、郭列侠、熊娟、潘果、师政婷、王泽元、顾卓成、伍晓健、钟亦、张欣慰、朱麒臻、潘琳璐
室内:邹玉海、王明栋、郭月娇、郑佳敏、陈宪伟
施工单位:南通四建集团有限公司
合作设计院:苏州科技大学设计研究院有限公司
材料:混凝土,石材,玻璃,瓷砖
摄影:夏至、舒赫、Dera
摄像:夏至

BIM建筑网






































