在中国台湾以西的澎湖列岛,当地的咾咕石或者叫珊瑚礁石住宅是一种独特的文化遗产。咾咕石房源于清朝时中国南方的沿海地区,首先利用岛礁上开采的玄武岩作为墙基,然后在上面堆叠真正的珊瑚石建造成房屋。它们的特点是平面约为9㎡,独特的“卷曲”屋脊类似于曲线形的山墙面,而由于强风的影响,将“柱间缝隙”作为窗户的开口。风在遍布着野生菊花的平原上吹袭,而古老的珊瑚石房依然矗立。受此启发,XRANGE 希望通过对这些历史遗存的重新诠释,为一个在澎湖列岛上延续了数代的家庭设计他们的住宅。
在该项目中,曲线形的屋脊层层叠叠,从远处越过植被看去,其轮廓就好像是当地的村落组团。这种村落般的效果是由三个拥有各自独特的曲线形屋脊的混凝土体量通过堆叠实现的。这些混凝土块不仅构成了房屋空间的一部分,同时也是房屋结构体系中的承重墙。别致的曲线形屋面上覆盖着白色石材,与小岛上天空的蔚蓝和周围农田的一片绿色交相辉映。传统珊瑚石房中柱间缝隙的开口被重新诠释为了阳台与露台的屏风,而再往后则是落地玻璃门,有利于自然采光和通风。
中部的体量中5m高的起居空间朝向了花园。东侧的体量以一处庭院间隔了父母的卧室和楼上的祠堂。在西侧则布置了餐厅和顶层的主卧,从卧室中可以看到曲线屋脊和远处的大片海景。在顶层,3块屋面的轮廓彼此相交,屋面平台、坡面和脊线创造出起伏而连续的空间体验。
作为气候应对策略的一部分,在住宅的东北边窗户开口最少,以抵御冬季凛冽的寒风。而在南边和西边则设计了深深的悬挑和柱间缝隙式的露台屏风,以减少夏季的阳光直射。屋面板和外墙厚度为30cm,并贴有花岗石板的雨幕系统,从而给予了房屋额外的阻隔来抵御夏季的酷热和冬季的狂风。在大院内还有一口天然水井和一小块供业主耕种的有机农田。
通过设计在整栋建筑内有效实现了自然对流,甚至是机械设备和管道中。即便室外温度高达35℃,室内也可以不使用空调就拥有自然的微风。在卧室的墙上还涂有自然黏土来调节湿度,从而避免了在当地气候条件下常见的墙体发霉或真菌生长。在整个建筑中,曲线形的屋面下排列有樟子松木条,产生了一种温暖的视觉感受和独特的气味标识。被切分的木材也被回收使用,用于制作原木家具和屏风。
该项目通过在现代框架内重新诠释传统智慧,为当地的家族创造一个多代同居的住所,并最终呈现为一座处在澎湖列岛独特环境中的建筑。
项目图纸
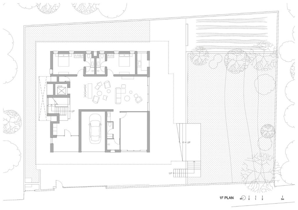
△一层平面图
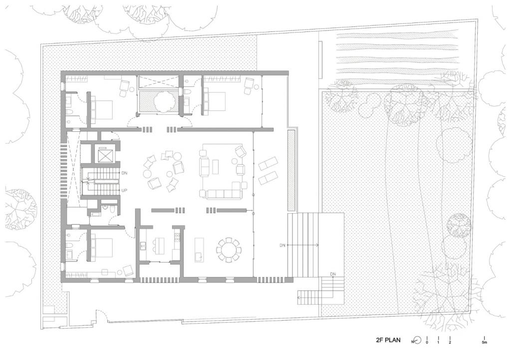
△二层平面图
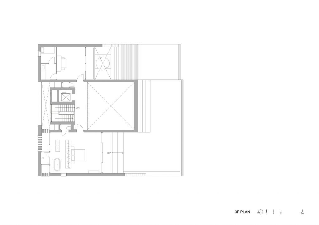
△三层平面图
△北立面图
△西立面图
△南立面图
△东立面图
△剖面图
项目信息
建筑设计:XRANGE Architects
面积:645 m²
项目年份:2019
摄影师:李国民
主创建筑师:Grace Cheung
地点:中国台湾

BIM建筑网



































