导 语
城市更新带来了人口激增,学位紧缺,超高密度的社区增加了城市负荷。在这样的背景下,如何设计一所在城市中央的新学校,即能打破传统学校的空间格局,又能开辟与社区共享的空间,成为高密度社区中的风景线,这便是成都龙泉天立小学和幼儿园项目留给间至设计(原天立设计院)的挑战,也符合间至设计“空间至善,时间至美”的理念。
△航拍顶视图
东进龙泉,遥望山脉
龙泉天立小学项目位于四川省成都市“东进”的重要区域——龙泉驿区大面镇,距市中心天府广场距离约16KM。整个项目规划用地面积为31770平米,合约47.65亩,项目周边均为入住率较高的成熟社区,且配套幼儿园和小学较少,办学条件较为成熟。
△区位图
△航拍顶视图,项目与社区关系
超级学习场地
校园建筑似“龙”的线型布局,将教学空间、共享空间、空中花园串联融合突破千篇一律的“盒子群”形态。同时采用内外贯通的布局手法,打造“超级学习场所”。除此之外,200米标准运动场布置在幼儿园与小学之间,即能共享又能分割,利于不同年龄段的教学。整座学校的围墙放弃了常规墙体,选用通透玻璃,校内的活力和校园建筑为社区增强了美感。校门外为解决家长接送问题,在退让区域留出风雨车廊,供开车的家长即停即走。
△小学风雨车廊
△小学入口
△小学中央庭院
△小学中央架空庭院
△小学入口台阶顶视图
△200米标准运动场地
有殿堂、有赛场、科技艺术串联空间式小学
圆形殿堂是龙泉天立小学的一大特色,通透而肃穆。殿堂外是有消防通道改成的跑道,可直达200米标准运动场。与殿堂相连的是体育教学楼和科技艺术教学楼。学校教学楼的主要教室单元全部南北向布置,为教室提供最好的日照光线,同时结合地形,建筑设置架空层,有效改善建筑群落的通风条件及开阔的视野。
△仰视中庭与圆形天窗
△架空层楼梯
△图书馆一角
△美术教室
△科技教室
△骄子剧场
△室内体育馆
△室外运动场
多元化、运动型幼儿园
龙泉天立幼儿园项目除了与小学共享的200米标准运动场外,既有室内手工教室,也有释放天性的户外自然课堂。
△幼儿园西入口
△幼儿园南角
△幼儿园教室
△幼儿园架空庭院
△幼儿园游戏庭院
△幼儿园一角
△幼儿园一角
△幼儿园一角
△幼儿园一角
项目图纸
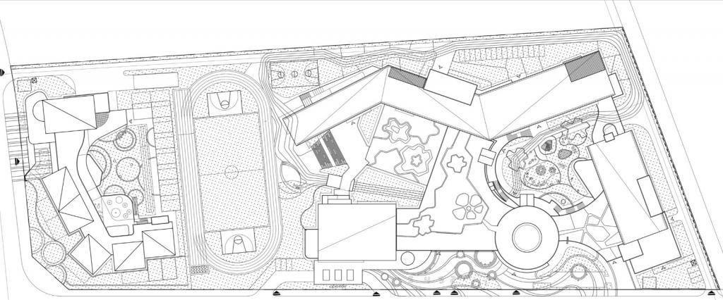
△总平面图
△小学一层平面图
△小学立面图
△小学立面图
△小学立面图
△小学剖面图
△幼儿园一层平面图
△幼儿园立面图
△幼儿园剖面图
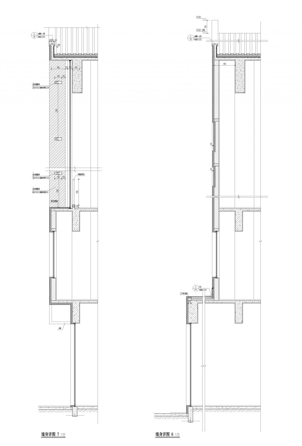
△细部大样图
△细部大样图
项目信息
项目名称: 成都龙泉天立小学及幼儿园
建筑事务所/公司/机构/单位: 四川间至联合建筑设计有限公司
事务所/公司/机构/单位网站: www.TLjas.com
联络邮箱: 406616690@qq.com
公司所在地: 成都市青羊区青羊工业园T9
项目完成年份: 2019年
建筑面积: 40828.34平方米
项目地址: 四川省成都市龙泉驿区金茶路168号
主创建筑师: 张涌
摄影师: 夏战
建筑设计:张涌 吴双 李玲 周远丹
景观设计:杨晓丽 王恒 邱艳梅
室内设计:向晓东 张兵 刘彦宾
委托方: 神州天立教育集团
施工方: 四川南苑建设有限公司
施工图: 成都木原建筑设计有限公司

BIM建筑网







































