到达纪念馆前是一段曲折路径和台阶组成的山路。入口广场被斜向的路径所划开,尖锐的图案使广场呈现出沉重的纪念氛围,踏上十级阶梯之后,周边的花岗石外墙渐渐形成了强烈的体块转折,深凹的入口和起伏的石材变化不断影响着到访者情绪,怀着犹疑和期许的人们将从这里进入到大厅。
建筑师在空间处理中巧妙的利用了自然光线。精心设计的窗洞仿佛一种游览者路线的信号。整座纪念馆的光线被点、线、面多种形态编织,在路径的各个节点形成串联。
作为起点的大厅,天窗纵横交错的格架将落入主墙的光线切割形成多样的变化,斑驳的光影投射曲折坡道的端头,构筑奇妙的视觉焦点。
在路径的行进之中,屋顶和侧壁的楔形带窗形成线状的光路,空间由暗中生出一线光明,为行走在曲折路径中的参观者寄予迷茫中的希望之光。
在路径的末尾展厅,整面玻璃幕墙的山景使室内光感趋向明亮的同时,参观者沉重的心境也随之豁然开朗。
石材和玻璃作为纪念馆的两种主要材质,在表达中暗含了战争隐喻。厚重的石材如重重困境,暗示着阻隔与艰险,而立面上划破体块的尖锐楔形玻璃面,象征着艰难中开辟出一条条通路,最终将引向自由和光明。
建筑通过材质和体块的变化将强烈的对抗情感和纪念意义切入,表现独特的战争纪念。
项目图纸
△体块生成
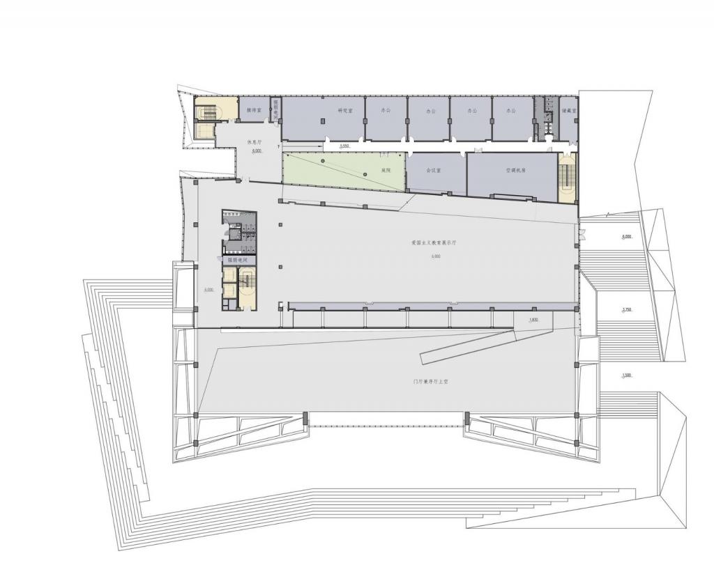
△一层平面图
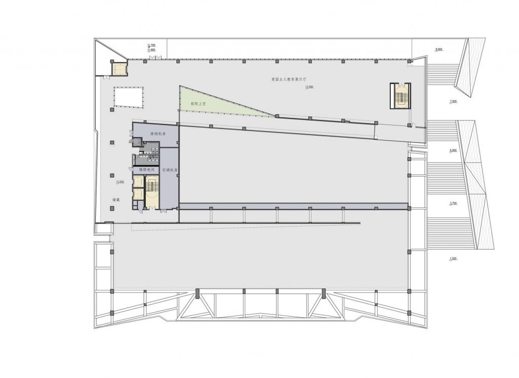
△二层平面图
△三层平面图
△立面图
△立面图
△剖面图
△爆炸图
项目详情
建筑设计:华建集团上海建筑设计研究院
面积:19116 m²
项目年份:2021
摄影师:ACF
厂家:CSG
主创建筑师:苏昶、左雷
设计团队:苏昶、龚娅、左雷、刘百通、杨少辉、沈逸斐、金欢
结构设计:杨军、施从伟、李焕龙、陈培德、焦运庆、崔奇岚
机电设计:汪海良、干红、贺江波、谢元俊、张帆、俞梦悦
景观设计:周宇、刘雨舟、董月
BIM:王万平、刘雯 、吴反反、涂伯阳、杨晓琳
节能:孙斌
幕墙设计:朱太喜、李海明
委托方:江西省赣州市大余县政府
室内设计:江西文展装饰艺术有限公司
施工方:陕西建工第六建设集团有限公司
地点:中国,赣州


BIM建筑网


































