”我希望我的作品是复杂的,像能留住时光的盒子,人们进去可以感受过往的记忆、当下的鲜活和未来的可能。”——刘卫兵
中华人民共和国科技部第十七届精瑞科学技术奖
“南溪遥以全生命周期的设计理念和先进的绿建分析创新既有建筑的改造”
壹 独特的乡愁承载
南溪遥,世界文化遗产——都江堰以北约5公里的村民活动中心,位于北纬31°龙门山脉的丹凤山山麓。山中藏有著名唐代古寺——般若寺,山涧流出的清澈河水傍着茂林修竹中的南溪遥缓缓流入成都。
“拜水都江堰 问道青城山”
千年都江堰灌溉的成都平原孕育出独特的本土道家文化、大熊猫之外,还有川西林盘聚落。这种本土民居聚落作为世界上稀有的乡愁文化载体,是蜀地延续数千年的自然村落形式。这里创造了川菜、川剧、和蜀绣;这里走出了艾芜、沙汀和巴金。南溪遥正是典型川西林盘聚落中的院坝民居。
▲ 清冽的南溪河水
贰 悠久的历史场址
这块土地沉淀着厚重的历史。在抗战时期,曾是中国少年空军学校,白祟禧、李济深曾将儿子送来接受训练,养育过民族救亡的希望。新中国成立后,这里成了公立小学,教化乡民子弟。
▲ 抗战时期的中国少年空军学校
改革开放后,学校迁址。这里又成为村民议事、品茗、看露天电影甚至打麻将的活动中心。但伴随着城市化加速,这座老建筑因低矮、潮湿、缺乏舒适性而逐渐被遗弃, 但原有的场址更是原住民共同的乡土社区空间记忆。
▲ 改造前的“南溪遥”
叁 川西的人文美学
成都民间有句谚语“好看不过素打扮”,传统林盘民居使用廉价的小青瓦、粘土砖和容易获取的杉木,墙体并不做多余装饰仅刷白。体现出成都民居轻盈灵动、闲散飘逸的特质。
传统川西林盘建筑的所有均可被环境吸收,在全生命周期内不会产生废弃物,不仅对环境无副作用,还能维持生态平衡。这是传统川西林盘“天人合一、道法自然”之术,与现代被动式建筑的理念一样,都以符合自然生态系统客观规律并与之和谐共生。
“南溪遥”更新在人文美学和材料使用上吸取了这些特点。
▲中国水墨的当代意向——“南溪遥”南立面实景 (原来低矮的平房有了舒展的水平和起伏的屋脊,与远处的丹凤山遥相呼应)
肆 科学的突破更新
设计尝试将保留原建筑场址和典型凹形布置的单层农家院坝布局,通过整修和适度的改造。
采用生物气候建筑设计策略,利用IES绿色建筑分析软件进行热环境模拟,解析当地主导风向和日照对院落的影响,以及室内空气指标变化。突破传统封闭院坝空间束缚,更多发掘适合当地亚热带湿润气候的生活空间,如开风口、设廊桥、加檐廊等,去改变传统空间的热环境,营造宜居的微气候。
▲有机更新后的南溪遥
▲ 主导风空间导向模拟分析
▲ 日轨动态模拟分析
▲ 日照热辐射动态模拟分析
▲ 日照热辐射动态模拟分析、南溪遥日轨图、室内环境热舒适度数据统计
通过建立不同围护材料的建筑数字模拟场景,对能源消耗、环境指标数据进行科学分析,探寻院落和建筑空间的变化、建筑材料的不同与风、水、土以及植被对环境质量影响变化的微妙关系。由此,对既有建筑在同一场址的不同改造情况下,导致的室内环境结果进行科学比对。基于这样的分析作为依据,进行建筑空间改造设计,创新对传统院落更新改造的方法。
“南溪遥”在不同围护结构和场景下的年能耗与国标和地方标准的数据对比表
▲ “南溪遥”在不同围护结构和场景下的年能耗与国标和地方标准的数据对比表
“南溪遥”凹形院坝的东北角底层柱廊正对主导风向(北北东),北面加高建筑的坡屋面形成东低西高的顺风趋势,引导自然风同时也穿过屋顶的架空木廊进入院落,吹向西南建筑回旋后从面对南溪的院坝缺口流出。
局部增高空间和对应新设空以形成典型凹形布置的农家院坝布局,扩大室内活动空间。为打破围合感,在局部设置的柱廊,也成纳凉休闲的半室内空间。
整个院落在不依赖高耗能的空调设备情况下而保证了室内获得新鲜空气,带走多余的湿热,使身居其中的乡民感到了舒适安逸。
▲东立面增加的传统灰空间(更新后的村民中心有了露台、檐廊、凉亭和开敞的室内)
山墙增加的檐廊、凉亭和屋面的廊桥,不但营造出新颖的灰空间还增加了外围护结构的热容,使室内外空间在热交换中有了良好的缓冲。
在东面屋顶局部创造性地设置的架空廊桥为百姓增加了不曾有过的登高望山、檐下茶叙的半室内空间体验,通透的屋面通廊特别疏解四川气候的潮湿闷热。
▲ 屋顶增加的木廊采用了典型的川西檐廊
南溪遥以适度更新和增大适应性,并充分利用科学的环境分析及传统被动节能设计策略,以低成本的该着方式改善居住热舒适度,大幅度降低建筑能耗,成为目前成都川西林盘聚落的重大乡建战略中的人文和环境可持续发展典范。
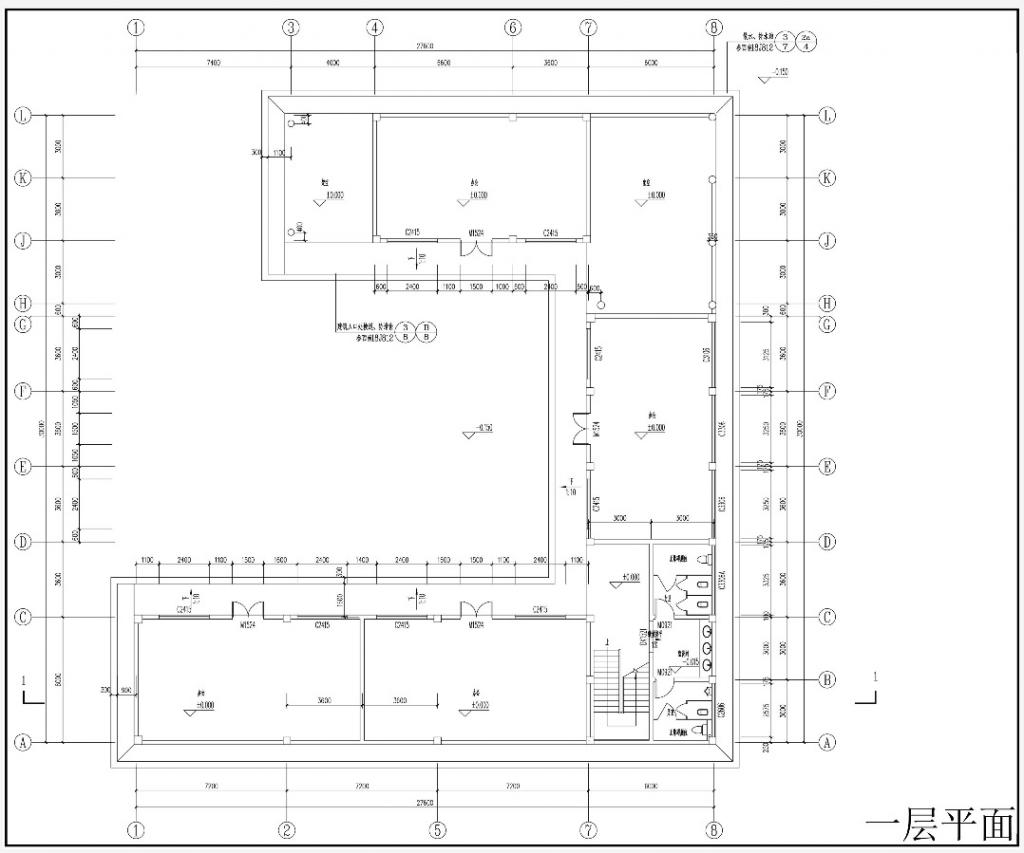
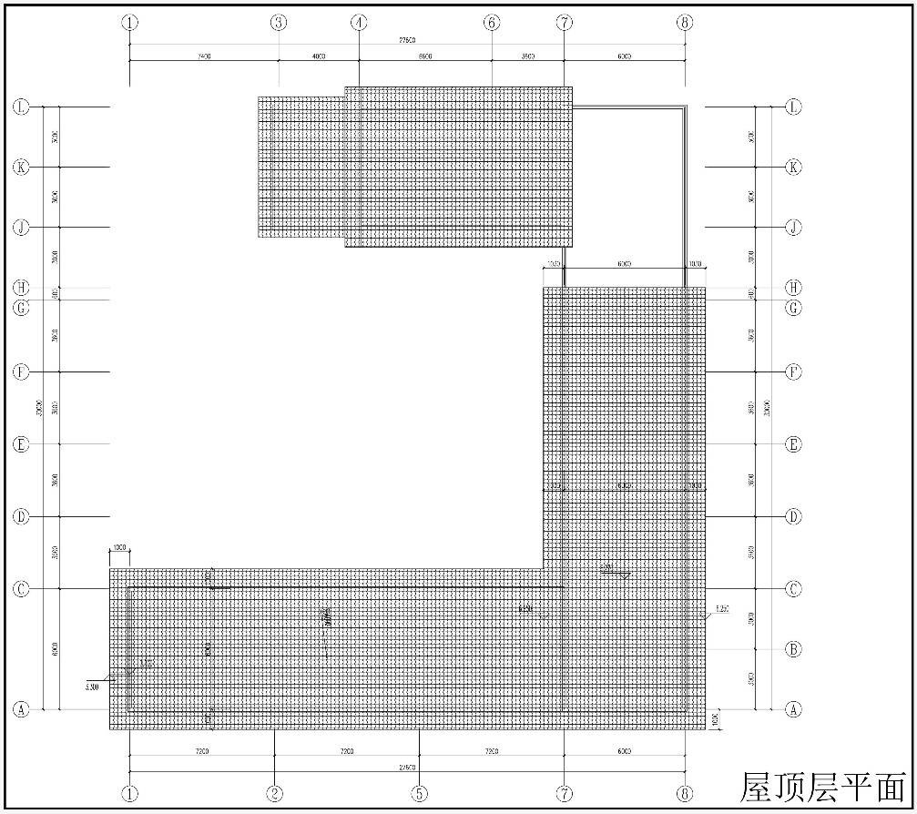
项目图纸
▲ 南立面图
▲ 北立面图
▲ 西立面图
▲ 模型图
项目信息
建筑设计:四川省大卫建筑设计有限公司
面积:467.62㎡
项目年份:2020
摄影师:何震环
主创建筑师:刘卫兵
业主:都江堰市蒲阳镇人民政府
结构设计:四川省大卫建筑设计有限公司
施工方:甘孜州城发建筑工程有限公司
地点:都江堰市蒲阳镇南溪社区

BIM建筑网



























