张玉娘
张玉娘(1250年-1276年),字若琼,号一贞居士,浙江松阳人氏,出身官宦。工书善画,尤擅诗词,时人以汉之班昭比之,后人将她与李清照,朱淑贞,吴淑姬并称为“宋代四大女词家”之一。著有《兰雪集》二卷存世。
鹦鹉冢
松阳县城西屏街道官塘路,古时是一片枫树林,如今,这里成为县城中两条道路的交叉口,三角形的场地周围,简单修建栅栏保护,几棵高大的枫树下杂草丛生,有一口古井,名兰雪泉井,几步之遥,一方低矮简陋的条状墓碑插入土里,这便是县里仅存的关于张玉娘的遗址——鹦鹉冢。
诗文馆
松阳诗文馆选址于此,结合鹦鹉冢的遗址保护,以期重续当地的历史文脉和诗文传承。
建设场地作为追思园,保留原有的遗址和树木。设计中最大的挑战是场地兼具城市道路的边角零碎和重要历史文化遗址的矛盾。应对的策略是通过围墙强调场地的边界和场域感,形成和城市道路隔离的独立场所。从北侧主入口开始,墙体延伸进追思园,沿着树木的位置连线,勾勒一条内旋的回路,将参观者逐渐带入到场地中心树荫下的遗址空间。延长的路径,以及路径的宽窄变化,调节参观者的行走和行为方式,酝酿从周边喧闹的城市环境到追思空间的转换。
围墙具有变化的透明度。透明度渐变,是根据路径的需求设定的。
刚进入追思园时,透过正对的边界透明墙面仍然可以看到外面的道路和人群,右侧的曲线墙面则完全遮挡墙后的内容。一棵高大的枫树提示前进方向,两侧墙体透明度逐渐变化,街道视觉开始模糊而内部遗址空间开始显现;路径宽度变窄,也提示参观者空间氛围的转换。
三角地端头的一组枫树下,空间放大,向外的视觉受到遮挡,而内部的遗址空间则全景展现。
绕过透明曲线墙体后,到达路径的终点,树旁的古井和鹦鹉冢遗址;周围墙体通过多重透明度的叠加,完全遮蔽城市,围合出一个停留的追思空间。
围墙的白色石材基座,根据场地周边微妙的高差,对外作为街边缓冲的绿化种植槽,对内成为休息座椅。竖向石板刻有诗词,如同展开的书页,直观的把张玉娘诗文呈现出来。白色砂石地面和基座连成一体,提供独立于城市的界面,衬托纪念性的场景。
作为城市边角零碎地块的追思园,通过景观设计和视觉转换,围绕场地树木和文化遗址,重新建构了一个戏剧化的空间秩序,提供舞台场景般的空间经验。
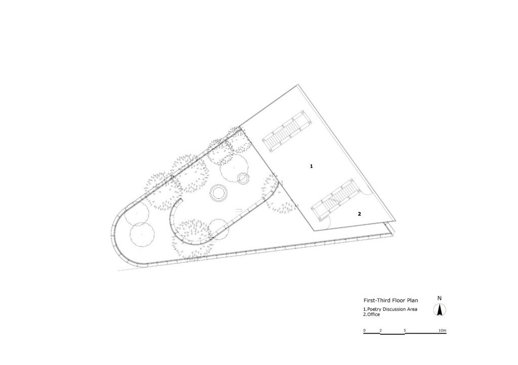
项目的另一个挑战则是,诗文馆建筑必须遵循场地原有民房的边界范围,体量较小,需要容纳展览和研讨办公等功能,并且满足公共文化建筑的消防疏散等规范要求。依照场地原有的建设边界,把诗文馆从地面提升,既扩大追思园的面积,也和地面园林互为对景,分别构成竖向和水平向的空间延展。唯一落地的两个疏散楼梯,兼做结构核心筒,在每层平面划分不同空间层次。东向墙面尊重隔壁邻居要求设计为实墙,可以作为室外绿化爬藤墙面,也是室内空间的展示墙面。其他三面则通过玻璃墙自然采光并向城市开放。
建筑立面玻璃延续追思园的透明渐变,在室内空间形成和城市街景微妙的过滤,也给日落时的树冠投影提供一层底色。
室内的展览陈列,还原一代女诗人在宋末战乱的时代背景下,悲情忧患的生命际遇,以及忧国忧民的家国情怀。临窗俯瞰追思园,白色砂地作为画幕底色,张玉娘鹦鹉冢遗址掩映在树荫下,是这个千年古城跨越时空的追忆与回响。
诗文馆建成后由松阳当地的兰雪诗社管理运营。诗文馆也是松阳多年实践“建筑针灸”在城市语境的一种尝试,通过微尺度的文化建筑植入,重续城市中被忽略的文脉,激活城市边角空间,还原松阳千年古城的文化纵深,也给周边社区提供了积极的文化活动空间。
项目图纸
△区位图
△一层平面图
△二-四层平面图
△立面图
△剖面图
△结构示意图
项目概况
项目名称:松阳诗文馆
项目地址:浙江省丽水市松阳县城环城西路中段东侧
项目功能:文化
项目委托人:松阳县博物馆
设计单位:徐甜甜/DnA_Design and Architecture
照明设计:清华大学建筑学院张昕工作室
结构体系:钢框架剪力墙结构
设计时间:2017.09-2017.12
建造时间:2019.02-2021.02
项目用地面积:534㎡
建筑面积:628.72㎡
摄影师: 王子凌

BIM建筑网










































