弘大区(Hongdae)和江南区(Gangnam)是首尔商业最活跃的地区。这样广阔的商业区往往横跨整个行政区,并坐拥着大量的商业场所和多种类型的建筑,包括独栋住宅、多户住宅、购物中心、办公楼、混合用途住宅综合体和展览馆。这些建筑矗立在城市不同发展阶段中形成的街道之间,从宽阔的主干道到狭窄的小巷。
弘大区大部分商业活动都围绕其充满活力的艺术场景展开,这些艺术场景是由年轻艺术家和独立音乐人进行创作的。这里有各种形式的文化活动,从街头表演到壁画,都与住宅和商业和谐共处。
这种现代艺术所特有的开放性、灵活性和创意的叠加性也开始在居住和商业空间中表现出来。从地下室到屋顶的各种场所被重新利用作为表演和展览场所,这些改造、装饰和巧妙的设计塑造了弘大区独有的建筑特色。
Areuke 水疗中心位于弘大中心老住宅区的一条巷子里,场地毗邻几栋分别被改造为美发沙龙、餐厅和咖啡馆的低层老住宅楼。根据高密度区建筑对应的严格的采光权法律条例,该建筑呈倾斜的棱锥形,充分利用了限高范围内的有限空间。
作为一家化妆品公司的水疗中心旗舰店,该建筑的设计构思首先考虑了商业目的:从场地周围街道的尽头看去,它独特、开放的形态能够吸引路人的注意,从而引导人们进入建筑内部。
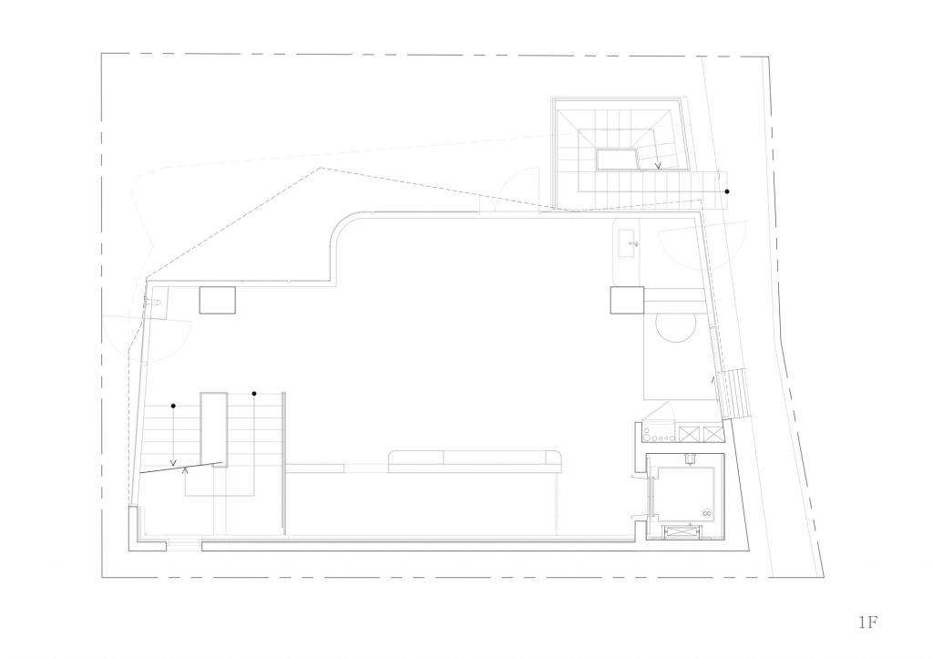
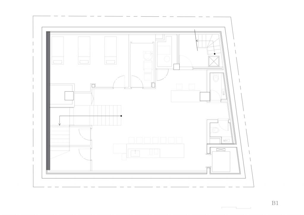
与用于产品展示和皮肤咨询的下层相比,用于个性化水疗护理服务的上层空间面积较小。地下层层高较高,可以用于举办各种活动和展览,而首层大厅同时具备咖啡厅和水疗中心门厅的功能。总的来说,建筑在垂直方向上从底层的公共空间逐渐过渡到上部的私人空间。
外部承重墙是用清水混凝土建造的,既是承重结构又作为建筑的围护结构。这种材料赋予建筑一种原始的、纯粹的外观,在一定程度上与人皮肤的纯净感相呼应。面向街道,建筑立面的转角处利用混凝土材料的高延性形成一定的曲率效果,同时在凹槽内放置灯光,产生时尚的色彩展示效果。
该建筑是用单一的混凝土块建造的。它厚实的外墙似乎是为了隐藏建筑内部发生的任何变化,将室内的商业行为与外部环境有效地隔绝开。不过,在细节和方向性上,外部造型非常注重表达建筑的商业属性。
每当新租户搬入时,商业区的许多建筑不仅会经历招牌的变化,可能还会失去最初独特的风格属性以及与城市环境间的有趣互动。于是,缺乏富有活力的外观设计的商业建筑开始出现,它们为企业提供的不过是一个由柱子和楼板组成的骨架而已。一旦这种普适各种商业类型的建筑弥漫整个城市,建筑则很难在商业利益下保持自己的独特性和可识别性。
当然十年后,考虑到首尔市功能区划的不断变化,Areuke 水疗中心很可能会被例如发廊、寿司店或咖啡厅等功能业态所取代。传统的建筑空间很难跟上如此快速的商业发展转型,因而当下的建筑需要更灵活的空间布局和交通流线来应对未来可能出现的这些变化。
然而,空间的灵活性并不代表建筑在物理形式上有任何妥协,在建筑如何与周围环境进行视觉互动方面仍有可以创造的空间。总的来说,这种由商业和品牌需求塑造的建筑必须能够适应和接受变化,才不会在城市的快速发展中迷失方向。
项目图纸
△一层平面图
△二层平面图
△三层平面图
△四层平面图
△五层平面图
△屋顶平面图
△地下一层平面图
△立面图
△立面图
项目信息
建筑设计:Chiasmus Partners
面积:456 m²
项目年份:2021
摄影师:Namsun Lee
厂家:A&L Windows, Concrete
主创建筑师:Hyunho Lee
设计师:Narae Yang, Hansoo Noh, Jeogwon Kim, Sungjoo Han
室内设计师:SangHee Yoo
建筑基底面积:100.78㎡
建筑范围:B1/4fFL
停车位:3
结构:ACE Consulting Engneering / JooHyun Park, Reinforced Concrete
MEP:Seungjin ENC.
地点:韩国,Gangseo-gu

BIM建筑网
































