“产业园区是经济创新和发展的重要载体,作为地方经济发展的主平台、主阵地,已被提升到极为重要的战略位置。由于工业用地指标紧缺,传统一类工业用地(M1)产业园区对环境舒适度的反馈普遍较弱,且低效产出的产业园区普遍存在。为了激活园区高质量发展新动能,对传统M1类产业园区项目的重塑也成了亟需改进的问题。由GWP负责设计的广州樊文花总部产业园项目在打造花都市政府M1类创新标杆项目的同时,也能为传统M1项目的建设起到示范与参考。”——GWP团队
一、激活一片土地的经济与活力
花都是广州市先进制造业的重要基地,在区域全面融入“双区”建设与“双城”联动的发展格局下,已经初步成为各企业总部产业园区的首选之地。GWP团队携手樊文花集团,打造一座标新立异的现代产业园区。通过对业主方使用功能与对周边环境的研究与思考,策略性地打破了M1类工业用地容积率高、厂房用地较为紧凑的问题,解决厂区布局存在传统、趋同的现象。“以人为中心、以需求为本”,GWP团队在该项目的设计实践,成功平衡产、城、人的关系,回应引领产城发展新方向的多方诉求。在为企业打造一座复合型企业总部大楼标杆的同时,也丰富了城市、片区的人居环境,为焕发园区的经济与活力植入了新的引擎。
▲区位分析
二、樊文花开,绽放世界,筑城市地标
美人面如花,如花朵绽放般的自然容颜,是品牌希望能够为客户带来的价值体验。作为塑造美、守护美的品牌,樊文花具有很强烈的符号标识。从提炼企业品牌符号的角度出发,以建筑融入企业精神文化,GWP团队在此项目中以“绽放的花“的形态作为概念设计的依托。“樊文花开,绽放世界,延续美丽”,将花朵绽放的张力融入建筑的形态中,以舒展的建筑形态切割几何空间形成绽放式的中心花园,在给予受众一种优雅与活力并存的视觉感受的同时,也传递着项目即将盛世绽放的信念。
▲概念生成
▲设计概念
三、植入城市花园的策略,重塑城市名片
面对集合了办公与生活需求的项目用地,设计团队希望打破场地单一封闭的园区模式,以重塑区域形象为前提,以提升人的幸福感为根本,为往来匆匆的人群营造更为亲切宜人的城市界面。 在办公、研发、展示、生产、物流、餐饮宿舍配套等功能复合的建筑中植入花园式体验概念,充分运用错层式退台所创造的交互空间给予使用者更多的户外休憩场所,享受工作带来的乐趣。
在面向城市主干道的多个界面,工业化规整的立面设计是对片区工业业态的回应,开放广场以大面积景观空间打开城市界面,与建筑环抱所形成的互补空间成功创造了一个通透、共融的开放社交环境,为项目以及周边的社群提供了优质的共享空间,也为提升片区城市形象创造了附加值。
四、人性化设计 打造舒适高效功能空间
从项目的功能布局上,设计团队与樊文花运营团队共同研究打造出“前店后厂“的园区模式,把一二号楼设计为昭示性强的集地标总部办公、研发中心、展示长廊等多功能场所。总部建筑后方设置三栋不同产品线的厂房及物流一体化的厂区,并预留地块为产业园生活配套区域。同时从发挥园区价值最大化的角度出发,设计团队在功能区专门设计动线分流策略,预留展示参观动线,引导访客从大堂到展示长廊及通过连廊参观不同厂房生产制作过程。为了平衡园区生产节奏,缓和办公氛围,增添园区温度,GWP团队将从企业文化中“提取天然,生态健康”的精神通过植入退台生态空间进而柔化厂区工业形象的方式,强化了该产业研发生产基地高品质的特性。
五、园林设计,提振园区活力
绿化景观空间的巧妙运用,有利于在空间中形成巧妙的衔接与过度。以品牌logo为元素概念,将花绽放时绚丽柔美的形态曲线以点、线、面的形式融入景观,界定了场地的独特性与标识性。循着品牌故事的脉络,设计景观动线串联起园林结构,结合休憩桌椅、休憩平台等元素增强空间的可停留性,激发园区源源不断的生命力,塑造一个融合企业文化特质的高品质产业园区。
▲园区入口广场景观平面图
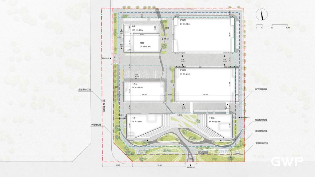
项目图纸
▲一层平面图
项目信息
项目地点:中国 · 广东 · 广州
设计时间:2020年
项目阶段:在建中,将于2022年落成
建筑面积:110,763 平方米
用地面积:33,300 平方米
用地性质:M1/一类工业用地
服务范围:建筑设计、景观设计
建筑和景观设计:GWP Architects
结构设计:广州容柏生建筑结构设计事务所
施工图设计:莫伯治建筑师事务所
荣获奖项:2021 MUSE 建筑设计奖(美国)2021 ICONIC AWARDS标志性设计奖精选奖(德国)

BIM建筑网

















