太原生活垃圾焚烧发电厂坐落于山西省晋中盆地西北部。工厂体量恢弘,层次分明,白色编织蜂巢二次表皮消解了厂房的巨大体量,为工业建筑注入亲和力和艺术气质。工厂匍匐在壮阔的晋中大地,优雅夺目,以友好开放的姿态欢迎公众进入,了解垃圾焚烧发电的流程。
项目位于清徐县柳杜乡的太原市循环经济环卫产业示范基地,占地面积124.7亩。工厂日处理生活垃圾3000吨,占全市每日垃圾总量的六成左右。工程建有4条750吨机械炉排炉垃圾焚烧线及烟气净化系统,配套建设两台发电机组,能有效解决太原及周边区域生活垃圾的处理问题,改善地区生态环境。同时工厂变废为宝,将焚烧产生的蒸汽转化为电能,年发电量约4亿千瓦时,可满足26万户三口之家的一年用电量。
太原生活垃圾焚烧发电厂拥有先进的处理技术与工艺设备,工厂利用参观通道串联主要功能空间,将复杂的垃圾回收焚烧发电的形态与模式,直观生动地向参观者展示。作为可以体验的环保博物馆,我们希望建筑能够自己讲述她的故事,讲述她如何将废物转化为新能源的功能本质。
设计借助蜜蜂和蜂巢来隐喻之一过程:蜜蜂采集花粉,带回蜂巢,酿成蜂蜜。垃圾车穿行于城市收集垃圾,带回工厂,转化为宝贵的能源。立面设计审慎地面对复杂的工业生产需求,通过选用差异化的材质以满足各功能空间的采光及封闭要求,并揭示其生产属性,将垃圾焚烧处理发电的流程可视化。低区办公区立面采用玻璃幕墙,将户外景观引入室内,并通过蜂巢二次表皮过滤光线,创造高品质的办公环境。
垃圾卸料区立面采用灰色金属板,形成简洁封闭的盒子造型。焚烧及烟气净化区立面采用打点玻璃幕墙,将先进的设备展示给公众,夜间室内光将点亮建筑,塑造光的盒子。
蜂巢二次表皮将主厂房低区与空冷岛整合,简化主立面复杂的形体关系,形成舒展柔美的水平线条,呼应广阔的晋中大地。立面设计同时提取了太原晋祠等传统建筑中的红色元素,纯粹的红色立方体与淡蓝的玻璃幕墙,白色的蜂巢表皮形成强烈对比,展现浓郁厚重的中原气质。立面设计顺应各功能体块的错位关系,通过差异化的材质将其转化为高低错落的抽象盒子,消减厂房巨大的体量,创造宜人尺度,最终呈现出比例舒适的形体关系和虚实相间的立面效果。
太原历史悠久,当地有着古老的手作传统,如剪纸,编织等。设计试图在现代性中注入这一地域元素,拉近环保工业建筑与当地老百姓的距离。白色蜂巢二次表皮采用编织的方式,致敬古老的手工技艺,模数化的蜂巢杆件组合成具有编织效果的白色飘带,创造具有趣味性和标志性的立面形象。设计汲取编织的智慧,蜂巢构件通过前后的穿插关系,隐藏了构件之间的缝隙,最终呈现出简洁干净的外立面编织效果。蜂巢构件的穿孔处理,使二次表皮轻盈灵动,同时丰富室内外的光影效果。
通过新技术的使用和博物馆理念的植入,太原垃圾焚烧发电厂正以崭新的形象进入大众的视野。设计师借助蜂巢的寓意赋予建筑新的符号,将冰冷的工业建筑转化为亲近大众的环保基地。编织表皮映衬在蓝色的玻璃幕上,犹如晋中平原建筑上的美丽窗花,以现代手法演绎,表达我们对低碳未来的美好愿望。
项目图纸
△总平面图
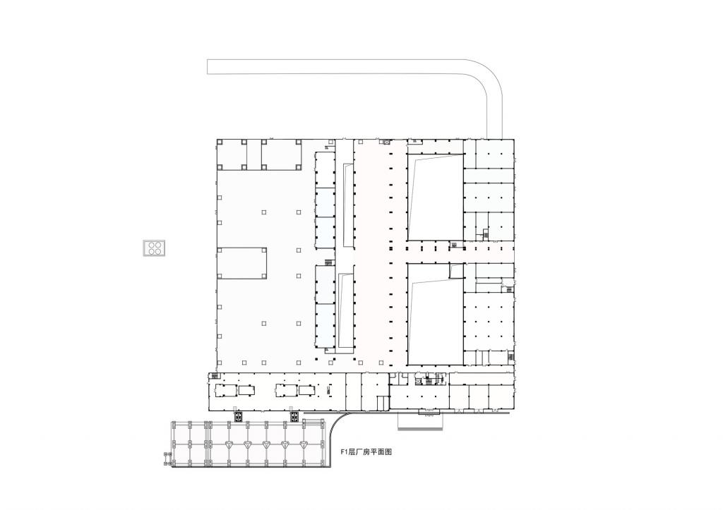
△一层平面图
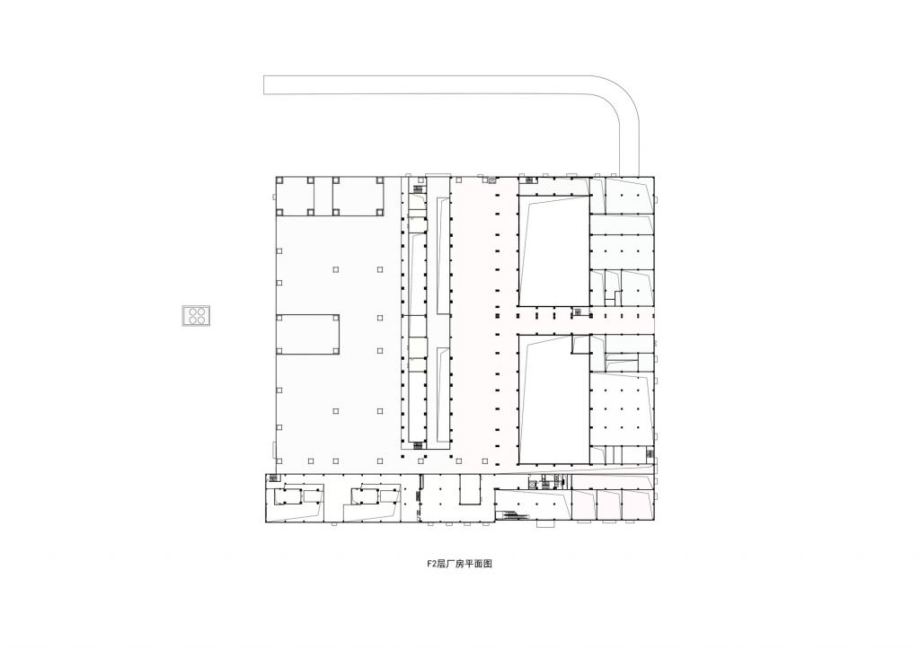
△二层平面图
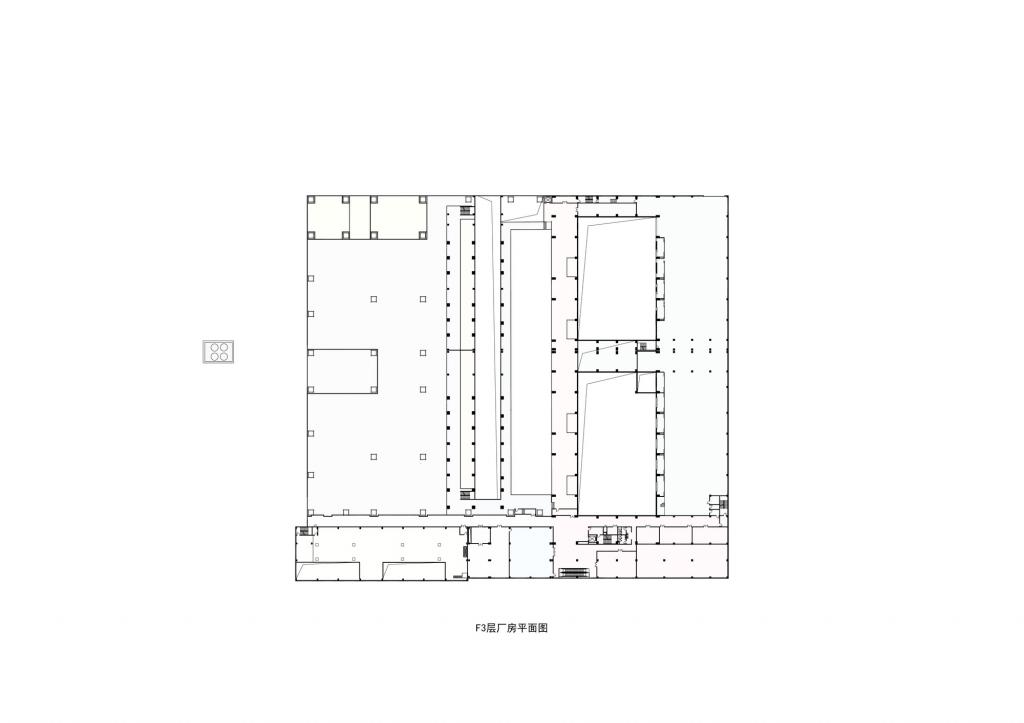
△三层平面图
△四层平面图
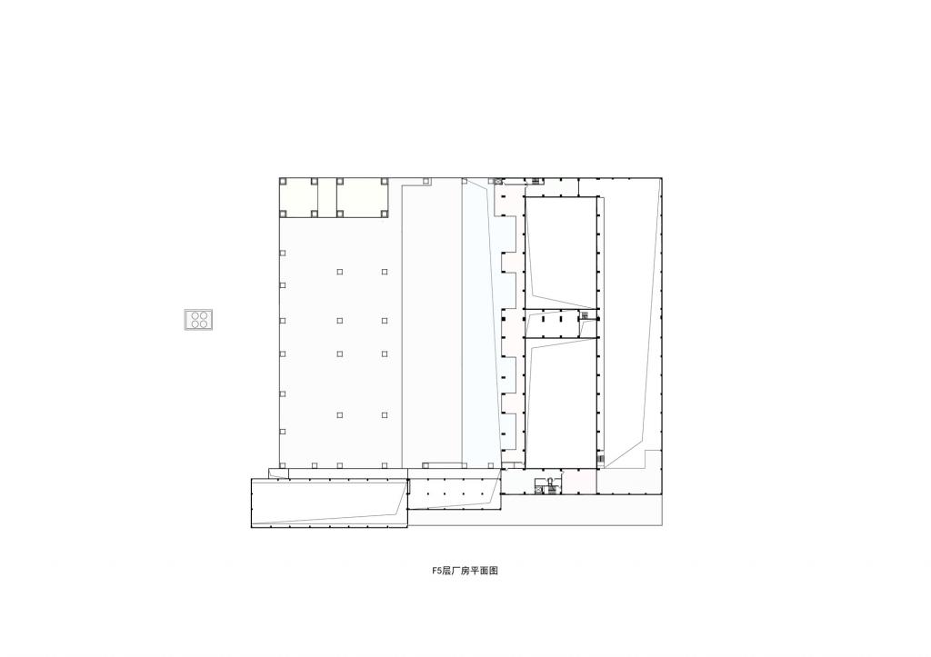
△五层平面图
△六层平面图
△西立面图
△东立面图
△北立面图
△南立面图
△剖透视
△结构示意图
△结构示意图
项目信息
建筑设计:AIA Life Designers
面积:49057 m²
项目年份:2020
摄影师:谢东叡
厂家:多维联合集团上海建筑系统有限公司, 山西百澳智能玻璃股份有限公司, 江苏巨星铭创幕墙新材料有限公司
主创建筑师:Simon TSOUDEROS、毛亮平、潘加伟
设计团队:Simon TSOUDEROS、杨海 、Dalius GUTAUSKAS,、毛亮平、潘加伟、 戴坤 顾吉辰、马丽莉
委托方:上海康恒环境股份有限公司
地点:中国,太原

BIM建筑网




























