今年8月,HPP设计的上汽大众技术中心正式投入使用,引领上海嘉定安亭国际汽车城成为世界级的汽车制造基地。HPP于2018年赢得了上汽大众技术中心的设计权,为其打造现代化复合办公空间,成为安亭国际汽车城区的重要项目之一。上汽大众作为国内汽车行业的引领者,HPP为其设计的办公大楼以“企业门户”形象为主体,由顶部相连的南北塔楼组成。两座塔楼各有一面被旋转,在最大化景观面的同时,赋予建筑别具一格的外型。
该建筑总体高度为60米,总建筑面积为41900平方米,共12层。东西两侧的大台阶与广场相连,访客可由此直通二层主入口。建筑集合办公、休闲、餐饮、创意中心等功能为一体,一层食堂设有独立入口,二层至十一层为办公区域,顶层为虚拟车展示厅和创意中心,亦可在此俯瞰整个园区。
建筑面向厂区和河岸的立面更为敞开,呼应周边景观。巨幅的玻璃幕墙倒映在水中,凝固的建筑融入风景,愈发生动柔和。
在项目最初的设计方案中,两座塔楼之间为室外空间,由四座空中廊桥连接,分别设置在第四、六、八、十层,为部门间的沟通交流提供便利。在业主提出将两座塔楼的中间区域改为围合空间的想法后,设计师在建筑东西两侧增设了超大尺度索网玻璃幕墙,形成了高达九层的挑空中庭。步入建筑内部,超高的挑空中庭带来开阔的空间体验,极具仪式感。
该玻璃幕墙为横向主索和纵向辅索正交的索网体系, 1.500 x 1.125米的超白双夹胶中空钢化玻璃顺次嵌入网格抓点。两侧玻璃幕墙的设置,可遮蔽雨水与炙热的阳光,调节室内温度,降低建筑能耗,更为经济环保。相较框架式玻璃幕墙,索网玻璃幕墙更为细腻轻盈,此外,为了保证幕墙的安全性,亦在技术层面对设计公司提出了更高的要求。
HPP还在幕墙上精心设计了金属排水系统,有别于传统向外散排的模式,设计反坡,向内收集雨水,再经窗台两侧落水管排至地面,从而最大限度减少雨污流挂,确保外立面干净明亮。
建筑内部从人性化的设计角度出发,采用自由的空间布局、多元的功能组合、自然的色彩搭配。办公楼被分为集中办公区域与研发办公区域,设计师根据两种空间的不同特点,在集中区域设置茶水间,在研发区域设置创意空间,以提高办公环境的舒适感。此外,集中办公区的主色调为浅灰、棕色系,沉稳大气;而在灵活办公区,设计师采用了橙、绿、蓝等活泼的色彩,丰富了空间的层次,带来明快的空间体验。
HPP为上汽大众设计的“企业门户”形象,彰显了上汽大众作为全民汽车梦想引领者的企业风范,并助力上海嘉定安亭国际汽车城的打造和上汽大众汽车产业链的全面升级。
项目图纸
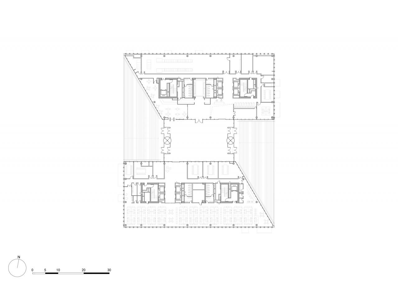
△总平面图
△一层平面图
△二层平面图
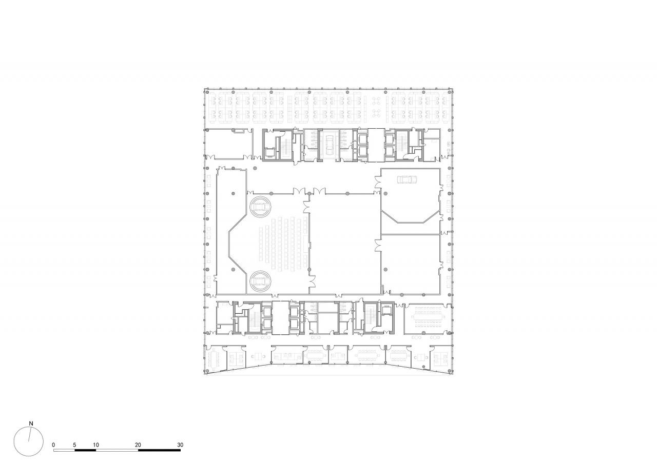
△十二层平面图
△标准层平面图
△立面图
△立面图
△剖面图
△剖面图
△结构大样图
△细部图
△设计生成图
△结构示意图
△天际线图
△结构大样图
项目信息
建筑设计:HPP建筑事务所
面积:41900 m²
项目年份:2021
摄影师:章勇
厂家: 台玻集团, 奋安铝业, 安徽鸿路钢结构(集团)股份有限公司
合伙人::Jens Kump、余炜
联合合伙人:甘远哲
项目负责人:陶韬(建筑)、徐珩(室内)、康宜(景观)
建筑团队(投标阶段):吴守珩、王琳、王京平
建筑团队(实施阶段):周之洵、王琳、Julian Caspar Puchmüller、鲍韦臻、John Daniel Winstead V、李亚玲、尹彦骅、裘怡麟
室内团队:李玲、谢若虹、李梦媛
景观团队:徐亚苹、曹姮、倪静静
业主:上汽大众汽车有限公司
合作单位:上海建筑设计研究院有限公司
结构顾问:施莱希工程设计咨询有限公司
幕墙顾问:上海乐为幕墙设计有限公司
地点:中国,上海

BIM建筑网































