项目缘起
2019年初,“其实建筑”受华腾牧业邀请,设计其位于石门镇(位于乌镇南侧的古镇)的一处以农业及养殖为主题的农旅园区中的“石湾猪舍里”展厅。在前期规划设计中,整个园区最大限度保留了原生的自然感受,由园区西南角进入场地,即可见到园区中由竹制栅栏围合的李子林、开阔草地,因此展厅建筑的设计考量也从开始就定义为:自然中的一种质朴、粗砺的气质。
在区位上,展厅位于整体园区的西侧,毗邻园区主入口,西靠市政道路,东侧则是园区内部的景观与水系,和有机餐厅隔湖对望。建筑整体形态由两房一院构成,从南至北层层进入,依次为纪念品商店、庭院、展厅。整个园区的自然景观与建筑内含有的功能性空间、几个院落之间的视觉与感受的微妙联系也从一开始即被关注。
第一进 “月亮墙”
在主体建筑入口处我们设置了一处“强调的空间”,即:一段弧形的“月亮侧墙”,这是一个巨大的豁口,从外部园区停车场人群的视角可窥见人流鱼贯而入,这是一种预示。在人走入其中时,月墙的设置将天空纳入了人的视线,作为一个转换空间,自然也被纳入建筑与体验之中。
第二进 “榆树庭”
建筑的中心庭院,由纪念品商店与展厅空间夹合而成,即南北两个实体建筑(商店与展厅)与西侧的墙面所围合的“四水归堂”空间。这是一个以中间的“大榆树”为中心的庭院,榆树为前期从园区所植的树林中挑选而来。庭院东侧向湖面敞开,承重的片墙将湖岸景色框取进来,宛如长卷,空间在视觉上也被向东拉长,形成廊-院-廊-湖的层层延伸。
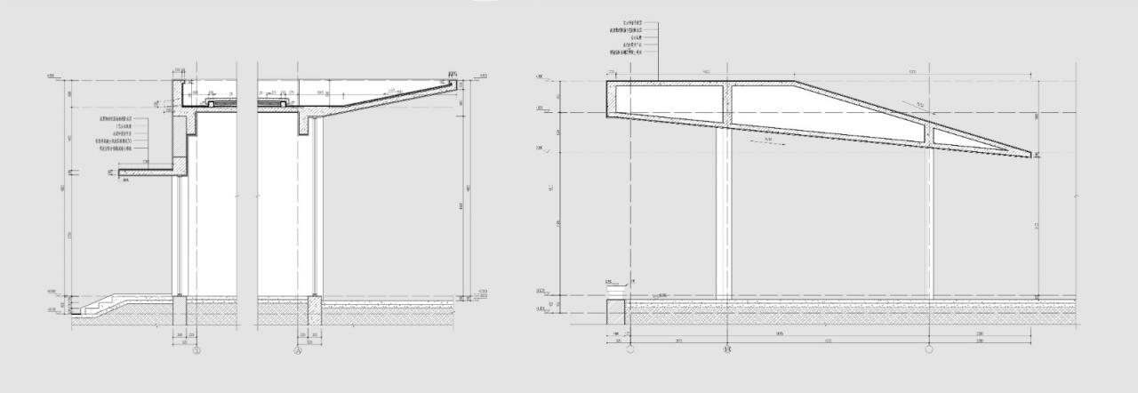
庭院四坡的屋面向中间压低聚拢,屋顶采用双层中空腔体混凝土结构由外圈的80cm厚度逐渐向中间变薄为10cm,周围的檐下空间也随之幽暗深邃,周边的风、光、雨水都被聚拢在院内,成为一方宁静的天地。院内地面——两组立瓦堆砌,各自向两侧逐步起坡交错,与榆树粘连的上升的景观台地与往下的天井的呼应,将天、地、人、建筑聚在一起,成为榆树庭院的精神奥义,建筑以一种超然的姿态存在于自然,同时也被自然洗礼。
第三进 “湖岸边”
建筑北部为展厅空间,其东南两面透明幕墙朝向榆树庭院及场地东侧的湖面打开,内部家具为定制的弧形长桌椅。展厅东侧紧挨着一组灰空间与河埠头。作为建筑的最后一站,河埠头被设置为一处与水面最为亲近的高度,一个下沉的平台空间,材料的改变——青砖铺砌的叠台将建筑与其的高差消解,同时明示了此处空间性质的变化;从埠头上“长出”的背靠花坛的木制长凳提供驻留小憩,与对岸对语。
结尾
空间在人流进入后历经开放、遮掩、进入、压缩、停顿、转折、粘连、疏离、再开放的变化过程。在渐进的叙事中,身体感官被充分调动,与建筑及外部景观发生了丰富的连接;亦使得建筑本体通过各空间片段和外部世界紧密结合在一起。
从总体看,展厅建筑为实体与虚体的结合,与拓碑的关系相似,两块建筑实体与中心庭院相互借景,与三进的灰空间相互依存,分而又合。在材料上,运用钢筋混凝土、钢材、玻璃、瓦、青砖、木材等普通建筑材料,在空间体验与材料造价上取得了一定的平衡。
项目图纸
△总平面图 ©其实建筑事务所
△一层平面图 ©其实建筑事务所
△立面图及剖面图 ©其实建筑事务所
△屋顶平面图 ©其实建筑事务所
△墙身节点图 ©其实建筑事务所
△展馆整体 ©其实建筑事务所
△展馆整体细节 ©其实建筑事务所
△榆树庭院模型©其实建筑事务所
△榆树庭院模型局部©其实建筑事务所
△局部屋顶模型 ©其实建筑事务所
项目信息
项目名称:石湾猪舍里其实建筑事务所展厅
公司所在地:中国浙江省杭州市
项目完成年份:2021
建筑面积:1200平方米
项目地址:浙江省桐乡市石门镇墅丰村
主创建筑师:李诗琪
主创及设计团队:李诗琪、金镭、艾梦江、蓝旭、谭惠(实习)、徐皓钰(实习)、马梓恒(实习)
委托方:浙江华腾牧业
结构设计:其实建筑+桐乡市城乡规划设计院
景观设计:其实建筑
室内设计:其实建筑
施工方:浙江圆周建设有限公司
摄影师:吴清山

BIM建筑网















































