现代集团高级外贸商场1号馆于京畿道南杨州市茶山新城开业,它是韩国第一家画廊式的外贸商场,并在其中添加了诸如艺术画廊及公园等文艺元素。它的英文名“SPACE1”也取自“购物(shopping)、娱乐(play)、艺术(Art)、文化(Culture)、体验(experience)”的首字母,加上数字1以表达其唯一的独特性。其整体的设计方向亦可理解为“每个人的假期去处”,它也成为了大众假期休闲的场所。
本项目有一个引人注目的标志性立方形空间连接室内外。它在整个空间内创造了丰富的表达及景观,每个区域通过“配对城市”的设计理念贯穿和呼应。形成了一个三维的立面并提供了有趣的空间感。此外,通过模糊品牌之间的边界,它提供了多样的动线以流畅地连接购物区及休息区,使访客们得到丰富的体验。
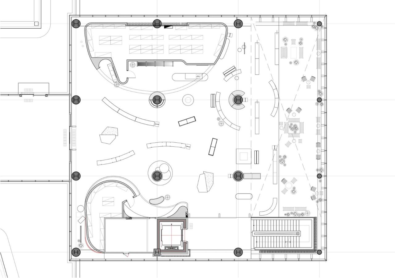
首层的空间的设计通过模仿室外地面材料以形成一个连接户外花园及室内店铺的过渡区。户外遮阳构件及立方形空间结合造就了出色的天花板。餐厅、西点、咖啡厅及生活品牌汇集在一起,使得顾客得到明亮且醒目的体验。位于首层前侧的H餐厅拥有开放式厨房,顾客可以看见烹饪过程。 “天井花园”的设计理念打造了一个顶部有彩绘玻璃,中央有植物的温室,为游客提供在户外花园中用餐的体验。
二层的休息区设有空洞,让参观者同时感受到竖直向的空间感和开放性,并对整个空间的体量有具象认知。在这个场馆中,人们首先会路过一个与整个空间相协调的配饰集合店,以具有造型感的元素进行展示以通过不同的方式销售各种配饰产品。它展示了一个设计语境:丰富的元素可以通过“变和弦”的设计理念结合在一起。设计团队利用玻璃钢、亚克力、金属、切片单板、混凝土及砖瓦等各种质地的饰面材料,根据产品线设计了不同的细节及主题。
此外,在四楼的天花板上,灯光借用建筑单体精致的网格状形态形成了从外部看来非常醒目的造型。所有内部的区域体现了巨大的空间感及粗犷的空间材料打造的精细质感。随着每日的时光流转,自然更迭,呈现独一无二的状态,本项目作为一个自然友好型建筑,其营造的温暖氛围令人经久不厌。通过在此体验,平静会化为访客们日常生活的底色。
项目图纸
△一层平面图
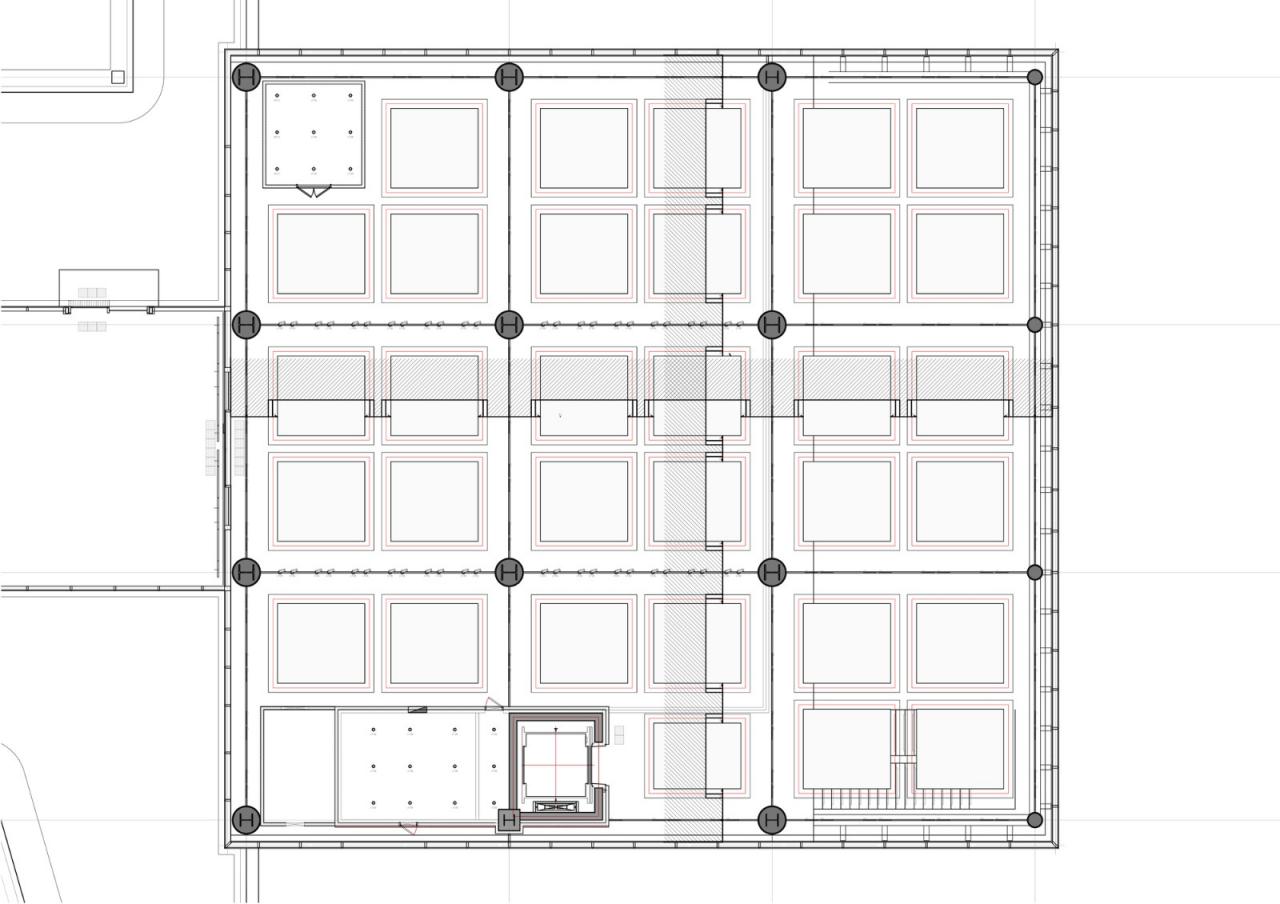
△二层平面图
△四层平面图
项目信息
室内设计: Betwin Space Design
面积: 1626 m²
项目年份: 2020
摄影师: Yong-joon Choi
地点:韩国

BIM建筑网




















