2018年3月,我们接到南粤古驿道新驿站的设计委托,广东省建筑设计研究院有限公司城市建筑工作室(UAD)一直通过“三师下乡”志愿服务保持对广阔的乡村区域,特别是贫困乡村的关注,希望以专业技术回馈社会,而驿站的设计工作就是非常好的契合点。
新驿站的创作从选址到设计都得到非常高的自由度,设计从对南粤古驿道的价值发掘有益、对周围居民有益、乡土环境里的在地性与呼应历史的传统性三个维度出发。
一、对南粤古驿道的价值发掘有益、对周围居民有益。
南粤古驿道是指广东历史上用于传递文书、运输物资、人员往来的经济交流和文化传播重要通道,是拥有特殊文化资源集合的线形或者带状区域内物质和非物质文化遗产族群,并且串联起了广东省60%左右的贫困乡村。随着国家的发展和对文化遗产的重视与复兴,对贫困乡村的扶持,对南粤古驿道进行了系统性的修复与价值发掘。
我们希望选址可以整合旅游资源,经过多次现场勘查,比选了韶关南雄市的南粤古驿道——梅关古道附近的几个地方,最终选址于梅岭古村。从梅关关楼到梅岭古村,保存了整个梅关古道中最完整的古驿道本体,其中1200米与梅关关楼一起成为了国家级文物保护单位,还有一段500米左右的古驿道本体不在其内。所以我们选址在梅岭古村的村头,游人停车后经过梅岭驿站循古驿道上山,沿途参观司马第、下马碑廊等古迹,最后到达梅关景区入口小广场,与现有旅游主线路接通,使梅关古道的旅游资源更加丰富厚实。
△南粤古驿道元素提取
具体的位置经过反复斟酌修改,最终确定在现有民房之前的景区停车场兴建,选择不拆迁民房而减少扰民。未来这里可能成为梅关古道景区的主要入口,同时考虑了把驿站扩建为游客服务中心的可能性,游客旅游线路的加长,为沿街居民的收益也提供了可能性,以此兼顾当地村民、游客、景区管理方三方的需求。
二、对乡土建筑的单元式转译。
新驿站的使用功能是比较简单的,只需要承担古驿道管理、综合服务、交通换乘等功能。因此如何体现乡土环境里的在地性与呼应历史的传统性是设计重点考虑的出发点之一。
我们保持对自然谦虚内敛的态度,以“有用”为基本设计准则,通过对乡土建筑语境与传统建筑的转译,采用现代单元式的设计手法,以等差模数制为组合逻辑,结合了当地传统的青砖、灰瓦、原木等材料,在梅岭古村村头设计了一座具有民居聚落形态特色,与自然相融的单元式驿站。
希望以此,让人们感受到建筑是作为自然的一部分而存在的。在驿站下休憩间,能感受到阳光、清风、山林,唤起人们对自然的感知能力。
项目图纸
△总平面图
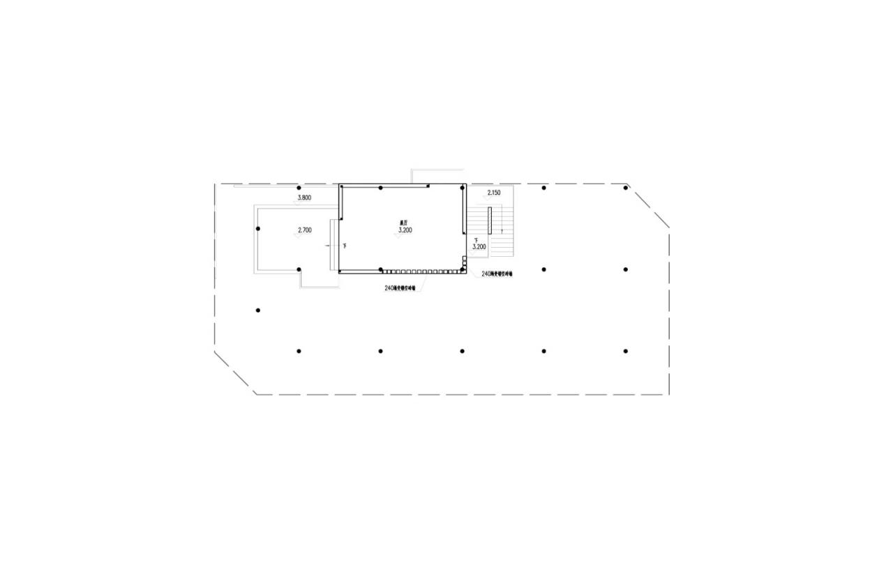
△一层平面图
△二层平面图
△立面图
△立面图
△立面图
△立面图
△模块化屋顶平面图
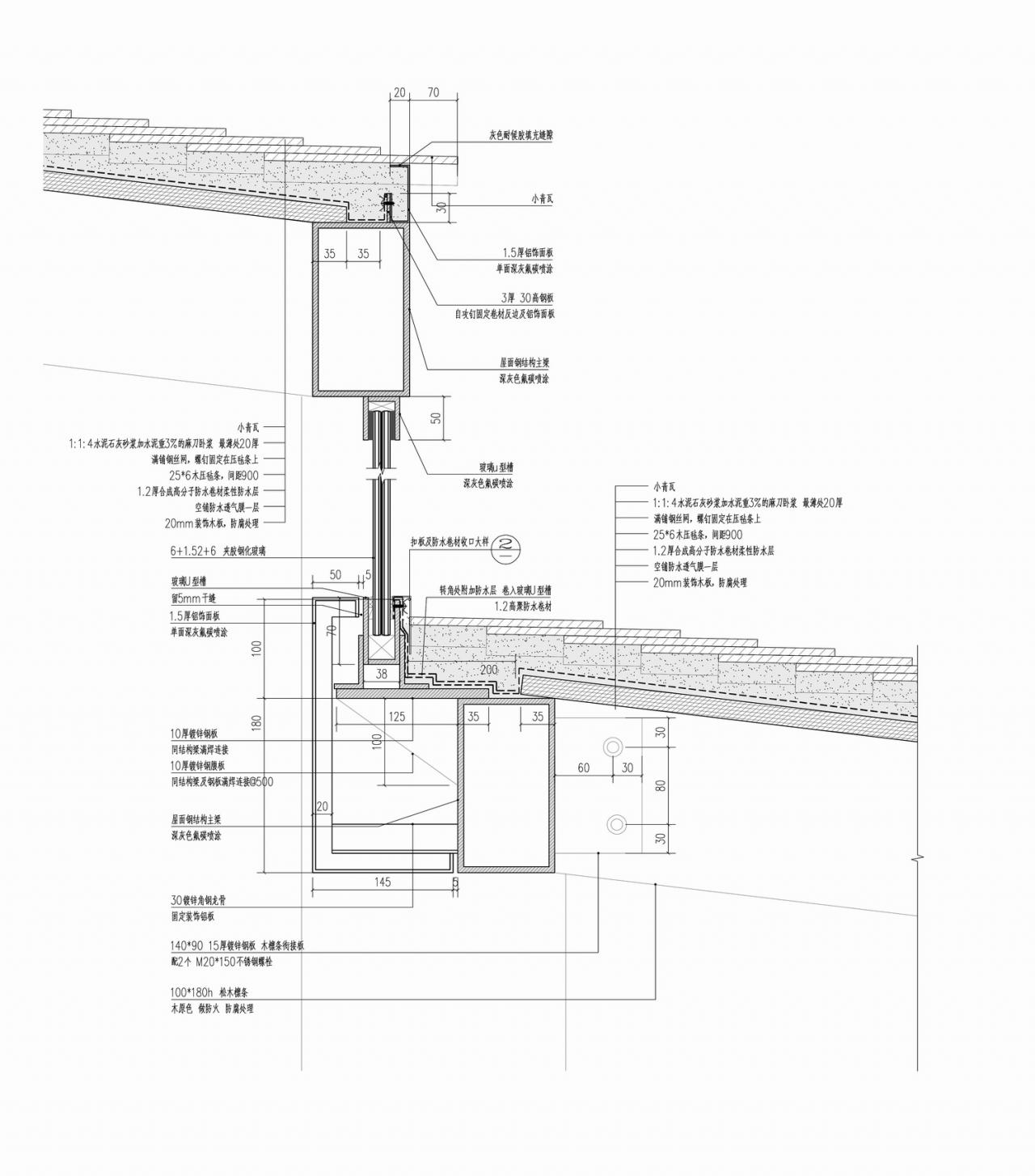
△模块化屋顶剖面图
△模块化屋顶檐口大样图
项目信息
项目名称:南粤古驿道梅岭驿站
设计单位:广东省建筑设计研究院有限公司-城市建筑工作室
联络邮箱:GDAD_UAD_A@126.com
项目完成年份:2018.03.01-2019.01.31
建筑面积:515.4㎡
项目地址:广东省韶关市南雄市梅岭景区
主创建筑师:陈雄
主创建筑师邮箱:GDAD_UAD_A@126.com
摄影师:凯剑视觉 / 李开建、李开庆
设计团队:黄俊华 郭其轶 李珊珊 许尧强 龚锦鸿 陈进于 金少雄 曾祥 戴力 钟伟华 林全攀 倪俍李沛华
委托方:广东省住房和城乡建设厅
结构设计:陈进于、林全攀
施工方:洪宇建设集团公司

BIM建筑网





























