屋顶是建筑与天空的连接,是空间重要的庇护,也是建筑的核心要素。屋顶的形式逻辑被两个自然要素所左右,重力和雨水。重力作为恒久存在的万物法则,雨水作为时刻变化的自然之物。与重力的抵抗、与雨水的疏导,决定了屋顶的形式演变。随着现代材料和力学的发展,自然要素不再是屋顶形式的主导,建筑显现出一种强大无比的人力结果,变得越来越像机器,形体的几何纯粹性和形式的手工操作感(切割、扭转……)展现着现代人的野心。我们对于建筑的哲思并非如此,建筑不是对自然驱赶,而是天人合一的互相接纳:对自然的狂野进行顺导,对自然的生机尽心呵护。
雨,是因重力落下的水。水,既无形又有形,既柔软又强力。容器可以刻画水的形状,重力可以推动水的力量。水的顺导是对重力动态的刻画,容器般的建筑则是对重力静态的塑造。一静一动,被牛顿精简成公式的万有引力,因建筑能够呈现出多种推演的证明。雨屋位于远离城市的半山之中,周围被竹林和农田环绕。两座分开的村宅用一片大屋顶覆盖。屋顶被圆柱撑起,雨水得以多种方式和路径导向地面,形成一种无形和有形的对仗。于此,我们称之为顺水六式:
1、举水将屋顶高高举起,或从地面挺立或从墙边承托,水波形连续的屋顶是导水的容器,将原本均匀落下的雨滴汇聚成线性的水路。
2、川水水路沿竖直方向奔涌而下,形成最有力量的疏导。“水滴石穿”是描述水力的古老形象。而在设计中则是让水路向下洞穿混凝土板,让水之力得以显形。
3、引水反曲形水渠,渠之形即为水之形,渠之向引水而去。
4、散水水从半层屋顶直接沿屋檐散落,跌入水塘之中,这种最质朴的落水方式是自由释放的水的原始形态。
5、踏水
在建筑二层,路径必经之处,要穿过一处水塘,水塘中圆形的汀步需要备好步伐跨越而过,如同雨天在野地里避开水坑的踏水而行。
6、跨水桥是富有诗意的人造物,连接和跨越:越涧,越塘,越层,是空间之间,身体层面的线性连接。在雨屋的顶层,有一间四面通透的大山亭,在屋中,将远山和身体连结。在檐下,于心中,留一片山水。
2016年设计的“川房”,将金属落水管坦白的表露在建筑外立面,来形成“川流而下”的关于水的隐喻,是第一次试图探讨重力与雨水的显形表达。“雨屋”则是对于重力和雨水的进一步探讨,不只是形式的“显露”,更是在践行一种对于自然的精心干预:“欲取之,先集之;欲驯之,先顺之。”
项目图纸
△区位图
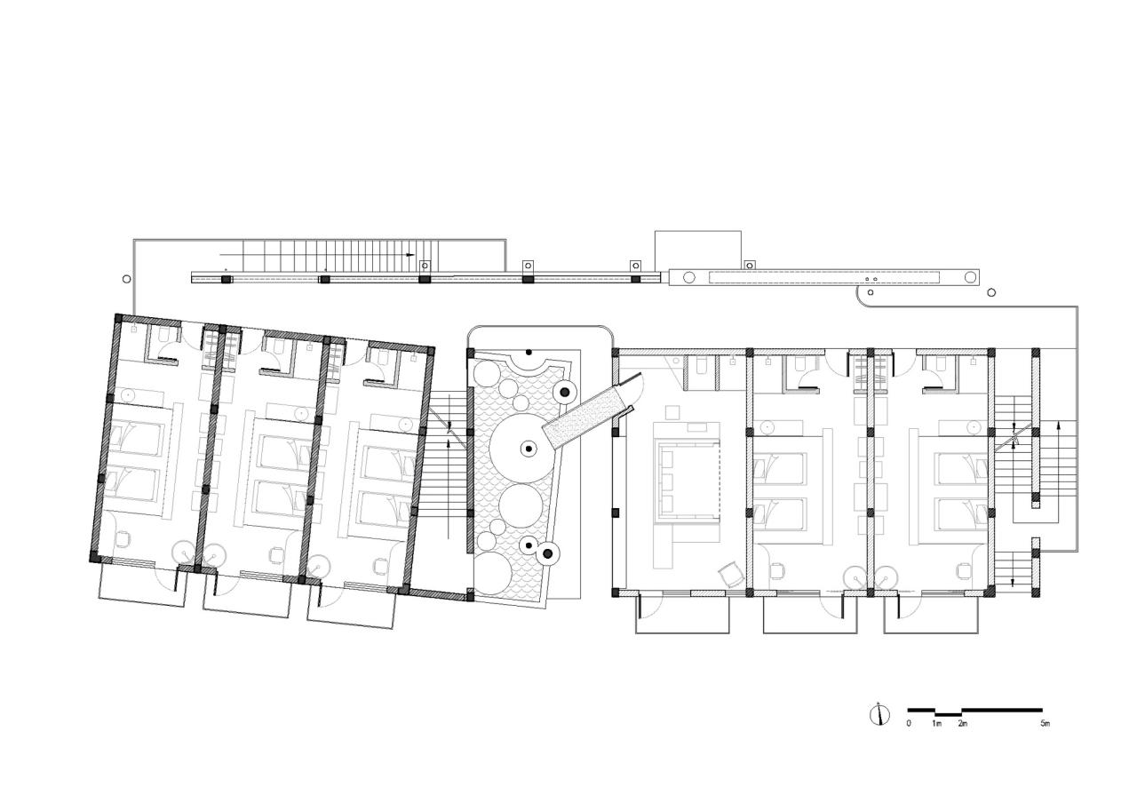
△一层平面图
△二层平面图
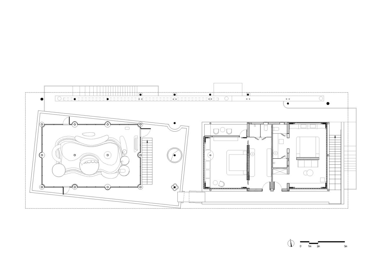
△三层平面图
△立面图
△模型图
△模型图
△模型图
项目信息
建筑设计:来建筑设计工作室
面积:1082m²
项目年份:2021
摄影师:唐徐国,赵奕龙
主持建筑师:马岛
项目建筑师:樊宇
设计团队:樊宇、廖启贤、张莹
委托方:桐庐·未迟·千山精品民宿
地点:中国,杭州

BIM建筑网










































