开启乌托邦之愿景
雁荡山,以山水奇秀闻名, 素有“海上名山,寰中绝胜”之誉,史称“东南第一山”,大荆镇是雁荡山的东大门。乐清市荆山公学创办人怀揣对家乡的眷念,回归故里,与昔年好友一同在山水秀丽的雁荡山麓大荆镇办学,期望为家乡的学子创造更优质的教育环境。
设计师在受邀调研期间,与创办人多次交流办学理念、家乡的地域文化,创办人聊起他儿时读书的小学校园里的那棵老香樟树,茂盛如盖,师生围坐树下谈天论地。这让设计师瞬间联想到路易斯·康关于 “学校开始于一棵树下” 的著名理论,于是,一个低密度、自然生态的乌托邦式校园构想就此诞生。
转译传统书院之文脉
现代教育强调共享交流,而书院作为中国传统的学堂形式,以严谨有序的格局,强调空间的有序流动和转换,也形成了一系列的交流空间。乐清受浙东学派影响,宗学书院蔚然成风,如梅溪书院、宗晦书院等知名书院都曾在历史的长河中大放异彩,吸引着各方学子前来求学。
在荆山公学的校园空间规划中,设计希望保留浙东学派的历史文脉,转变城市校园的高密度、普适化理想,做一个融入大荆镇的低密度地域性学校,通过对岳麓书院等经典中式书院进行拓扑研究,将其空间布局的序列转译至设计之中。
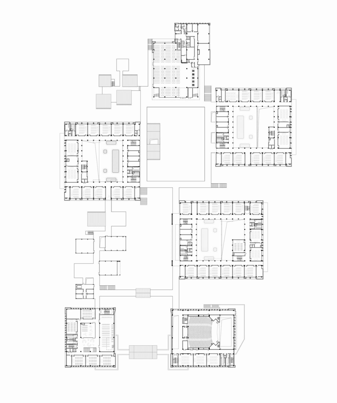
荆山公学以南北为主要空间轴,形成以四进院落为核心秩序的空间布局。以大气端庄的主校门为始,与二门隔园相望,学习中心、艺术中心分列轴线两侧,空间秩序感强烈,通过风雨连廊围合,形成一个校园“泛综合体”;第二进分列小学部教学楼与名师工作室,一是生态园林贴合小学生乐于探索的特征,二是于曲水之上营造名师工作室,形成动静对比;第三进由相对理性的初中部和高中部教学楼与食堂、校史陈列馆围合而成,形成高效率的学习生活环境;第四进以相对自由的方式布置宿舍楼,为学生提供静谧的休息环境。复廊勾连,院落叠进,如一副徐徐展开的园林长卷,礼仪秩序与创造活力在这里和谐共生。
书写地块整合之诗意
山麓下的基地有着自然蓬勃的诗意,同时带来了复杂的边界问题,校园被排洪河道、城市道路及分期地块开发等多种因素所割裂。在多次的实地调研过程中,设计师想到把河对岸的地块作为校园的“别院”——就如同传统书院中常见的自然式园林,跨过一道桥的物理空间,也就形成了心理上的一种转换。这道桥可以像当地传统的廊桥一样承载多样的使用空间,成为多点拟合的曲线游憩空间。
跨河平台将两岸合为整体,在使用感受上达成完整的序列空间感,同时可发挥借景的优势,将城市水系纳入到校园景观体系之中。通过恰当的设计,跨河平台创造出优美的步行体验系统,漫步其上,犹如在一个完整校园中行走,消除了学生“学习+生活“两点一线的乏味感受。
经多方努力,跨河平台的构想终于落成,整合了校园东西两岸的地块。校园山水相傍,设计依据景观资源引入多条景观轴线,取景、引景入园,使主校园两个地块被优美的山水整合起来。
绘筑山水意境的校园
根,是一种记忆,是一种存在,是一种历史。
小城镇的肌理与城市不同,设计结合当地民居的建筑形式和材料,在校园中部植入两组1、2层高的小建筑,来呼应地块周边民居的肌理和体量。为避免学校成为突兀存在的庞然大物,简化的双坡屋顶与远处的层峦叠翠形成相互映衬的天际线,使得校园场景契合地嵌入山水之中。各教学楼、综合楼交织穿插,空间场景灵活转变,远近高低,收放自如,宛若一幅浓淡相宜的水墨山水画。这既是对场地的尊重,也是一种对记忆的延续。
探索当地文脉的过程中,乐清南阁古村的牌楼群也引起了设计的重视。作为当地文化历史的荣耀与闪光点,牌楼群不仅代表了当地建筑的营造匠艺,更体现了其德义双辉的君子遗风和崇文尚德的民风。转译了牌楼建筑语言的主校门以铜为主材料,通过简约的线条累叠表达牌楼层层斗拱的结构,雄浑庄穆,奠定了荆山公学“立心为本,知行合一“的形象。
教学楼等建筑则以合院的形式存在,采用文化气息浓厚的灰瓦装饰缓坡屋顶,质朴的清水墙面与温暖的木色外墙和镂空陶土砖组合,营造独特的地域性氛围,回应当地的场所记忆,使其成为当地文脉历久弥新的一种表达。
讲述树与人的故事
关于路易斯·康对树是学校起源的阐述是设计师耳熟能详的一则空间理论了,在中国教育理论体系中亦有“十年树木,百年树人”的理念映照。
大树成为庭院的主角,在每个庭院用不同的形式讲述不同的故事。在作为主要礼仪入口的第一进庭院,行列的榉树营造纵深感强烈的入口空间,亦是“中举”的美好祝愿;二进庭院则通过多棵大树,营造蒙络摇缀,参差披拂的自然树林氛围,给予低年级学生自由探索的空间条件;位于序列压轴的第三进庭院,以一株参天大树统领全局,复刻了创办人记忆中的儿时庭院,即回应了往昔记忆,又为后人延续那一片树荫清凉。未来属于荆山公学学子的场所记忆,或许就是承载了欢声笑语的庭院与树荫下的清谈阔论。
后记
乌托邦式的教育理想像是创办人手中的火种,楔在荆山公学这座山水校园之中。不同的行业形成不同的立场与奇思妙想,如同萤火汇聚,为这座新生的校园照亮了前路。因土地规划等现实因素,荆山公学的主校区西侧预留了大量的二期建设用地,恰好为学校持续渐进式的发展建设创造了可能,从规正的主序列中引导出水木清华自由探索的氛围。渐进式发展恰恰又暗合了早期书院因时变迁的发展模式,教育不会是一蹴而就的,而校园作为承载教育的物质空间,势必也会随着时间悄然发生改变。整体实施的校园固然有其优势,渐进式发展的校园却更能适应时光的雕琢。
这是一次酣畅淋漓的设计实践,更是一次惺惺相惜的设计体验,当投入设计中的情意被更好地感知、回应时,设计想要表达的空间与细节都以一种理想的状态实现。也正因这种理想的碰撞,情感的交织,创造的物理空间不再是冰冷的墙体,而是承载着温度的场所,它落于纸面时是空的,立于地面时又是满的,它已经记载了很多故事,也将开启后来人更多的精彩故事。
项目图纸
△总平面图
△一层平面图
△二层平面图
△爆炸图
△结构逻辑图
△校园立面图
△校园剖面图
项目信息
项目名称:乐清市荆山公学
委托方:乐清市荆山教育投资有限公司
项目地址:浙江省乐清市
项目功能: K12学校
方案设计:浙江大学建筑设计研究院有限公司
主持建筑师:范须壮
建筑方案设计:范须壮、陈瑜、施明化、林肯、徐荪、刘佳、徐高婷、裘嘉珺
室内方案设计:范须壮、施明化、林肯、刘佳、徐高婷
景观方案设计:范须壮、林肯、姚浩军
幕墙设计:杭飞
声学设计:张三明、周飞
照明设计:宋洛颖
室外综合管线设计:陈飞、陈激
智能化设计:杨国忠、林华、叶敏捷、袁晓男
标识设计:杭州美高品牌设计有限公司
施工图设计:浙江新宇建筑设计有限公司
施工单位:浙江金城建设集团有限公司
建筑面积:100499平方米
建筑材料:无机饰面砂浆、陶土砖、陶瓦、铜板
设计时间:2018.01~2019.06
竣工时间:2020.12
摄影:章鱼见筑


BIM建筑网








































