深圳移卡是一家支付科技领域的上市公司,其办公总部位于深圳科兴科学园区,此次邀请JSPA Design 对三个楼层的办公空间进行了改造,总面积达6000平方米,试图以革命性的设计展示科技公司更加透明和开放的企业文化。
在启动之初,设计师希望一改覆盖在其表面的无实际功用的饰层,在更长久的时间跨度上,恢复建筑结构的原始风貌,从而实现建筑意义的回归。建筑粗旷的梁柱复原之后,打开部分楼板,从而为垂直轴线上更丰富的设计留出余地,亦能引入更多自然光照明,让光影重塑人们的空间感受。
入口从中间层切入,并汇集项目所有公共功能:接待区、咖啡吧、活动场所及产品展示区。公共功能区块被有机组织在一个长长的通透地带的轴线周围,呈现出视觉开阔感与通透感。建筑立面前的长条形接待台,不仅发挥接待功能,也担当了烘托空间氛围的结构体,其后方的仙人造型墙,于内外均构成了一道宜人的风景,也让内部空间从外界的干扰中抽离出来。
低矮的天花会令办公空间显得压抑,因此,在有限的层高条件下,设计师让中间层和三层实现了体块交叉和视线共享。在中间层上方空间打造5间全透明的漂浮会议室,设计师以令人玩味的不平衡感,来彰显移卡企业充满创造力和积极交流的氛围,同时给予来访者印象深刻的空间体验。
对内,透明的工作环境可以增加内部的信任和互动;对外,则发挥展示办公场景的作用,让办公人员和来访者之间超越物理距离的限制,产生妙趣横生的视觉互动,在细微处体现科技公司理念上的未来感。
垂直交通围绕一个颇有体量感的造型楼梯展开。楼梯设计为雕塑风格,颇有艺术感,由两个L形结构组成,逐层交叠攀升且无多余支撑。
色彩和造型上的稳定感与可视架构缺失营造出的漂浮感形成强烈反差,为工业风的办公室增加了现代化的多元符号。工位被规划为多个小型的独立单元:其中会议室和经理办公室也都采用了玻璃盒子的造型方式,构成独立而通透、舒适而流动的办公场景。
玻璃、不锈钢,现代的材料语言,以不同的表面质感演绎出多样的空间表情,混凝土砖不仅装饰了公共区域,也纵向延伸至室内墙面;灯光设计则强化了玻璃、不锈钢等光滑材料与空间粗犷感对比。让设计不仅在物质层面上突破了风格的界限,创造出自由流动的空间,也为重构办公空间中人与人的关系,做出了有益的探索。
项目图纸
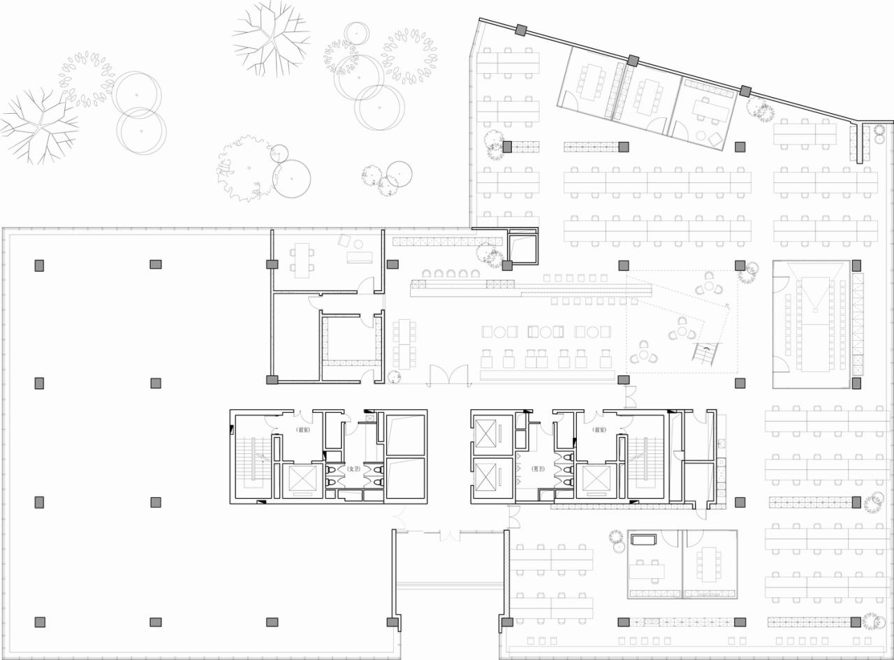
△五层平面图
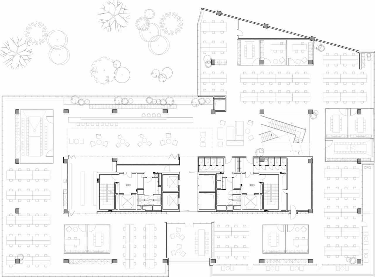
△六层平面图
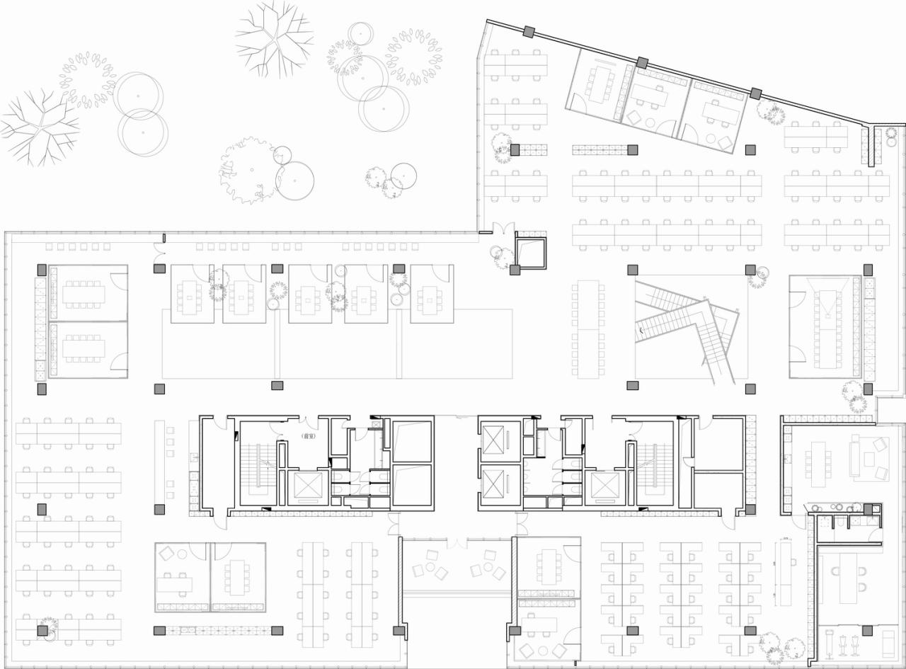
△七层平面图
△剖面图
△剖面图
△剖面图
项目信息
项目名称:深圳移卡办公室设计
项目地点:中国广东省深圳市移卡科兴科学园C3栋5-7层乐刷办公室
项目类型:室内设计
项目状态:已建成
主持设计师: Johan Sarvan, Florent Buis
设计周期:2020年8月20日 – 2020年10月28日
施工周期:2020年10月- 2021年2月
室内面积:6000平米
材料:洁具- SARVAN
摄影:苏圣亮

BIM建筑网



























