△鸟瞰 ©田方方
新教育体系
中国美术学院(国美)新校区的所在地良渚是杭州市的一个区。在良渚校区,做为以艺术为本的综合大学国美设立了四个学院;它们分别是创意设计学院,艺术管理学院,基础教育学院,和继续教育学院。该校园将容纳3000名全时学生和1000名继续教育学生并建立起四个教研方向:发展跨学科创新人才,推动设计与信息经济,融入人工智能技术,建立当代设计教育新标杆。
△俯瞰校园肌理 ©田方方
在校园设计竞赛阶段,国美要求参与建筑师想象一个能够帮助实现上述目标的教育体系。我们意识到学生在入学时即确定专业的作法已不符合今天高等教育的精神,于是建议了一个有如下特征的教学框架:1. 手脑并用。每个学生,无论其未来发展方向,均需上有关制作的基础课程,例如绘画,设计,或建筑等等。2. 高年级的课程以研究项目为主导。培养学生解决实际问题的以及跨学科团队合作的技能。3. 取消“系”的设置,对知识进行整合。
△二层室外公共空间及工坊 ©田方方
△工坊宿舍鸟瞰 ©田方方
建筑育人
基于以上具有设计策划意义的研究,我们认为建筑可以也应该成为教育体系的一部分。我们问:什么样的校园空间有利于动手和实验并鼓励学生之间在课内外互动与合作?尽管传统教室仍然有其存在的必要性,主要的教学空间在良渚被重新定义为开放、延绵的工坊。在工坊中可以进行常规课程的教授,也可以是学生们或独自阅读写画或结伴搭建讨论的场所。
△工坊 ©田方方
在工坊中,校园上所有的活动尽可一览无余,学生一边沉浸在自己的兴趣中一边也不难发现到其他同学从事的种种创作。我们希望在这个校园环境中能够模糊教导和学习、研究与实践的界线。高耸的拱顶给工坊带来充分的自然光,也给大型的建造及事件,如会议、戏剧/舞蹈演出,创造了条件。
△俯瞰校园局部 ©田方方
△校区主入口 ©郎水龙
居学
在良渚,学生就住在工坊之上。工坊、公共空间、宿舍自下而上的垂直布置把学生的生活和学习融为一体,体现了“校园即社区”的理念。宿舍被称为“学舍”,因为其中设置了专门为学生自发组织“兴趣社“的空间。兴趣社是学生自学课程的一种形式。
△校园中的高层宿舍 ©吴清山
我们希望通过建筑向学生推介“生活即教育”的思想,这正是良渚校园规划及工坊设计背后的核心理念。同时,从设计概念上,良渚校园也是开放的。目前,国美已经为良渚的新生们开设了一门课,在课上老师邀请同学们想象他们利用校园空间的方式,即想象如何将校园拥为己有。
△“上居下学”的校园空间 ©田方方
△高层宿舍立面局部 ©吴清山
独栋校园
在良渚,不但没有教学区与生活区之分,所有的建筑都用廊子相串连,形成了一个只有一栋建筑的校园。为了满足学生们晾晒衣服的需要,同时又不影响混合使用校园对建筑外表统一的追求,我们在学舍的阳台外面设计了一个整体的格栅系统,达到即整洁又遮阳的目的。在多层学舍的屋顶等多处,我们还设计了一系列名为“探索器”的半室外纯建筑空间,以进一步丰富校园生活。
△宿舍楼一层和二层,二层是未来兴趣社的所在处 ©王玉山
△二层连廊 ©田方方
出于施工管理的需要,良渚国美分为两个阶段建造。一期已完工,于2021年9月迎来了第一批学生。整个校园将于2023年完成。
△从二层连廊看宿舍 ©田方方
△形断意连的工坊空间 ©田方方
△工坊入口 ©郎水龙
△工坊出挑的拱顶 ©吴清山
△工坊一二层连廊 ©田方方
△工坊拱顶下空间 ©田方方
△工坊室内 ©田方方
△工坊室内 ©田方方
△作为展览空间使用时的工坊 ©田方方
△连延的工坊室内空间 ©田方方
△连接工坊一二层的楼梯 ©田方方
△工坊二层专业教室内教学场景 ©李诗琪
△大窗户为工坊室内引入充足的自然光 ©田方方
△食堂入口及室外楼梯 ©田方方
△食堂室内 ©李诗琪
△从宿舍与工坊间远眺体育馆 ©田方方
△体育馆 ©田方方
△体育馆的混凝土拱壳 ©田方方
△体育馆室内 ©吴清山
△行政楼 ©吴清山
△多层次的工坊檐下灰空间 ©田方方
△挑檐局部 ©王玉山
△工坊与院子 ©吴清山
△校区景观绿化 ©田方方
△校园景观及水系 ©吴清山
△体育馆外的景观水系 ©吴清山
△体育馆外的景观水系 ©田方方
△联通自然河道的“剑池” ©田方方
项目图纸
△总平面图 © 非常建筑
△总平面图
△校区首层平面图
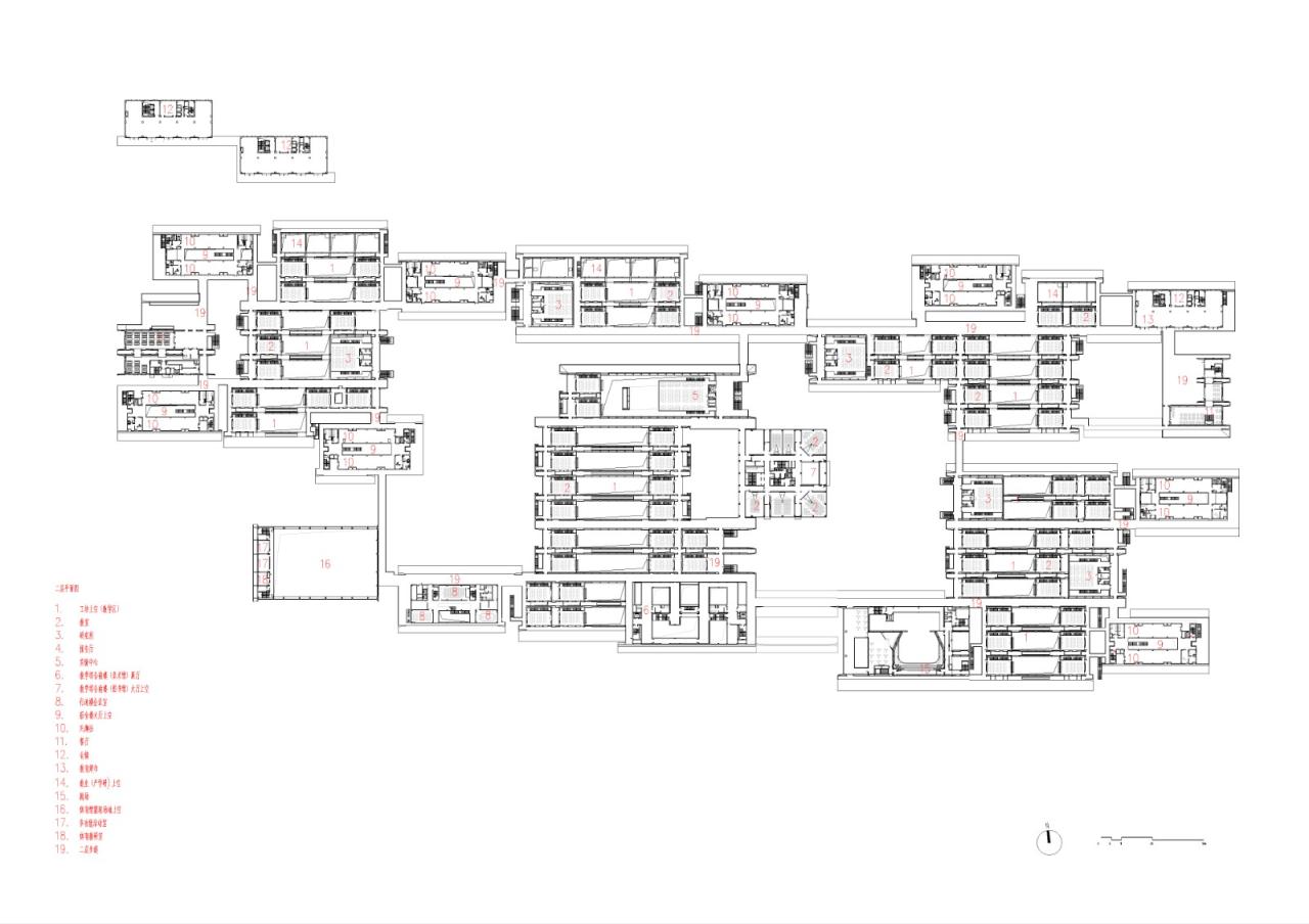
△校区二层平面图
△长轴剖面图
△短轴剖面图
△高层宿舍平面图
△高层宿舍剖面图
△高层宿舍立面图
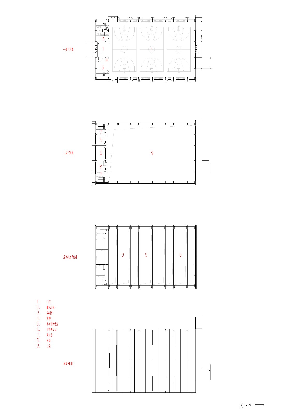
△体育馆平面图
△体育馆剖面图
△体育馆立面图
△行政楼平面图
△行政楼剖面图
△行政楼立面图
△教育体系 © 非常建筑
△剖面图 © 非常建筑
项目信息
客户: 中国美术学院
地址:中国,杭州良渚
主持建筑师:张永和、鲁力佳
项目团队:建筑:尹舜、王玥、龙彬、黄舒怡、王文志、梁小宁、刘扬、柳超、张博文、王硕、程艺石、何泽林、师琦、林诗洁、李相廷、谢岩旭、焦慧敏; 室内:王玥、张敏、韩书凯、李帅;景观:师琦、尹舜、林诗洁; 现场协调:李诗琪
施工图设计:同济大学建筑设计研究院(集团)有限公司 建筑设计三院
照明顾问: TJAD建筑照明所
建筑面积:180000 平方米
结构和材料:钢筋混凝土结构
设计周期:2018.3-2019.6
竣工时间:2021 (一标段)

BIM建筑网



























































