海口国际免税城项目规划总建筑面积92.6万平方米,由6个地块组成,是集免税商场、星级酒店、高端办公、配套住宅以及大型商业为一体的综合建筑群,项目投资额128.6亿元。建成后,将为海南免税购物版图再添“新地标”,助力海南建设成为国际旅游消费中心。此次作品作为整个海口市国际免税城唯一的商业接待中心应运而生,希望为未来的商业合作提供高品质洽谈场所的同时,更加成为海口城市对外宣传的名片。
建筑,最早在石器时代就已经出现,利用最基本的维护结构,为人们提供遮风避雨的场所。随着生产力的逐渐发展,建筑的功能不再仅仅是满足居住的基本需求,而是在功能性的基础上,注入了更多精神层面的追求。而这座坐落在海口滨海新区的建筑,不仅仅是免税城招商接待中心,更是一个现代化的艺术馆,体现了海口国际免税城的高品质定位与调性。它作为西海岸城市的门户,也是这片区域的精神堡垒。
设计中运用了解构主义的手法, 将建筑墙体进行拆解,重组,释放其形式和体量,再通过体块的穿插,来实现空间的无限可能性。而风格派的融入,又将建筑抽象,简化,使其本身成为一种艺术元素。
增加外墙的厚度,以对其进行强调,形成强烈的建筑符号。同时在墙面插入窗与平台,让封闭的建筑对城市打开,同时也将城市事件引入建筑,成为公众创造事件的场所。
圆形元素的加入则更多的强调了建筑的几何感,弧形的墙面在外墙开洞处被展示出来,并使用截然不同的材料,在立面形成视觉的焦点。室内也在不同形状体块的穿插中,形成了丰富而变化多样的空间。
在立面色彩的选择上,考虑到海口日照充足的气候特点,选择了白色作为主色调,使建筑在视觉上更加明亮清爽。大面积得白色墙体像一块纯洁的画布,光影就像笔墨,在墙面作画,如同国画中的留白。
立面材料选择了横纹板作为主立面,在突出建筑的墙体和弧形墙面处,使用钛锌板作为点缀。横纹板的白色与钛锌板的灰色相互碰撞,形成强烈对比。而两种材料的肌理都来源于棕榈干的表皮,在使建筑更显质感的同时与周边的自然环境形成呼应。
项目在功能上分为两大区域,营销区和招商区。为了实现两个功能区的相对独立和建筑的整体性,我们将体块布置为L型。营销区域沿主干道布置,更具开放性。首层的洽谈区域使用了大面积的玻璃,空间明亮通透,内部的情景被展示给行人。而良好的可达性让行人也能很便利的参与到建筑内部的活动中。
与营销区域相比,招商区整体则相对封闭,以保证访客的隐私。招商部分的功能沿城市次干道展开,在临街界面一侧,以实墙面隔绝喧嚣,视野在面对内庭院的一侧打开。访客通过钛锌板的圆筒进入建筑内部,二层对内设置了露台,可以欣赏内庭院的景色,以及远眺整个片区。
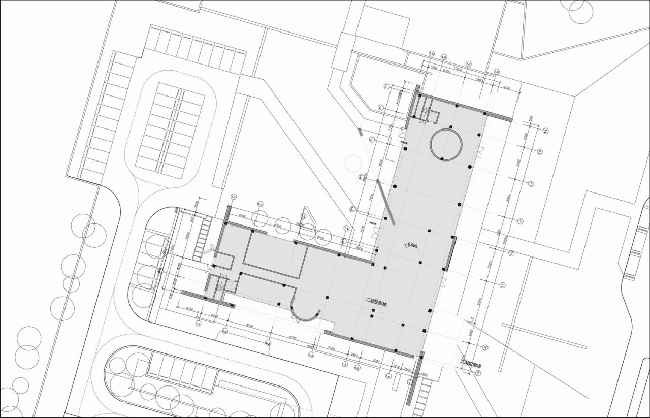
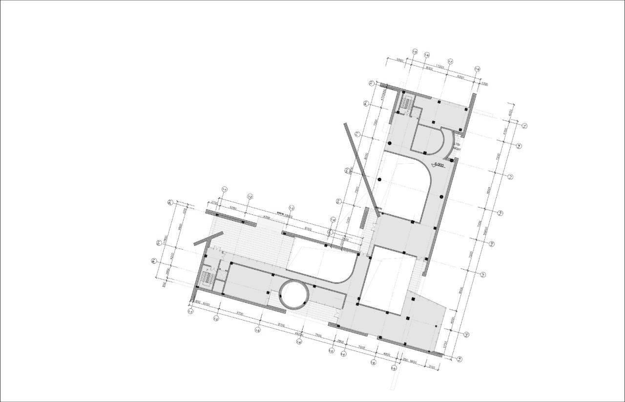
项目图纸
▲总平面图
▲ 1层平面图
▲ 2层平面图
▲ 顶楼平面图
▲立面图
项目信息
项目类型:商业建筑
项目地点:海口,海南
建成状态:已建成
建筑面积:2215㎡
设计单位:aoe事建组
完成年份:2021年
主创设计师:温群
技术总监:马剑宁
建筑设计团队:温群,马剑宁,汤啸,刘柳青,刘晨
摄影:UK Studio
事务所网站: http://www.aoe-china.com/

BIM建筑网
























