历史与当代共生的“活力街区”
朱紫坊位于福州津泰路安泰河沿,旧名三桥,为唐罗城护城河之一,宋代通奉大夫朱敏功居此,朱氏兄弟四人皆登仕版,朱紫盈门,故名。朱紫坊是近代“海军世家”,是萨镇冰、萨师俊、方伯谦、方莹等海军名人聚居地。
△朱紫坊的历史原貌 图源网络
△修缮后的朱紫坊建筑 图源甲方
三山脚下,两塔之间——
朱紫坊与历史古街三坊七巷隔街相望,记录着福州千年历史,承载着古城乡愁。悠长的历史让朱紫坊的建筑群被列为全国重点文物保护单位,随着保护修复工作的持续推进,朱紫坊历史文化街区正以“活力街区”的姿态回归公众的视野。该项目朱紫坊游客中心就以这种姿态亮相于众。
01当代漆艺术的载体
中国是漆文化大国,福州是中国漆艺重镇,福州与中国漆艺的现当代发展都有千丝万缕的联系。从沈绍安家族开创的近现代福州漆艺高潮,到沈福文建构的中国最早的漆学科,从改革开放中国漆画创作的勃兴,到如今漆艺作品当代手法的呈现,当代美术思潮与漆文化艺术的碰撞、交融开启了中国的漆语时代。
著名漆文化大师沈绍安的漆艺博物馆也坐落于朱紫坊的芙蓉园,芙蓉园也是目前当地保存最大完整的古典园林之一。朱紫坊的漆文化迎来了首届及第二届的国际漆艺双年展,展览以“新时代·新漆境”为主题吸引了来自中国、美国、德国、法国、澳大利亚、日本等9个国家的180多名艺术家及近300件艺术品参展。回顾过往、望其当下,朱紫坊在历史与当代的使命始终在谱写、延续……
接到项目之初,设计师也在思考“古厝文化街区里的游客中心一定要古色古香吗?我希望它还可以有不同的样子”,沿着街区和主干道一圈,车流马龙、阳光忽烈忽弱、主干道与周围商业街之间停满了车、五颜六色的各家商招与项目的外幕墙并肩。
这些现象让设计思考始于和周边环境的反差,不论方向的视线都能看到建筑外墙的“白”、“光影”、“行走的光束”;替代烟熏灰外墙的白色幕墙、富有层次砖瓦的马鞍墙、纵向阵列的金属管、穿梭于金属管的光柱,随着光影的移动,白色外墙呈现给路人不同的视觉享受。
在纷杂的环境中第一眼让人看到这个建筑,驻留与建筑的外广场,也是这条中心街唯一的内退广场。这就是设计想赋予它的外衣。但遗憾的是由于是历史传统保护街区,甲方与政府多次沟通,建筑外围能动的只有幕墙与马路的内退地面、墙面至今未能。
02 游客中心的重新解读
游客中心的构造与定义我们重新解读、重新架构、 延展了 A级景区旅游功能指标以外的更多价值意义。
方案核心以人为本,手法简约却细致,剥去繁缛的装饰,在简约的观感下呈现出层次和微妙。
当下大部分城市的公共空间都缺乏真正意义上的公共性,许多空间都塑造着距离感,让人望而却步,在其空间的使用者难以产生互动和沟通。围绕中心球梯的两个环形围坐,就像儿时门口纳凉的大长凳,并排而坐、避免不同城市访客对视而坐的陌生与尴尬,建筑户外广场的大长椅也是出于同理思考,拉进人与人的距离,产生不同文化的传播和共享,也让公共空间面积最大化。
03城市文化的在地性
建筑主体位于安泰河畔与路道大榕树的交叉处,主入口必经安泰河畔,通过古式花格门隐约可见空间内部的轮廓,此时的建筑仿佛被赋予含蓄、谦逊的气质。
进入空间主体,中心位置的白色巨型球体瞬间进入眼球,整个空间提取“白”作为主色,古厝外建筑的灰色与内部空间的白色金属球体、白色墙面、米白色环氧水磨石地面、玻璃产生视觉强烈的冲突,全视野里跳出“一抹白”,同时凸显了三坊七巷建筑群俯瞰景的灰色墙面浮雕。
为历史建筑与当代空间的艺术融合创造了可能性,也为通过视线的引导扩大访客的空间感知。
空间和形式的关系是建筑艺术和建筑科学的本质---贝聿铭
由于建筑单层平面面积不大,功能间及办公处都尽量考与平面的后端,留给受众最大的公共空间。在达到设计效果的同时满足了A级景区游客中心的所有功能需求。球形楼梯的功能衍射到历史文创品的展陈需求及贯穿二楼,将空间由二维平面转换为三维立面,结合球形层架不同文化书籍、大漆器皿、艺术品等物件,犹如一个大型魔幻球,供访客自由探索艺术与知识的魔力。
有限的平面空间切出一个圆形内核,把人群聚集在空间的中位,破除建筑场域的既定界线,在开放式的平面格局里回归到建筑空间本身的社会本质使用性,并最大程度把户外的自然光影引入室内。二楼露台午后的阳光透过古式花格门映在山脊线的白墙上,如把历史的记忆刻画定格在此时,从前与当下变得模糊,彻底融合与空间的感受。
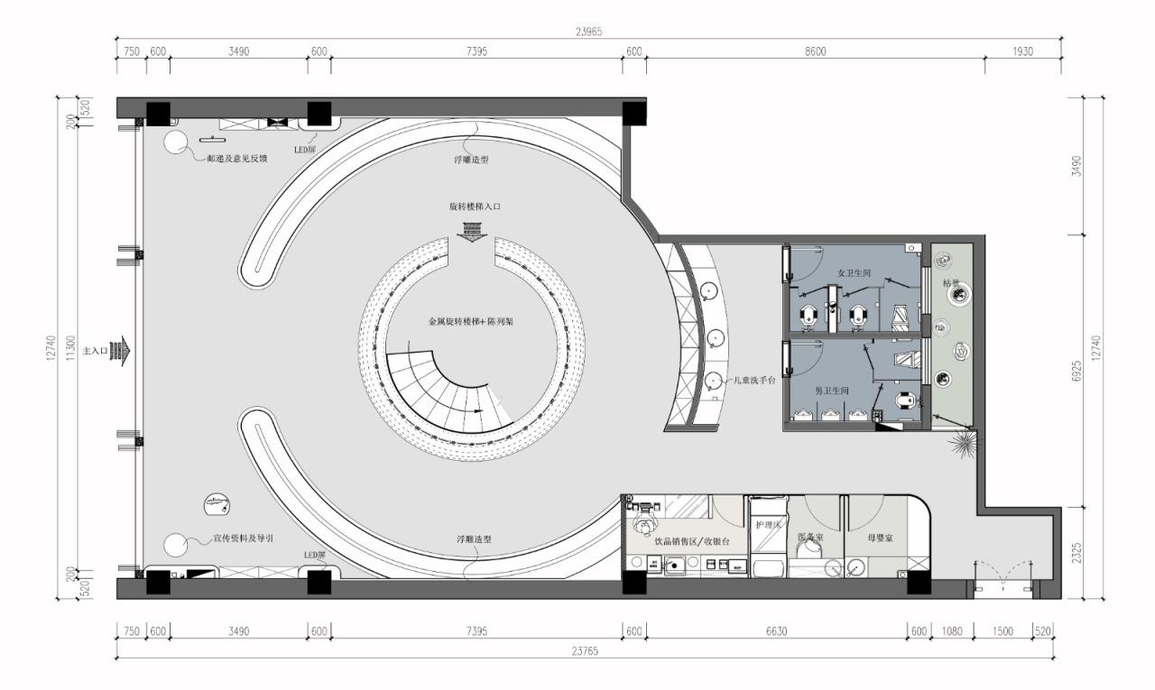
△一层平面图
△二层平面图
△空间轴测图
△爆炸图
项目完工还未正式开放,已引来当地百姓、网红博主接踵而来的拍摄,回顾最初和甲方的沟通透底:政策上能接受的改动范围、落地上大概的项目预算、以及强调项目的“网红”、“流量”。
作为设计方,董欣猛认为“网红”是一个敏感的边界词汇,空间应该让当代人愿意停留,才能有机会聆听历史的述说。设计构思所要传达的“文化传播及共享性”、“公共空间里人的心灵距离”是更为重要的设计内置。
坚信好的设计应该根植于城市的特质肌底,催生城市的进化更新,为城市文化和生活记忆创造更多的镜头定格与思想衍生,这样的网红结果才具有生命力、设计思考完整的空间网红是结果,而不是起念。这也符合平衡空间设计事务所一贯的平衡设计理念。
项目信息
项目名称:福州朱紫坊游客中心
项目地点:中国 福州 朱紫坊
项目面积:室内426平方 户外180平方
项目甲方:福州古厝保护开发集团有限公司
特别鸣谢:福州市朱紫坊保护开发有限公司
设计机构:BALANCE DESIGN 平衡空间设计
设计主持:董欣猛
设计团队:董欣猛、陈英衍
竣工时间:2021年5月
文案主持:林云平
项目摄影:夏至

BIM建筑网




































