项目概况项目位于秦皇岛阿那亚社区的文创小镇一角。酒店东侧面向黄金海岸线南岸,远离喧嚣,有着绝佳的观海视野。另外三面被5-6层高的欧洲风格住宅建筑群环绕,场地在其间形成六角形的轮廓,有着类似欧洲小镇里城市广场的尺度和空间形态。
设计理念面对这个独特的场地,我们希望借此探索新时代的居住模式。这个出发点源于我们对当代城市和社会的观察。 如今,现代家庭趋于小型化和个体化,以婚姻或血缘关系的传统家庭结构在逐渐瓦解,我们正在走向一个个体的时代。 当每个人在城市中拥有的空间越来越小,人们开始厌倦强调⾃我的⽣活⽅式时,社群的重要性便凸显出来。同时,随着网络和虚拟空间的发展,实体空间的价值从提供特定的使用功能,逐渐转变为满足人的精神诉求。真正有价值的场所是能将生活空间、交流空间和文化空间结合在一起的,有综合体验感的空间。在这样的时代下,建筑需要成为一个平台,给人们提供相互交流的机会,重新找回情感的价值。
传统的酒店设计注重的是房间的私密性和独立性,空间是专属的、静态的。这次,我们希望赋予酒店更多的社区感和体验感,在一种开放的氛围中,让客人在私密空间之外获得更多公共的交流场所,空间是共享的、动态的。
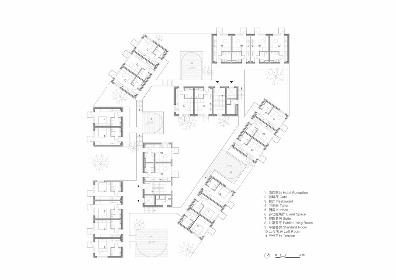
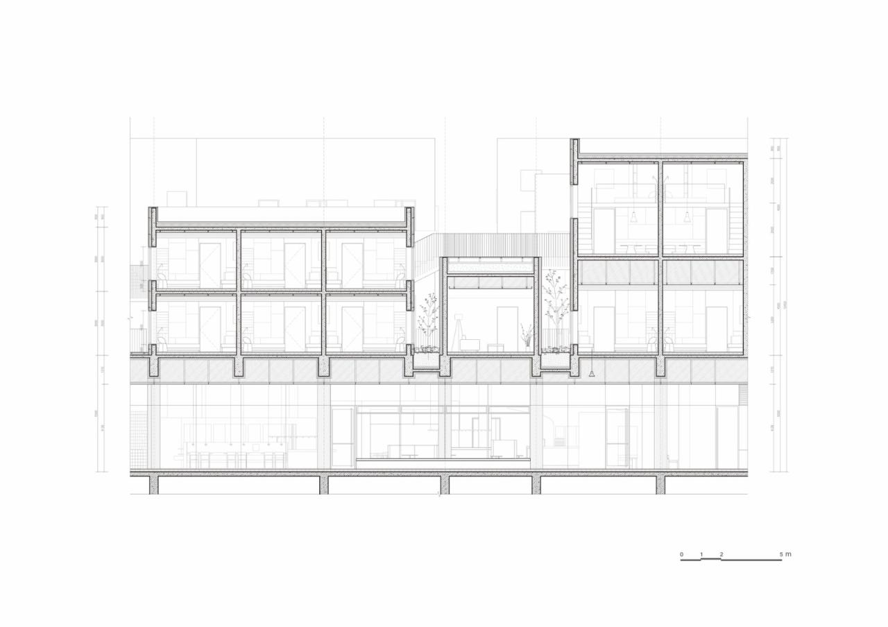
建筑空间我们将建筑设计成一座围合式的小建筑群落。一层整体由通透的玻璃幕墙构成,创造开阔的视野和开放的氛围,主要作为酒店的公共空间。二三层由八栋高矮不一的小楼错落有致的聚合而成,坐落在玻璃幕墙之上的大平台上,主要是客房空间。稍微悬挑的平台轮廓让建筑仿佛一座漂浮在空中的小型社区。建筑外立面使用了三种不同规格的白色压型钢板,让“悬浮”的建筑体量显得更加轻盈。穿插其中的几个原色竹钢的小房子又给整体洁白纯净的建筑带来些许自然温暖的感受。此外,每个房间都有一个属于自己的小阳台,保留和场地周边环境互动的可能性。乱纹铝板饰面的的阳台造型现代而纯粹,给简洁的外立面增添了一丝动感和节奏。
在空间组织方面,我们让几栋小房子脱离了传统居住建筑南低北高的模式,当房子的朝向、高度被打破和重组,不仅每栋客房具有了自己的独特的尺度,他们之间的负空间也自然形成了不同大小、形状,富有趣味的活动空间。各个小楼之间通过室外连廊互相连接,由于每栋楼的高度不一,连廊的行走路线也是上下间不断变化的,下行向平台的时候更接近户外广场的活泼热闹,上行时忽然又视野开阔起来,可以看到不远处的大海。 客人在行走中获得动态空间体验。建筑整体的空间形态打破了私密性的保护,营造出活跃的邻里社区感。 我们认为,这是一种实现现代人的“共享社区”的可能,“家”的空间不应只在房子里面,而是会延伸到更多的地方,展现出各种各样的形态。
室内空间室内设计分为公区和客房两个部分。首层的大堂、咖啡厅及酒吧彼此之间没有硬性分割,而是一个连续的流动空间,同时利用层高及玻璃幕墙的优势,形成一个整体开放通透的公共区域。设计上也尽可能减少装饰性的语言,而是让灵动变化的光影,海边的空气,树木等自然元素成为空间的主角,空间开阔明亮的特质得到了最大程度的发挥,同时也展现出极简的艺术风格 。
客房方面,一层主要是为家庭亲子出游考虑的面积稍大的套房;楼上则是小户型客房,分为26㎡的平层户型和36㎡的loft户型两种形式,在保证基本使用功能的情况下,相对压缩了室内面积,把更多面积留给了户外平台和共享空间。 客房的设计更多的采用木材、质感涂料、洞石等自然材质,呈现内敛朴素的氛围。同时,针对海边潮湿的气候,对木饰面等材质进行了防腐防潮处理,并在客房内设置除湿机,保证客人居住的舒适度,在细节中体现品质。此外,我们在二层平台上景观最佳的位置设置了一间面向大海共享客厅,所有房间的客人都可以来这里休息和交流。
总结
通过唐舍酒店的设计,我们对人与空间尺度进行了新的思考。让建筑除了作为居住空间之外,也能提供一种机遇和可能,让相聚在此的陌生人能够重新寻找和定义人与人之间关系。此次设计也突破了常规酒店的概念,意图探索社区酒店和共享酒店的发展模式。小的客房面积,鼓励客人可以走出自己的房间,花更多的时间去体验客房以外的世界——户外广场,共享客厅,连廊,楼下的咖啡厅…都成为大家共同活动场所,让人们在有限的空间里实现“无限”的生活。
项目图纸
△手绘图
△鸟瞰图
△总平面图
△一层平面图
△二层平面图
△三层平面图
△剖面图
△剖面图
△户型1
△户型2
△户型3
△屋顶流线示意图
项目信息
建筑设计:B.L.U.E. Architecture Studio
面积:3000m²
项目年份:2021
摄影师:加纳永一
建筑设计:⻘⼭周平,藤井洋⼦,刘凌⼦,陈乃纶,乐美卿,史乃馨,何宣瑾
委托方:theTang
照明设计:B.L.U.E. 建筑设计事务所
地点:中国,秦皇岛

BIM建筑网












































