建筑设计不再仅是纯理性的思考
或是纯感性的输出
任何技术的决策和感知的形成
都依据于情理之间
在国家大力发展建筑工业化的产业背景下,快速建造越来越成为市场主流,即一种使用预制系统而设计建造房屋建筑的建造模式,而这种突破常规的建造方式,所谓的工业化建筑是否意味着“粗糙”和“低质”?工业化建筑又应如何表达其自身的建筑诗意?
浙江大学建筑设计研究院紫金院区B1楼(以下简称B1楼)位于杭州紫金众创小镇之中,该小镇由杭州市西湖区人民政府与浙江大学联合共建,作为2019年建设部装配式建筑示范工程,预制率高达85%,装配率96.8%,是国家AAA级装配式建筑兼三星绿色建筑。在设计之初我们提出一个想法:不被技术所裹挟,让技术为设计服务。通过全系统整合、全专业参与的一体化设计方法,来营造富有人文情怀的活动场所,强调“工业化也有诗意”,希望打破一般装配式建筑粗糙、简陋和冰冷的刻板印象。
△浙江大学建筑设计研究院紫金院区
而建筑诗意体现在生活与场地的巧妙融合体验,本质上是对人的关照。对于装配式建筑来说,它是时代的产物,离不开时间、地点和人,会随时代的更新而发生转变,其核心本质不会变更。在建筑工业化追求技术的进步的进程中,技术导向的建筑价值偏向纯理性的精度追求,使得经济、效率不断提升的同时建筑的地域及人文关联也变得松散。当建筑的设计导向无论偏向技术还是人文,都会打破建筑本原有的平衡。社会的发展离不开技术的进步,人类的栖居离不开诗意的生活,因此,建筑师需要对其建筑设计进行表达呈现,将“诗意”转化为人们看得见、读得懂的大众语言。
1.空间秩序营造建筑诗意
B1楼整体形态由三个立方体咬合而成,南北两个立方体为大开间办公功能单元,中间连接体为通高中庭,办公单元部分的外立面墙板采用相同的模块的UPHC外挂墙板实现了一套模板,正反使用,形成两种颜色四种凹凸的基本单元,利用这些基本单元的不同组合,在阳光下形成的呈微弧线的阴影,形成既节奏理性又充满律动的立面表情,在入口水系的倒映下,使整个建筑不再束缚于一个固化的产业园环境之中。
△项目功能爆炸图
△UHPCW外挂墙板
△建筑主入口
△立面细节
通过一条路径,穿越水景前场进入建筑内部,钢结构的结构形式让装配式的建筑空间塑造更加灵活和放松,整体空间由三层通高的交流大堂串联起来。人们或于主厅大台阶上与人沟通交流,或在UAD Cafe小憩,或漫步于侧厅观看定时更新的建筑展览,或驻足于装配式垂直绿化中庭前通过光伏玻璃望向天空,这样一组围绕人的动线展开的室内公共开放空间充满了流动感,空间界面彼此消融。
△室内大台阶公共空间
△一楼侧厅
△UAD Café
△二层垂直绿化中庭
整个大楼仿佛是一个立体园林,再配以竖向交通的多种选择,进入南北两侧的办公空间,使人在空间中的行走充满了乐趣。室内空间以亮白色的整体为主要装修色调,让空间明快敞亮;尽可能少的装饰,将空间留白,形成视觉上的连贯,结构柱、梁、楼板也都是预制的,楼板采用局部叠合楼板,最大限度的减少现浇混凝土体积,主梁采用蜂窝梁,主要设备管线穿梁设置,井然有序,尽可能地保证了室内净高,并且让裸露的吊顶空间也充满了技术的美感。
这是一种把技术与艺术结合起来的新型建造模式,同时也带动一种新的工作模式。
△办公空间
△设备管线穿梁
△装配式结构管线体系展示空间
2.知觉体验触发建筑诗意
时间是空间多样性得以存在的先决条件,建筑中的知觉体验并非散布的,而是对能量的汇聚,在以时间为主线的整体叙事空间的构架基础上,个体空间营造更有具体性,是人体验建筑的直接印象,空间的要素、空间的材料、空间的形态直接影响建筑所要营造的氛围。
B1楼中间高起的立方体是入口中央通高大厅,它不仅是人行流线交汇之处,也是整个建筑形象上的焦点,更是使用者在工作闲暇之余休息的客厅。不仅有对外接待的职能,还将不定期举办相关展览和论坛,是整个空间设计中最重要的部分。
△入口大厅
自然的光线常常被建筑师认为是建筑空间的灵魂,通过“竹林光影”的技术实现的难度也恰恰成为了装配式建筑诗意表达的亮点。先用一张自然界中的竹林照片,在计算机中进行像素化处理形成矢量化的数据,然后通过参数化的方式把竹林肌理转化到建筑的表皮上,通过建造机器人来控制铝板穿孔的不同翻起角度,从而控制室外光线进入效果,达到光影斑驳的竹林空间意向,最终呈现“万竿绿竹影参天”的景象,随着时光变化,又能“竹中窥落日”空间意境丰富而静谧。
△一次成型,二次个性化处理
△穿孔铝板
△竹光共影
3.景观设计深化建筑诗意
B1楼另一个突出特点是建筑与景观的合境表达,共同存在同一个建成环境之中。建筑与景观具有图底的相关性,除了建筑西侧拥有充满仪式感的主入口水系以外,建筑东侧设置了由火山石、PC人造板构筑的休息平台,竹林和花径丰富了园区道路与次入口的空间层次,结合室内的咖啡厅和大堂休息厅,形成室内外休憩空间的互望。
△东侧休息平台
屋顶景观农场为B1楼景观设计的另一个重点,为工作之外提供了另一种生活情趣,整个屋顶农场也为装配式设计,采用轻质有机无土栽培,种植箱由环保塑料制成,能根据土壤温度实现自动化浇灌。这些模块又能拼接成各种形状,满足各种形态的景观需求,屋顶菜园也可分块由员工代管,由员工在工作之余种植喜爱的瓜果蔬菜。
△屋顶景观农场
4.结语
在B1楼项目中,技术、艺术、自然的平衡成为了设计的关键。诗意的建造可以这样定义:建筑设计不再仅是纯理性的思考,或是纯感性的输出,任何技术的决策和感知的形成都依据于情理之间。在理性的建造中,不被技术裹挟,强调“工业化也有诗意”,打破了大众对一般装配式粗糙、简陋和冰冷的刻板印象。
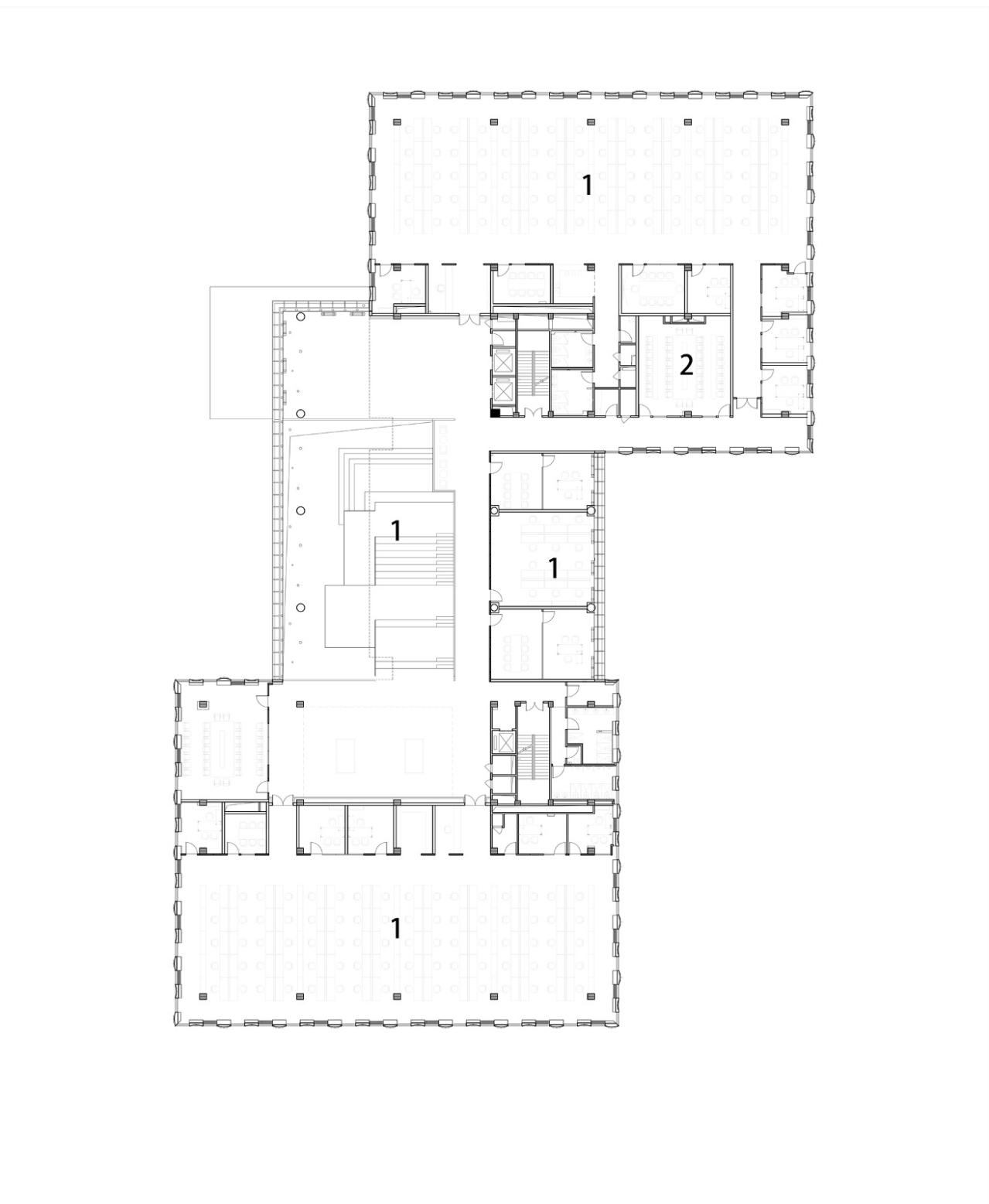
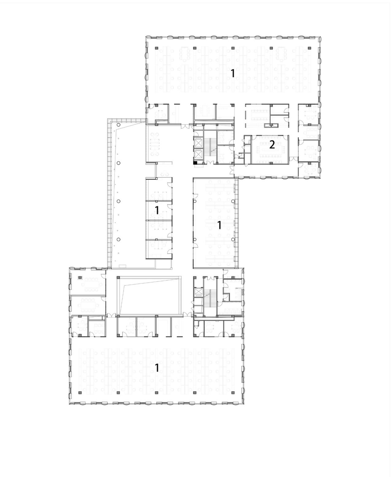
项目图纸
△一层平面图
△二层平面图
△三层平面图
项目信息
项目名称:浙江大学建筑设计研究院紫金院区(紫金准乾科研用房项目B-1楼)
业主单位:浙江大学建筑设计研究院
设计单位:浙江大学建筑设计研究院
项目地址:浙江杭州西园八路
项目类型:办公建筑
结构形式:钢结构
建筑层数:地上三层
项目规模:8888 ㎡
设计总负责人:董丹申、殷农
工程负责人:肖志斌、莫洲瑾
建筑设计:王玉平、雷斌、毛瀚轩
结构设计:肖志斌、金振奋、李少华
给排水设计:王靖华、邵煜然
电气设计:吴旭辉、徐松杰
暖通设计:潘大红、易凯
弱电设计:陈佳、马健
景观设计:孙洞明、楼炫炭
室内设计:楚冉、梅文斌
幕墙设计:香春
工程总承包:周家伟、徐铨彪、陈海俊、房朝君
建设单位:杭州紫金准乾科技发展有限公司
总包单位:浙江省建工集团有限责任公司
分包单位:浙江绿筑集成科技有限公司
设计时间:2016.8.1
建成时间:2020.10.1
项目摄影丨赵强、朱鑫亮、UAD 9+studio
材料及品牌:UHPC外挂墙板、数字化穿孔铝板,单元式玻璃幕墙(品牌:耀皮玻璃)

BIM建筑网































