正在兴建的西塘东区是西塘古镇向东的拓展,包括约十万平米的旅游商业、酒店、游客中心和文化设施,建成后将成为古镇东北的新入口。一号楼位于场地西南角,西、南两侧临河可远眺古镇,东、北两侧面向商业步行街区,并与南面的东区一期隔河相望,地理位置十分显要。
西塘古镇对景区内的新建筑风貌有着严苛的要求,除了建筑限高,坡顶、小青瓦、黑白灰和木色都是设计的前置条件。在东区河滨最核心的地段,策划一座什么功能的建筑?用什么建构形制来满足功能的需要、并在遵守风貌要求的同时建立其地标性?主导整个设计进程的就是对这三重挑战的解答。
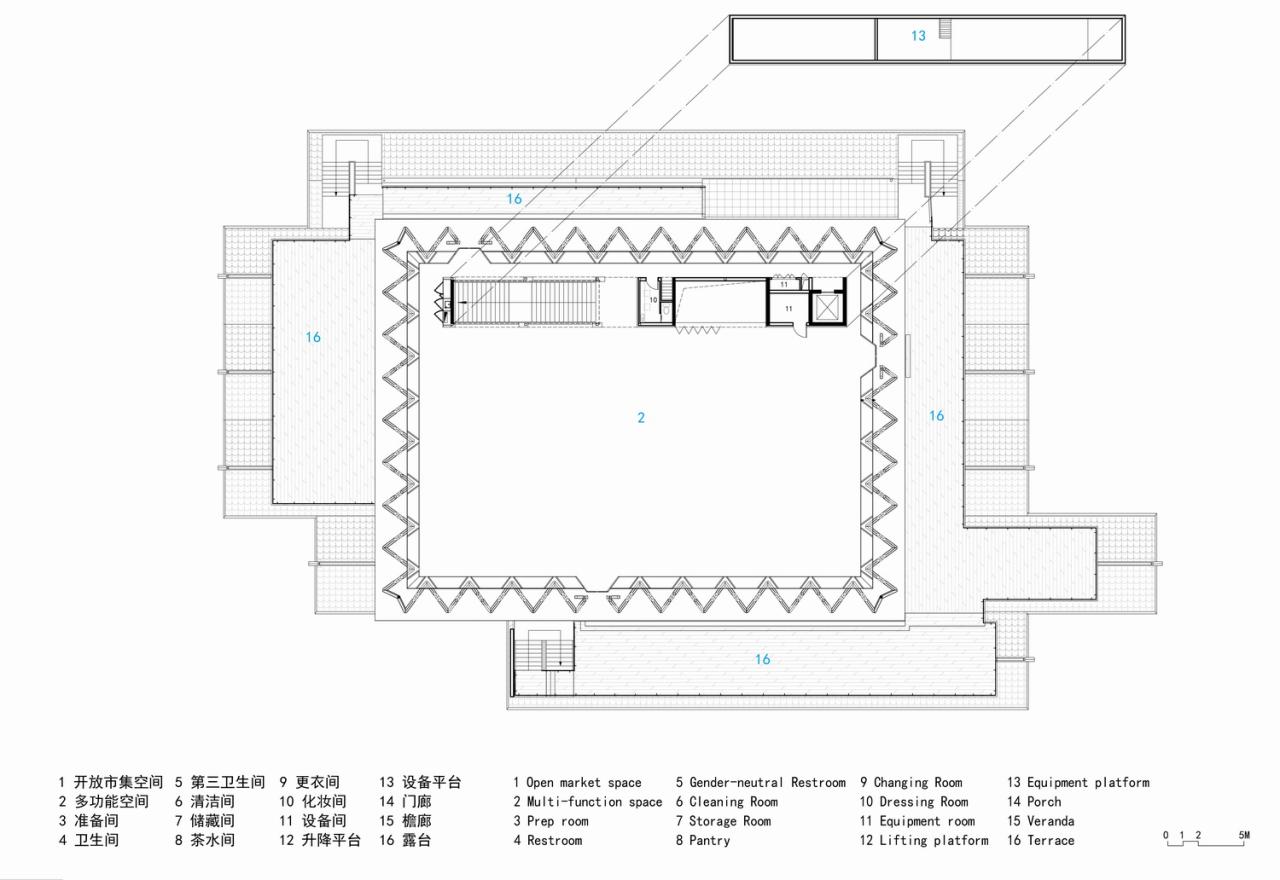
东区步行街的基本肌理是一、二层架构庭院式商业和三层坡屋顶民宿院落的叠合,在这个“底色”上,中央的游客活动中心、东北角的二次元活动馆、以及西北角的良壤精品酒店都是各镇一方的特殊地标。相比之下,西南角的1号楼地块需要吸引人群停留,参加更长时间的目的性活动,从而形成集聚效应,成为整个东区文旅体验的亮点。在充分的研讨后,市集+美术馆的混合功能成为业主和我们的共识:即在首层营造开放流动的市集空间,容纳有机农场集市、文创书店、咖啡、餐厅和酒店前台,在二层营造一个多功能美术馆,兼容展览、论坛和酒会。
我们将功能策划和风貌规定转化为建筑在空间和形象上的需求,成为寻找建构体系的依据。显然,上下层的定位有着明显差异,我们延续了步行街区的上下叠合模式,但在架构和坡顶两种语言的位置上做了反转,以获得协调中的特殊性。
白色山墙支撑的双坡悬山屋顶是江南地区的传统民居形制,将单一屋顶连续复制则可以覆盖更大的面积。我们从连续山墙的几何要素中提取出分叉柱的结构形式,来支撑倒三角桁架梁,形成6.3米宽、约52米长的线性单元。桁架内的空间用来容纳空调和电缆设备,桁架梁下则形成连续起伏的室内空间。6条线性单元并联组成了覆盖首层集市的屋顶,呼应延绵的古镇聚落,自由分布的分叉柱则给集市注入了开放流动的空间属性,为多元化的功能提供了共享和弹性变化的可能。在东西两端,部分分叉柱由内衬斜撑的V形山墙取代,在解决地震力的同时,用反向坡的方式和传统山墙建立了关联。
美术馆坐落在集市之上,如果继续采用坡屋顶和单元聚落的建构语言,我们将轻易取得风貌上的协调,但却很难为1号楼提供必要的标志性和内部的大空间。于是,我们尝试建构一种单一的、相对抽象的形制,来提供一个无柱空间。与传统的连接点也不再局限于建筑的具象形式,而是从更广泛的木构工艺中汲取灵感,以获得更加完整的标志性。最终,我们从西塘的灯笼工艺中提取了交叉互承的构造方式。整个大屋盖长约30米,宽20米,由92根胶合木短梁交叉互承组合成一个微拱的壳面,使大跨结构受力更为合理,并同步解决了屋面的排水找坡。
木屋盖的重量通过环状的水平钢架传递给周圈的木柱。整个环状柱群由胶合木杆立体插接的X形斜柱构成。由于在立面和平面两个向度上都形成了连续支撑,这个柱群在侧向力上具备了强大的能力,不仅承担了屋盖拱梁的水平推力,还为160毫米见方的纤细柱截面提供了条件,甚至为柱群内圈的玻璃幕墙提供了抗侧。在二层,我们将楼梯、电梯、大升降平台和其它设备全部收纳在室内北侧的长条体量中,维护了主体空间的纯净。外凸的落地幕墙采用雾化渐变的半彩釉玻璃,屋顶的菱形天窗下设置了可调节的光膜,使日间的美术馆笼罩在柔和的自然光中,也能在夜晚将温暖的灯光透射出来,以“超级灯笼”的形象成为西塘东区的亮点。
施工过程图
项目图纸
△基地示意图
△一层平面图
△二层平面图
△屋顶平面图
△剖面图
△结构示意图
△细节大样图
项目信息
建筑/室内设计:山水秀建筑事务所
项目名称:市集上的美术馆(西塘东区1号楼)
项目地点:浙江省嘉善县西塘镇贞观路588号
项目功能:商业
建筑面积:2500㎡
建筑高度:12.5m
设计/建成:2018/2021
设计小组:祝晓峰(设计总监)、庄鑫嘉(项目经理)、皮黎明(项目建筑师)、林晓生、王均元
业主:西塘智林文化发展有限公司
结构方案顾问:和作结构建筑研究所/张准、张冲冲
合作设计院:宏正工程设计集团股份有限公司
景观设计:太璞建筑环境咨询(上海)有限公司
木结构施工:苏州昆仑绿建木结构科技股份有限公司
钢结构施工:上海亚泰建设集团有限公司
结构系统:一层:Y形钢柱支撑钢桁架梁,二层:X形胶合木柱支撑菱形胶合木互承梁
主要材料:深灰色铝镁锰立边咬合屋面系统、花旗松胶合木、雾化渐变彩釉玻璃、T型钢幕墙系统、竹木地板、小青瓦、白色蜂窝铝板、木纹铝板、白色弹性涂料、木饰面板、织物纹地砖等
摄影师:梁山

BIM建筑网







































