鼓楼幼儿园是中国幼儿教育研究的发源地,新建的江北分园位于南京市江北新区核心区,总建筑面积约一万平方米,办学规模为5轨15班。目标是建设一所高标准示范性的幼儿园,带动江北新区优质幼教的培育和发展。
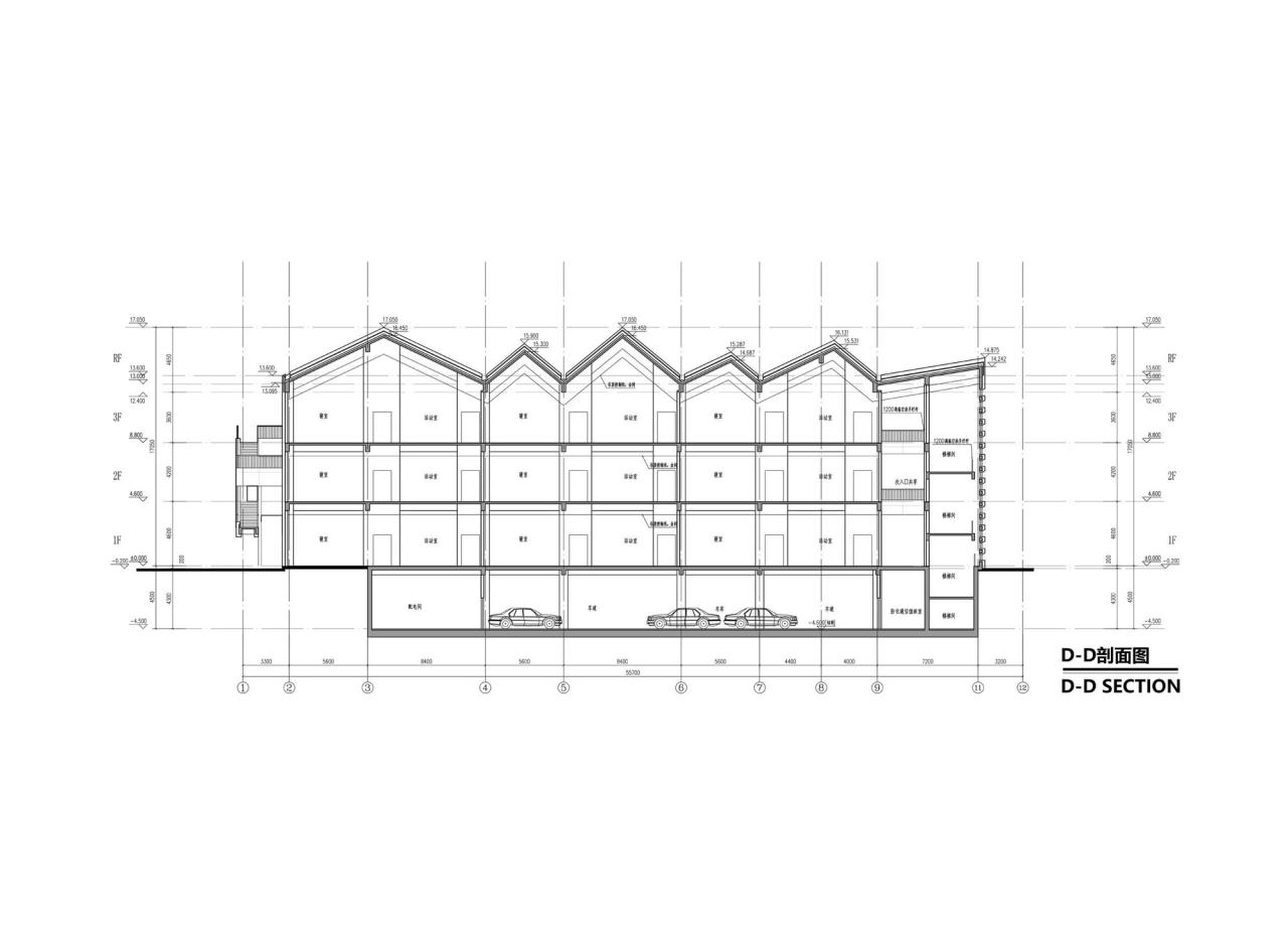
新颖活泼的建筑造型唤起小朋友的认同感建筑造型设计的灵感来源于儿童画,感受小朋友对“房子”的第一印象,将之投射到建筑形态之中。不规则的连续坡屋顶形成有节奏的韵律;大小错落的窗洞营造随意轻松的效果;丰富的色彩唤起小朋友的认同感。外墙材料选用了适合幼儿建筑的环保且耐候性极佳的纤维树脂板。
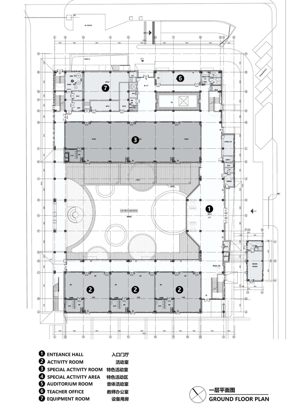
多层次的室内活动空间激发小朋友的探索精神幼儿的大部分时间都在班级活动,所以班级活动单元朝向东南,保证充足的阳光。室内宽敞明亮,采用单廊形式,良好的自然通风采光不仅降低建筑能耗,更重要的是避免疾病滋生传播。
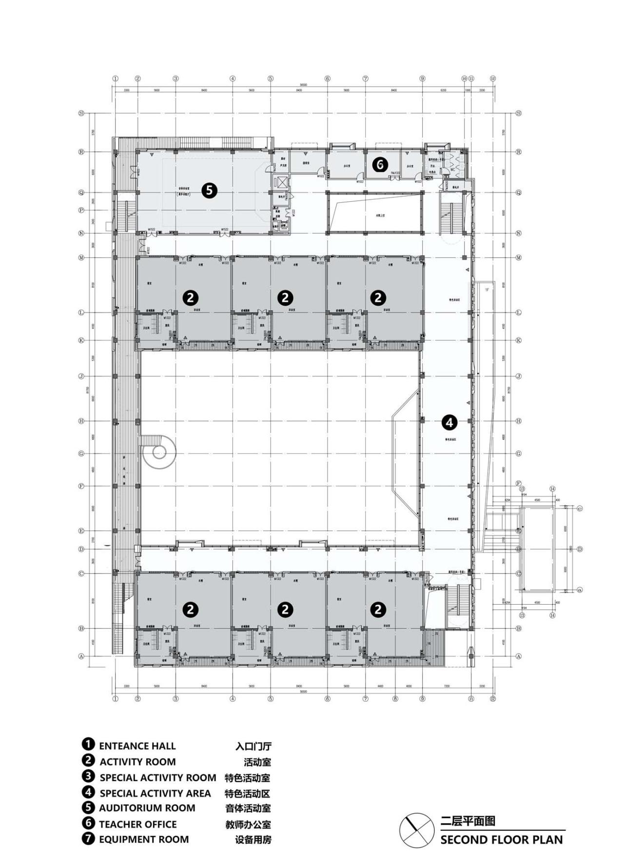
作为知名幼儿教育研究机构,园方为幼儿设立了多种特色活动课程。一楼的特色活动室为一个500平米的大空间,可根据课程设计灵活布置各种主题场景。二楼的音体活动室空间开阔,景观极佳,窗外就是绵延的山景。
建筑沿河一侧的室内廊道作为交通和游戏空间联系了各层班级,立面上丰富有趣的开窗也作为观赏河景的“画框”,给小朋友不同的角度来观察世界。另一侧室外连廊结合滑梯涂鸦墙等户外游戏设施,形成一个立体的游戏区域。
立体化、趣味性的户外空间,让每个角落都成为儿童游戏的场所不同尺度和体量、不同空间性质的多层次的户外活动空间鼓励小朋友在其中漫步、玩耍、游戏,充当着交流的桥梁。
主要室外活动场地设置在南向,充足的阳光和大量绿化有利于幼儿的身心成长。利用两侧连廊围合出内部庭院,场地和院落有围合有开放,尺度大小有别,根据空间环境的不同还相应设置了表演场地、沙池、树屋、草坡、小菜园等各类户外活动装置,创造出多层次、立体化、趣味性的户外空间,努力做到让每个空间都成为儿童游戏的场所。
项目图纸
△轴测图
△轴测图
△总平面图
△一层平面图
△二层平面图
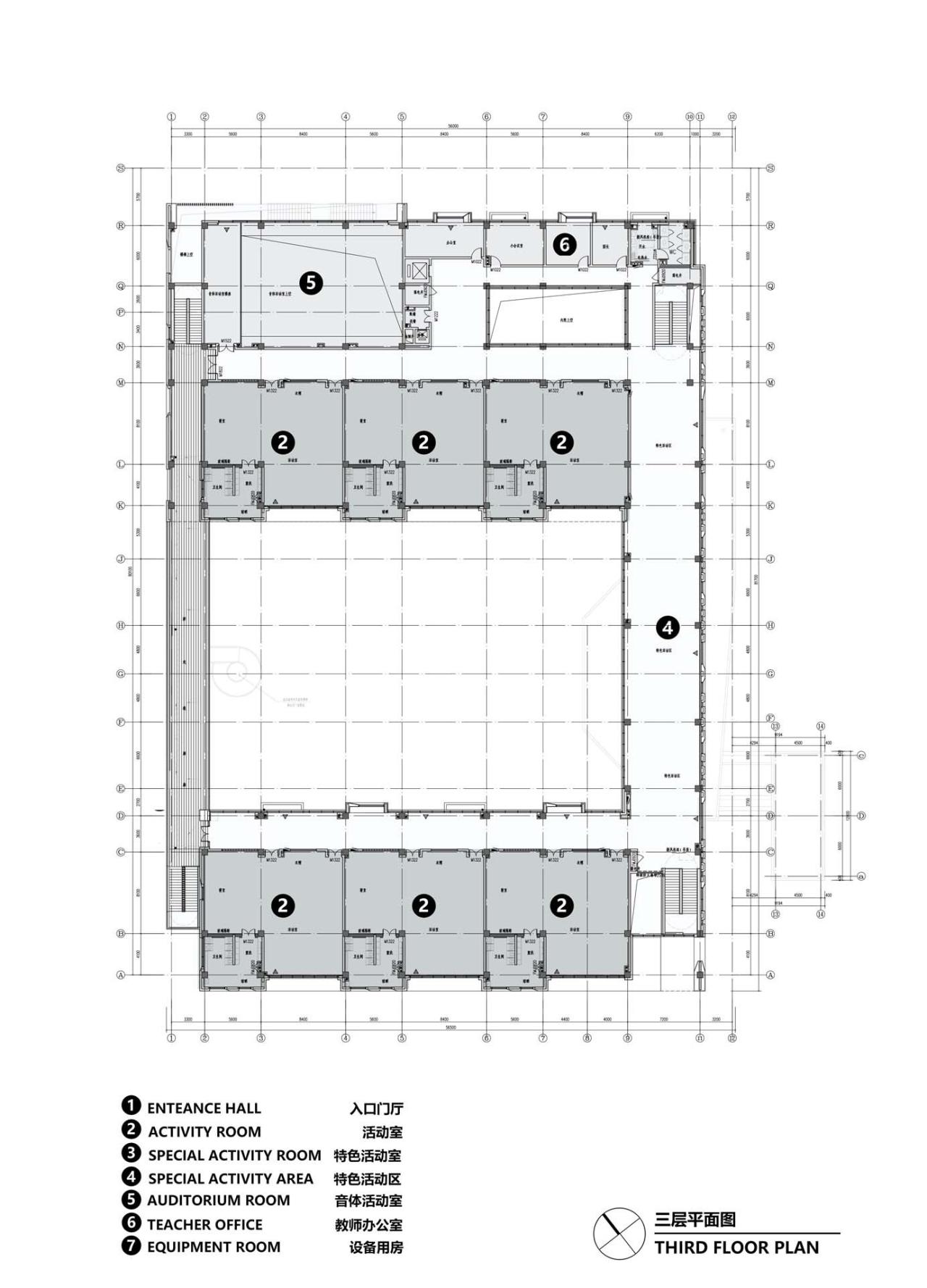
△三层平面图
△屋顶平面图
△立面图
△立面图
△剖面图
△剖面图
△细部大样图
项目信息
建筑设计:东南大学建筑设计研究院
面积:10744m²
项目年份:2019
摄影师:侯博文,Jing Qian
主创建筑师:钱晶,王宇,孙霄奕
设计团队:钱晶,王宇,孙霄奕,刘洁莹,周泉,张咏秋,袁俊,罗汉新,王金飞,柏晨,钱长远,张程
结构设计:王志明,曹荣,蒋朝文
景观设计:唐小简,孙嬿
委托方:南京国际健康城投资发展有限公司, 南京市鼓楼幼儿园
施工方:中建八局三公司
地点:中国,南京

BIM建筑网






































