ASWA 事务所设计了一个新的办公综合体,建筑曲线与景观曲线相交,创造了外部和内部空间之间的流动性。新的丰田汽车泰国营销中心位于曼谷东侧的高速公路沿边,旨在将人与自然从工作空间连接到绿色庭院,迎接自然光和绿化景观,让每个人在工作时间放松身心。
该综合体是一座占地 36,600 平方米的混合用途商业办公大楼。该场地位于丰田试驾区,旨在通过将景观设计到建筑和室内空间的方式来连接人、自然和汽车。该项目可分为“社区”、“会议”和“办公室”三个部分,将行车轨道的概念应用于建筑的布局和景观。
考虑到现有场地,作为丰田汽车的试驾区,驾驶轨道的概念被选择应用到建筑的布局和景观中,从建筑弧形的边缘可以看出,每个角落都是赛道的转折点。同样,绿化景观将放置在重叠式平面规划中的每个灰空间中。
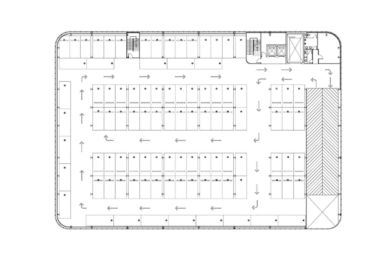
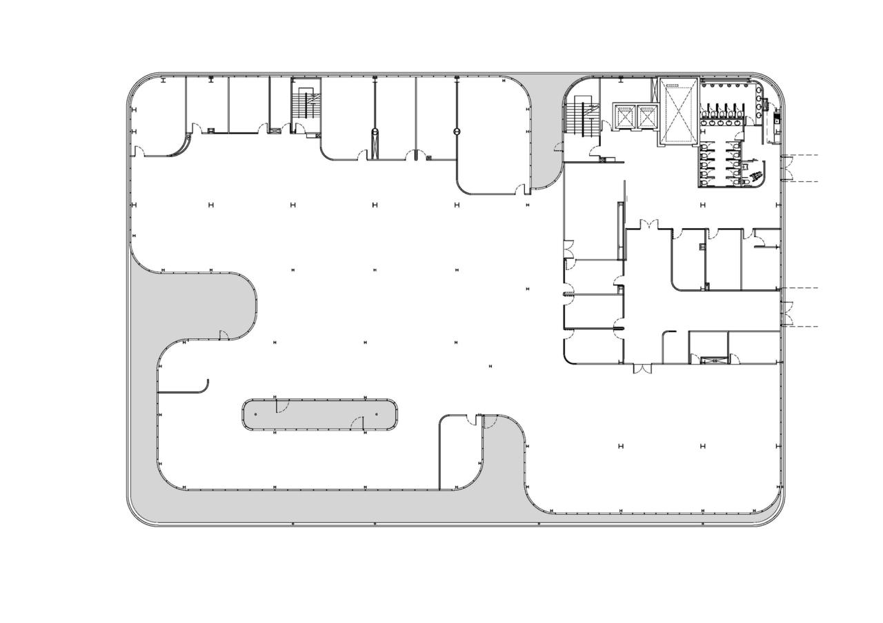
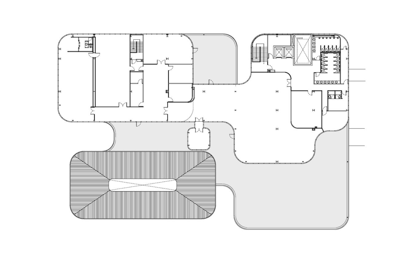
四层的办公楼是该综合体的主楼,面积近 9,900 平方米,第一、二层为室内停车场,其带有弧形转角的矩形平面图与多孔铝外立面,使空间的光线和空气流通。同时,第三、四层采用重叠式跑道形平面,有一个连续的玻璃幕墙。三楼的主办公区有不同天花板高度的体块和一个中央开放式庭院,为整个空间提供自然光和绿色景观。
放置在四楼更大的户外活动空间欢迎人们来欣赏大自然。该综合体预计在 2022 年竣工。这里将有一个展厅、零售店、餐厅、常规区域、联合办公区、办公室、试驾区和新总部,以连接每个人加入这个新社区。
项目图纸
△ 一层平面图
△ 二层平面图
△ 三层平面图
△四层平面图
△ 五层平面图
△立面图
△立面图
△立面图
△ 立面图
△剖面图
项目信息
建筑设计:ASWA
面积:9900m²
项目年份:2021
摄影师:Phuttipan Aswakool
厂家:ALPOLIC,Q-Con,S-ONE,SYS
主创建筑师:Phuttipan Aswakool, Chotiros Techamongklapiwat
设计团队:Pohntanate Boonphaeng, Tharittipan Trakulhae, Prassapol Sanguanwattanaraksa, Thanakrit Navanugraha, Nattamon Tepwacharakarun

BIM建筑网







































