邛崃,隶属于成都市,巴蜀四大古城之一,在2300多年的发展中,城址未变、文化相传、生生不息。近年来,邛崃市采取片区开发模式,以文脉巷复兴项目为示范,大力实施城市更新工程,同时为了将临邛古城的文韵古脉传递出去,吸取外来的艺术文化,带给邛崃人民对艺术更高的追求。我们有幸在临邛古城文脉片区内建造邛崃市的第一座美术馆,邛崃美术馆。因独特的屋面造型,“重峦院”成了我们给邛崃美术馆起的“昵称”,“重山无踪迹,飞来一片悠”。通过重峦悠远让建筑“被看见”,在走近建筑时能感到年代的悠然,走进空间后得到内心的沉浸与闲适,进而感受到文化的脉络以及艺术的熏染。
我们从当地的居民聚落形态中抽象出两坡式屋面,运用重叠和连接关系,同时利用周边的“山体”进行对称折叠,使各个屋面直接重叠、连接在一起,形成了“重峦”的屋顶造型,与居民肌理保持一致。因为建筑体量小,所以屋面之间体量相当,没有任何一个屋顶处于绝对支配的地位,使建筑更加整体简洁。
我们继续以“街巷肌理的延续、建筑风貌的重建、繁庶临邛的情景再现”为路径进行设计。首先,以传统的围合院落作为建筑原型,将建筑体块抬高,得到一层的架空空间,扩大院落,来解决场地狭小,难有舒适的庭院尺度的问题。之后,引入传统民居木板门的立面形式,形成可开闭的界面,作为街道公共性和庭院私密性的过渡,丰富空间层次。最后将组合成的”重峦屋顶“覆上,希望营造一种城市山居的艺术文化氛围。
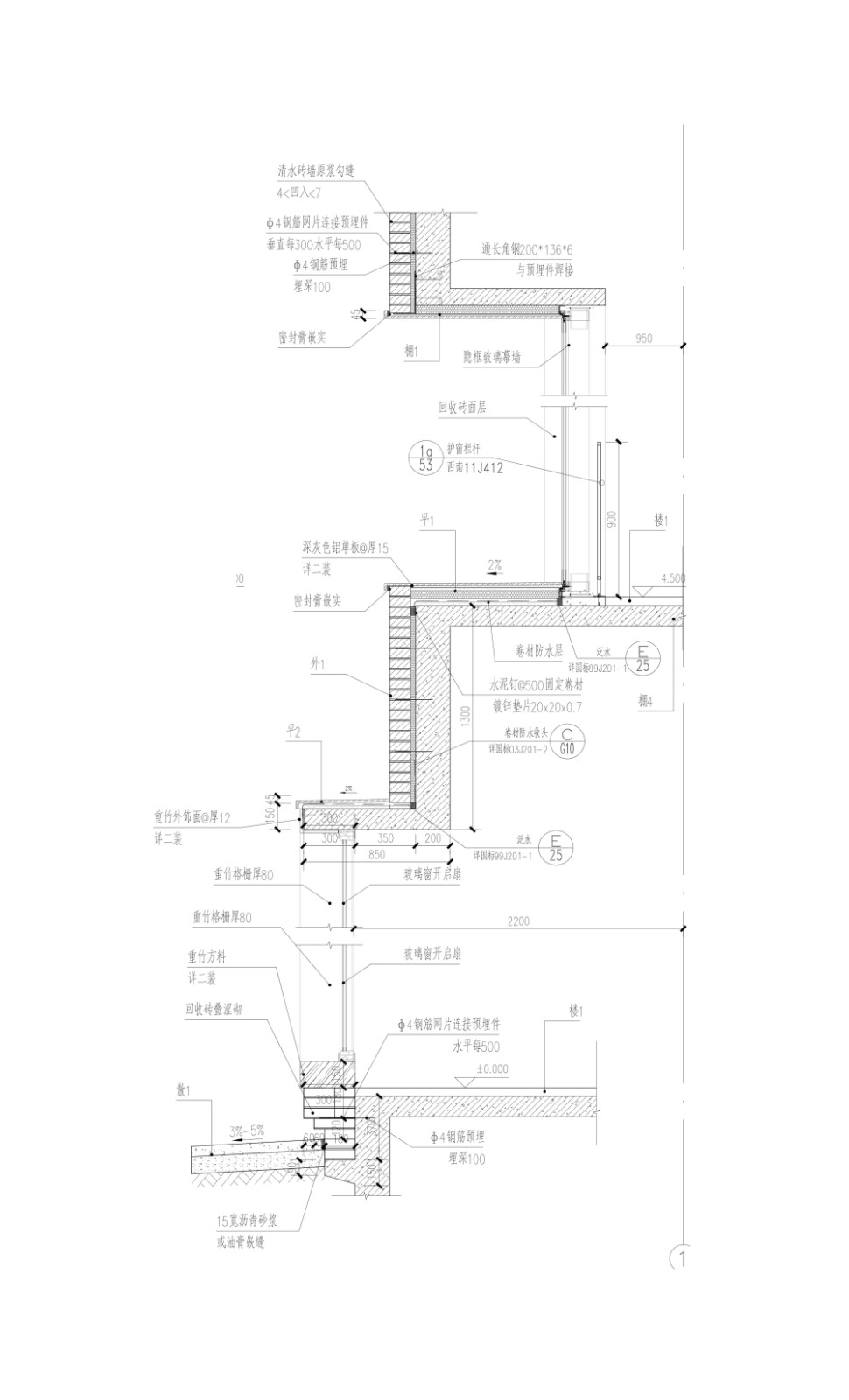
然而,建造的技术是限定的,为保持建筑形态所要传递的完整性,外立面采用双层墙结构,屋面采用折梁形式,实现了墙体的厚重感和屋顶的层叠起伏,同时致敬传统古建结构美学。
外立面以现代材料搭配传统元素,形成新旧对比,希望产生一种时光交叠的体现。首层采用可开启的重竹比拟民居木板门,呼应自然,过滤照向室内的光线,温暖空间。二层建筑外墙杂砌回收的青砖,延续传统元素;同时,三面玻璃幕墙朝向巷道与东西广场,结合凹入的水刷石墙面,聚焦视线;北面与周边建筑距离较近,设置了混凝土花窗格,点缀立面形态。屋面以小青瓦覆盖“重峦“,形成层叠起伏的屋面。青砖肌理,重竹格栅,小青瓦覆顶共同延续古城的人文古韵。
内部空间上,以庭院为核心,组织功能单元。一层靠内侧为后勤辅助用房,其他临界部分及二楼均可作为美术馆展示空间,给予艺术充足的发散空间。室内团队以“山形水意”作为整体设计概念,与建筑方案相呼应,内外空间在一定程度上形成统一。同时,室内运用较多的现代材料,历史的文明与文化的印记在空间中交流,产生新的化学反应。
邛崃美术馆的建成,在邛崃植入了新的城市功能,作为历史记忆的载体和艺术文化传播的空间。我们希望文脉坊能在某种程度上继承发展传统街巷的空间之美,同时在未来能引导和承载当地人们更美好的生活,如此方不枉拆除这一大片老城区内的历史文化街区,吸收外界精神营养,激发内在文化底蕴,慢慢沉淀出自己古今交融的文化。
项目图纸
△总平面图
△一层平面图
△二层平面图
△剖面图
△概念生成图
△空间交融
△细部大样图
项目信息
建筑设计:REL ARCHITECTS
面积:776 m²
项目年份:2021
摄影师:存在建筑
厂家:Xuancheng Hongyu Bamboo Industry Co., LTD
结构设计:陈兵
委托方:成都市文脉旅游发展有限公司
室内设计:琰启(北京)室内建筑设计有限公司
景观设计:成都传承景观规划设计有限公司
施工方:中国十九冶集团有限公司(建筑施工) / 四川新邛建设有限公司(内装施工)
地点:中国,成都

BIM建筑网





























