成都超算中心位于成都市天府新区鹿溪智谷核心区,紧邻兴隆湖和鹿溪河生态区,新区良好的生态环境资源和高新企业总部集群展现出未来公园城市的雏形。进入新的世纪,科技逐渐成为城市发展的核心驱动力量,成都超级计算中心是排名世界前十位的超级计算器,项目的建成对于增强大数据算力和智慧产业发展具有重要作用——这座城市将拥有最强的超级大脑。
科技的新图腾 — 硅立方传统计算中心的数据机房为精密区域,不对外开放,对公众而言保持着神秘。我们选择将超算机房作为科学城最重要的展品进行呈现——模块化机房共有5个楼层,大小为20米x20米x20米,我们称之为“硅立方”。立方外墙用幻彩铝复合板包裹,再放入一个拉索幕墙围合的巨大玻璃柜体中,人们可以沿玻璃回廊围绕参观,体验排名世界前十的超级计算机的震撼尺度,巨大纯洁的深蓝色墙面仿佛进入科幻影片的场景。
对城市开放的穿越路径与封闭的科研园区不同,超算中心被构想为一个向城市开放的场所,一个科技的图腾纪念地。结合场地自南向北逐渐降低的地形,利用高差实现了开放与封闭管理的双重目标:在场地空间的上部,市民通过盘旋而下的空中天桥穿越整个场地,形成参观流线,场地的下部是封闭管理的园区,内外动线立体分流,互不干扰。
环形天桥连接北侧湖滨公园与南侧的城市道路。透过建筑体量的洞口,人们可以看到“硅立方”与湖岸的风景。结合场地高差,“硅立方”的场地平台下设置科技展厅,对市民和学生开放。下沉广场、圆形水池、环形步道等系列空间提供了科学城区域难得的街边休憩场所。
幕墙设计与灯光秀的结合
“硅立方”外的巨大玻璃盒体采用了大跨度单索结构幕墙系统,保证了外观的通透性。硅立方极具辨识度的体量展示前沿科技信息,打造科技城的图腾与地标。
后侧动力楼与运维楼采用双层幕墙,外层覆面为正方形网格的铝板幕墙。像素化的铝板单元通过洞口的虚实变化,代表计算机语言中的“0”与“1”的二元逻辑,巨大的银白色转角体量形成“字节跳动”的空间边界。
在夜晚,光是信息的媒介。结合幕墙单元设计的灯光秀系统,与电脑编程联动上演精彩的光影表演。硅立方成为巨大的显影屏幕,宛如湖畔神秘璀璨的“科技之芯”,成为科学城最亮眼的地标,传递科技的乐观与热情,塑造面向未来的新图腾。
项目图纸
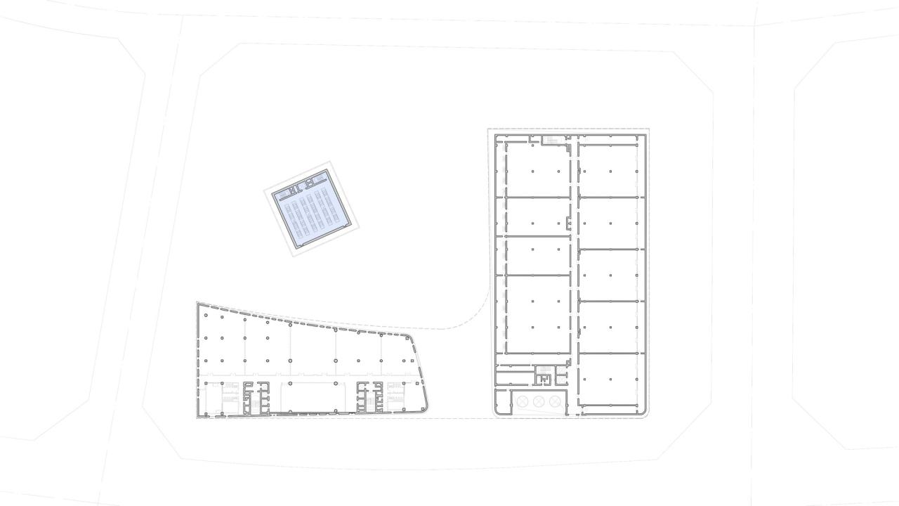
△总平面图
△二层平面图
△区位平面图
△立面图
△立面图
△立面图
△立面图
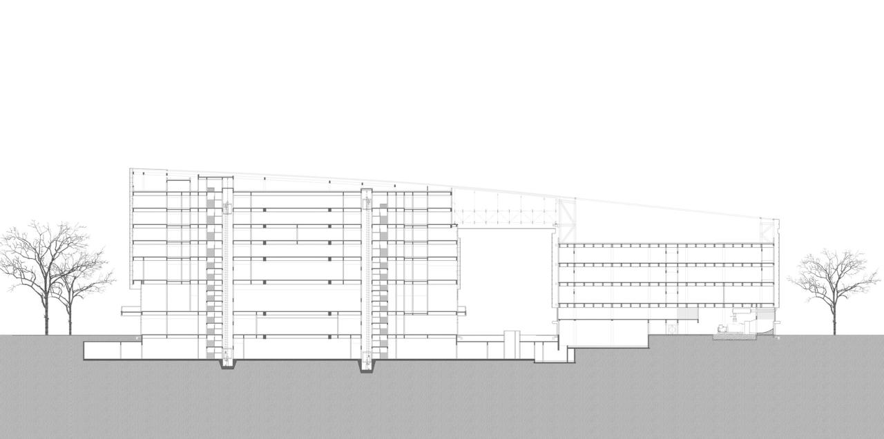
△剖面图
△剖面图
△功能布局分析图
△分流示意图
项目信息
建筑设计:中国建筑西南设计研究院
面积:60420m²
项目年份:2020
摄影师:存在建筑
厂家:Alucobond
主创建筑师:刘艺、陈成发
设计团队:李中全、蒲践川、虞舜超、周劲炜、金升、刘佳、王勇、韩绍伟、张国昊、唐浩文、钟世洪、聂琨、蔡红林、何青松、王世博、郑彦杰、赵峰等
委托方:成都天府新区投资集团有限公司
施工方:中国水利水电第七工程局有限公司
景观设计:成都黑白之间景观规划设计有限公司
光学设计:永麒光影数字科技有限公司
地点:中国,成都

BIM建筑网
































