蓝润大厦因为没有地下停车库,所以院子几乎全被车位和车道占满,周边也没有和大楼毗邻的公共配套,大楼成为一个孤岛。所幸大楼屋顶是个无敌景观的露台,北望清华,西眺三山五园,如果把这个屋顶改造为适合年轻人娱乐业态的空间,这个物业肯定非常吸引人。于是,我们找到了改造的思路:如何通过内部和外部的改造把人引导到屋顶,并把这种内在的运动通过外表表达出来。由于有这个内在的逻辑,外部变化也有了依据。这个突破了仅仅是“立面改造”的思路得到了业主的认同,但在区领导那里还有更高的要求,希望在有活力的前提下,还要和清华的学府气息结合起来。
最终的方案是一个对上述思考的简约回应:建筑外立面采用了有清华“红区”特色的砖幕墙体系,用硬朗的线条在立面上表达出上下空间之间的对接:入口门厅挖出一个浅的四层高吹拔,形成倒梯阶行向上向天攀爬的空间;屋顶花园在外立面上下沉两层,形成自上而下向地拥抱的空间,并撕开外立面一个倒三角的豁口。这样的构图通过内外的连贯性突破了只是立面改造的格局,激活了内部空间。
这个逻辑的改动在建筑的方案图纸上费了一番周折,好不容易使得功能、流线、出租分割、防火等等的问题得到解决,但在结构设计上又遇到了巨大的挑战。首先是因为破了楼板,这样就要求结构要按新规范重新计算,而结构规范已经比现有建筑跨越了两代,即使不做任何更改,也要有大量的结构加固。这种不合理性是旧改中最令人头疼的,这也难怪在这个方案上折腰的先烈们只是做了立面的涂脂抹粉。其次是对最经济的加固方法的研究,因为如果加固所有的结构,不仅仅造价不允许,现场的条件更不允许。因此,结构工程师经过大量的比较方案,最终选择了对若干结构柱进行了加固的平衡刚度方法。当然,更大的挑战是锯掉柱子。使用方提出要做一个国际会议厅,但必须放在一层方便外来人员进出的位置,这意味着要有结构切割大手术,需要在首层用梁抬柱方式打造一个两层通高空间。这个设计在现场施工中极为壮观,首先对报告厅顶部十字梁和与其连接的柱子进行加固,待受力稳定后,再对其下方的立柱,楼板与梁进行拆除作业。所以虽然需要改造的是二层楼板,但因为要加固三层的柱子,三层的楼板也要先被拆除。这些在建筑方案中不曾想到的细节如果过早地被告知的话,或许我们也不会这么做了。所以许多机会都成就于无知者无畏。
在前面十余版方案都难以通过的情形下,URBANUS都市实践在受邀参与项目设计时,就意识到要认真总结下前人失利的原因。原因很简单:之前的方案只是在做立面改造。这种只是在开窗方式上的涂脂抹粉,显然领导直觉上就很不认同;但设计师只言片语地去领会领导对材料和形式的具体意见,又更不得要领。如此恶性循环,越改越郁闷,而且大楼的闲置期越来越长,如果不及时改造好,甲方的一个目标客户也很难被稳住。着急的甲方催促我们尽快拿出一个新的立面,让区领导首肯,有了方向以后再做里面的平面调整。显然,只是立面改造,既不是我们的方法,更不是我们的长项。
伴随着旧改的常规问题我们也没少遭遇,比如上位规划问题。例如,大楼西侧有条十几年前在大拆大盖时代规划的道路,再过几十年后也不会再建,但原建筑的外轮廓已非常靠近那个规划要扩建马路的用地红线之退线,而我们的外墙要做幕墙系统,外结构又要加固放大。如和满足这种子虚乌有的上位条件,无疑要付出很多内卷化的心思。再如场地有很多管线邻近小区的过路管线,使得在施工中放弃了大开挖的方式,而是使用局部定点开挖的方式,对地下结构部分进行加固。这些施工方式也成了建筑设计的有机部分。
当然,迎接旧改本身的技术挑战也带来了设计和施工中无数的成就感。为了在北立面形成一个倒锥形的挑空中庭,我们拆除掉了北侧一根原有结构柱,并逐层拆除二三四层局部楼板与梁,并对四层顶部过梁进行了加固处理。然而三层楼板出挑过大又一度使方案无解,最终想出用从上层新增出一根悬吊柱来解决此问题。再如,屋顶下沉花园处有两片较大的砖幕墙伸出于建筑主体范围之外,有倾覆或扭曲的危险,也有变形的可能,而我们又不想在后面有较深的拉接,最后几经方案修改,用刚度较强的钢桁架体系来解决。这些挑战都曾经使方案变得山穷水尽。
最有戏剧化的经验是砖幕墙。我们在天津的砖供应商在疫情隔离期过后,不幸倒闭,这意味着一套技术检测程序要从新开始。虽然这个设计看起来不起眼,但高度上超出了一般使用砖幕墙的案例,施工方法要有实验室认证。好在业主在宜兴找到了更合适的供应商,砖的材料质量也更好。砖的拼花方式现在也常见,而每一种拼花又和其砌筑方法和孔洞有关,在电脑里一块块砖的搭接推敲必不可免。但这还不是最伤脑筋的,更隐性地折磨建筑师的是砌筑过程中如何见招拆招地解决问题,例如当空洞暴露时如何填补以防水,再如工地存货不足时如何平衡各种铺砌用量,等等。
这一切技术上的努力都是为了达到一个让空间变成生产力,使青年才俊们在一个人性化的另类空间中发挥才智。屋顶作为一个充电花园,统一用砖来铺砌,与大楼立面浑然一体,以打造一个脱俗的户外空间。置身在这个环境里看清华门前的一片入驻了高科技企业的楼宇,与在地面嘈杂的车流人流中完全不同,的确能感觉到在国际间激烈的技术竞赛中,伴随着我们的企业技术成长的建筑空间环境越来越好,越来越有国际范儿。这种物质环境的迭代,是我们有国际竞争力自信的基础之一。时代变了,蓝润大厦现在改名为成府路150号了。
项目图纸
△总平面图
△一层平面图
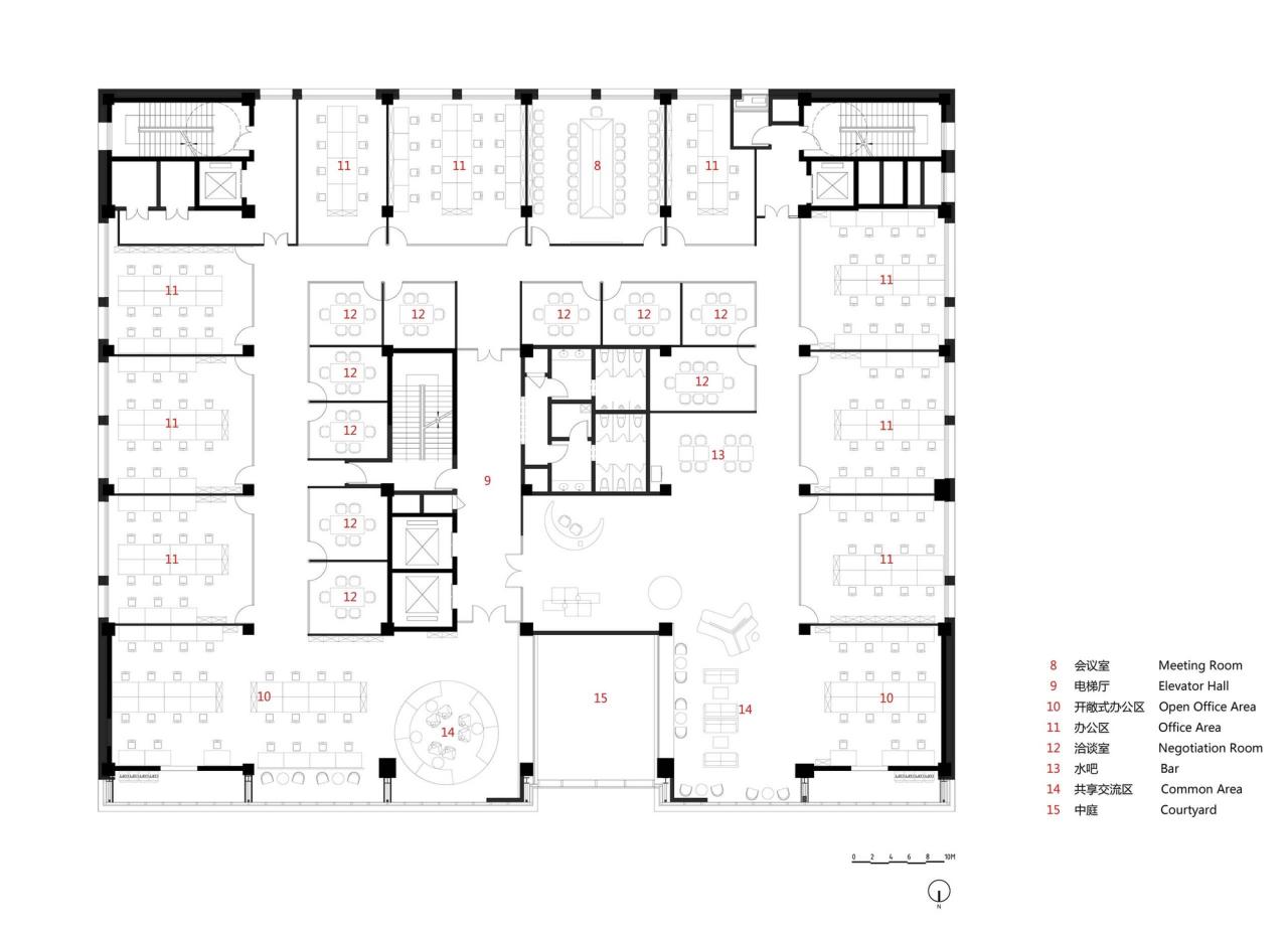
△四层平面图
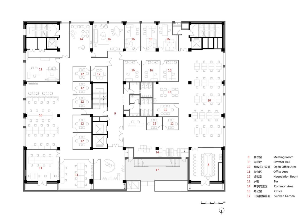
△五层平面图
△屋顶平面图
△剖面示意图
△模型图
△模型图
△墙身结构图
△墙身结构图
项目信息
建筑设计:URBANUS 都市实践
面积:10448m²
项目年份:2021
摄影师:UK Studio
主持建筑师:王辉
设计团队:王宇瞳、张富军 | 姚咏梅(技术总监)| 柴秉江、李琳、赵子瑜、张黎(建筑)| 王坤、李刚、高子絮(景观)| 徐莉莉、江中雨、汪蕾(室内设计)
施工图设计:上海联创建筑设计有限公司, 刘旭、张小龙、毛艳(建筑)俞永志 (结构)田坤、张丽超、史煜红、王猛(机电)
室内设计:安东红坊建筑设计咨询(北京)有限公司, 蒋小雨、ROMER、卢勇
照明设计:北京远瞻照明设计有限公司, 徐冰、刘仙玉、刘勇
结构顾问:荷捷建筑顾问(北京)有限公司
标识设计单位:北京吴勇设计事务所
地点:中国,北京

BIM建筑网



































