溪滨南路是缙云古城历史风貌的重要组成部分,不但是缙云进一步开展城市风貌样板区创建的先导区域,还是缙云实施“千年古城复兴计划”的开篇之作。长期以来,该区域一直存在密度过高、环境陈旧、设施匮乏、老龄化严重等一系列“渐老”的症状(图1),以及拆迁经费紧张、安置政策困难和原住民回迁意愿高等诸多棘手问题。设计团队历时三年,数异其稿,在城乡历史地段开展了保护历史文化记忆、改善生态人居环境、完善公共服务配套和优化城镇基本功能四项举措以延续充满集体记忆的老城烟火气,其本质是以更为温和、渐进及精准的方式改善城市脉络乃至整体的运行质量。
△溪滨南路及电影院改造前的景象
一、风貌延续
设计团队在第一次现场调研中就意识到缙云自唐以来历经千年形成的历史格局极具地域特怔和文化价值。古城四周群山环抱,中有好溪穿过,两岸以多种形式的桥梁相连而成为一个有机的整体(图2)。众多的历史建筑以相互交错、年代交叠的方式散布于古城之内,特别是自十字街向外呈现蔓延生长的独特体验不仅反映出缙云城市发展的轨迹,也集中展示了缙云人民不同时期的生活面貌。
△缙云石城的整体山水环境
我们特别注重延续自好溪北岸的核心商业区十字街通过龙津桥连接南岸的五云桥亭和水南街的古城空间格局,以及由好溪两岸的山体共同构成的整体山水环境(图3)。在局部区域通过拆除违章建筑和修葺山水景观,以期进一步疏通并强化既有的视线通廊。
△缙云古城历史格局的延续策略
从图底关系上来看,好溪两岸的街巷肌理保持地相对完整,显示出渐进式生长的历史年轮,饱含着缙云人的集体记忆,需要被谨慎地予以保留。建筑师针对水南片区几处拆迁难度过大的民房及时调整了设计策略,通过最少干预的协调方式与周边建筑相和谐,最终用另外一种方式更为完整地延续了街巷肌理的边界寿命(图4)。
△水南片区实施最小干预后的街巷肌理对比
除老电影院和五云桥亭进行了必要的拆改,溪滨南路沿线留存了较多风貌尚可的石砌老建筑均通过建筑加固、立面修缮、管线梳理和泛光照明等诸多措施在延续历史风貌的基础上突显这些镌刻在石头建筑上的岁月沧桑。
△整饬后沿街老建筑延续的石城风貌
缙云老城浓郁的生活气息一直深深地打动着建筑师内心的柔软之处,因此我们保留了溪滨南路沿线诸多富有烟火气的生活场景(图6):曾经是青年人聚会、恋爱必去的龙津桥以一种抽象廊桥的方式被悬挂上节日的彩色灯笼,飘散着缙云烧饼浓浓香味的五云桥亭在更新后依然炊烟袅袅,路边的各色店铺和摊头也没有因为改造而停止播放极具80年代特色的录音机打折叫卖声……
△整饬后延续的生活场景
二、机能提升
溪滨南路的单行线交通模式直接导致居民出行不便,故设计团队建议恢复好溪两岸原有的机动车双向通行模式,在保留道路两侧多年行道树的基础上,因地制宜地利用路边及街巷内的闲置空间增设临时停车位和永久停车场以满足居民迫切的泊车需求。考虑到好溪两岸独特的的景观资源,以悬挑的方式在驳岸边设置单侧连续的步行绿道,为居民早晚的户外锻炼提供理想的基本条件(图7)。
△拓宽提升后的溪滨南路
该区域的居民中有较多的中老人和小孩,为了满足步行基本的连续性和安全性,故道路断面的所有板块采用相同的标高以兼具一定的灵活性。这也为国庆开街时举办文化集市等类似的庆典活动提供了高度灵活的通用可能。
建筑师利用建筑之间的缝隙和违章建筑拆除后的空地规划了五处口袋公园,并植入公共设施、活动设施,以期从根本上缓解水南片区配套匮乏、设施陈旧的尴尬现状。目前,老电影院街角的电影公园(图8)已经竣工,对丰富该区域民众的业余生活起到了极大的推动作用。该广场通过地坪的局部下沉、休闲座椅的设置和高大乔木的点缀赋予其恰当的日常性:盛夏之夜,清风徐来。街角广场,露天电影。大树之下,耄耋对弈。浅池之侧,垂髫嬉水。石壁之前,靡靡之音。方寸之地,翩翩之姿。石城故事,喜乐良多。浅斟低吟,人生几何?
△改造后充满活力的电影公园
三、针灸激活
针灸是中医的一种传统诊疗方法,通过刺激局部的穴位而激发整条经络、乃至身体机能的活力。将这种理念在城市有机更新中加以利用往往具有触媒效应:通过小体量公共服务功能的植入,遵循最小干预的原则,提升城市的服务质量、文化品味和公共属性(图9)。
△建筑针灸策略示意图
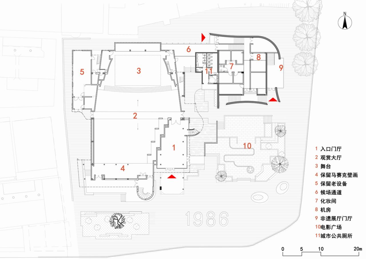
建筑师利用溪滨南路沿线三处闲置(或局部闲置)的公共建筑植入生活配套功能:老电影院改造为服务老城的活态非遗展示中心,并兼具旅游接待、文化研讨及城市公厕的多种功能;结合中医院本身具有的康养功能将临路一侧底层局部改造为老年人日间照料中心;配开放县图书馆的一层临街区域为全体市民共享的城市书房(图10)。这些公共设施在经历了微改造并植入套功能后实现了灵活共享和全时开放,为带动片区基于长远发展的自我更新奠定了基础。
△在闲置的公共建筑内植入生活配套功能
值得一提的是由已故同济大学建筑系葛如亮教授设计的缙云电影院本身就是一座著名的优秀历史建筑。它的修缮、改造和再生经历了漫长、曲折而慎重的设计与施工过程,但我们始终坚持认为老电影院具有新乡土风情的三色条石外立面、放映厅内的不对称楼座和主体建筑东侧原有的水景花园是构成该建筑独特性的三大要素,需要在本次改造中予以不同方式地保留。
△缙云电影院新旧更替示意图
设计团队首先发现电影院单一放映厅的运营模式有违时下多个小厅循环放映的商业运营模式,加之缙云本地的传统婺剧演出极为活跃,故而提出对保留的老电影院主体进行内外修缮,以“修旧如初,补新以新”的方式作为活态展示非物质文化遗产的场所(图12)。
△修旧如初的缙云电影院
考虑到缙云电影院周边密度极高、几无留白的现状,建筑师认为用一个位于街角的城市开放空间取代原有的票房是极其必要的。因为与其将整个缙云电影院作为一座纪念碑进行原样复建和静态展示,不如创造一处适应当代生活、围绕地方文化、栖居民众心灵的城市广场来得更有价值。但我们终究对未能完整保留缙云电影院的历史格局而深感遗憾,我们在票房原址将原建筑轮廓复现于广场铺装,并结合石砌矮墙、绿化植被和保留水景打造一处具有遗址场景感的纪念性城市广场(图13)。
△具有遗址感的电影广场
结合观演大厅原地坪是一个微倾斜面而非常规阶梯的现状,建筑师大胆提出取消一层的固定座位,仅在有演出时根据需要摆放临时座椅的建议。这一方面是受到乡村戏剧观看模式简易化的启发,另一方面期望兼具容纳多种活动的灵活性。整个放映厅在大量非演出时段对市民开放,特别是雨季和冬季可以为他们茶余饭后的休闲和广场舞提供一处有顶的城市广场。让我们感到欣慰的是,在试运营期间这座焕发新生的老建筑已经在本年度黄帝祭典期间成功举办了第四届黄帝文化学术研讨会和若干场颇具缙云特色的婺剧表演。
四、创作感悟
烟火气一词最早见于《一日禅知》中的“红尘世俗,好日子,从烟火中熏出来。”今天我们常常将它与风雅、士绅等精英文化概念相对,意为世俗百姓的日常生活痕迹。留住烟火气在城市更新范畴中可以理解为将日常生活的场景植入或再现于历史环境之中,是激发空间活力,活化场所精神,展现城市魅力不可或缺的重要措施。恰当的烟火气是日常生活的具体表现,即使在现代都市语境中依然可以让环境具有浓浓的人情味,建筑师未必需要加入地方材料、传统样式等获得地域性的“传统作料”,依然可以将地方味道精心熬制得有滋有味。我们应以平视传统的姿态,努力创造新旧场景的对话,审慎维续日常的烟火气,探寻让过往生活中有价值的部分在现代时空中再现生机的方法。
项目图纸
改造前
△一层平面图
△二层平面图
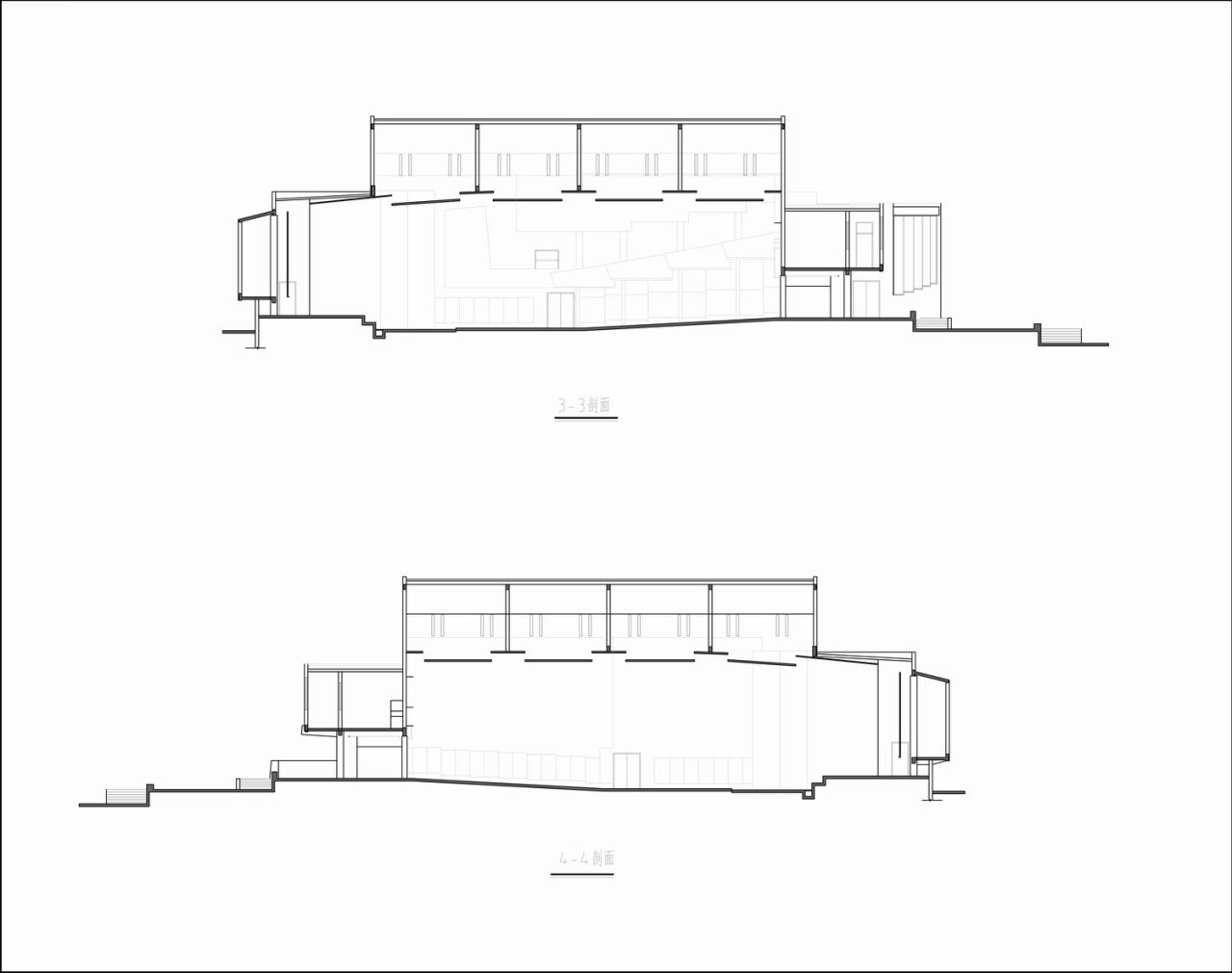
△剖面图
△剖面图
△剖面图
改造后
△一层平面图
△二层平面图
△立面图
△立面图
△墙身大样
项目信息
项目名称:缙云溪滨南路有机更新及历史建筑保护工程
方案设计:I Studio言吾建筑(浙建科院·许悦工作室)
项目完成年份:2021年
项目地址:丽水市缙云县溪滨南路
建筑面积:32000平方米
主要建筑材料:凝灰岩、混凝土
设计主持:许 悦、于鑫苗
设计成员:汪坤玮、王 鹏、季宇雁、陈 晨、屈吕庭
深化设计:浙江省建筑设计研究院,中国联合工程有限公司
建筑摄影:林 松、许 悦
活动照片:丽水文旅、缙云建设、缙云播报

BIM建筑网










































