试想象,在一个传统的木构房屋中嵌入了一个无止境的楼梯,一个由踏板组成的、无限延伸的环。为了增加神秘感,这个楼梯并没有目的地,它就是目的地本身。建筑的外墙由书架和可以俯瞰庭院的窗户组成的矩阵组成。坪坦书屋不应被定义为一个传统的儿童图书馆,而是一个可以让孩子们一边读书一边玩耍的地方。这也是中国乡村图书馆的新范式。
近年来,侗族村庄一直面临着一个严峻的问题:美丽的木构建筑遗产迅速地被外来材料 — 混凝土所冲击。过去几个世纪,侗族人一直用当地的杉木建造村庄,如今,这种可持续材料在侗寨的地位正在降低。当代生活方式和中国农村对现代城镇化的追求正在挑战侗族的传统文化基因。坪坦中心小学就是一个典型的例子。这所学校设立于1951年,而现在坪坦中心小学的混凝土校舍建造于20年前。围绕着操场是教学楼、教师宿舍、学生宿舍、行政楼和食堂。坪坦中心小学现有300多名6-13岁的学生。
借此,Condition_Lab看到了一个可以保留侗族木构基因的建构机会,希望可以重新唤起侗族人民对他们自己文化遗产的兴趣。活态遗产的形式,可以让孩子们和侗族村寨重新产生链接,鼓励他们通过直接参与的方式欣赏这些宝贵的文化。这个项目是Condition_Lab在坪坦河流域建造的第二个图书馆,而它的姐姐 — 高步书屋位于坪坦河上游十公里外的高步村。这两个方案的概念相似,也非常简单:在侗族传统的干栏结构的基础上,用现代建筑设计的方法重新诠释楼梯、墙壁、窗户和地板等元素。
Condition_Lab团队与当地木匠及中大建筑学院的学生密切合作。“在地”、”缓慢”和”聆听”是我们工作模式的关键。通过多年来的实际建构,我们获得了村民和校长的信任,也找到了项目的赞助者— 坪坦书屋全部的建造资金由陈张敏聪夫人慈善基金捐赠。
坪坦书屋,从建筑结构到墙、楼梯、地板的每一个元素都完全由木材建造,我们在当代建筑中很难再找到这样的例子。唯一采用的外来材料是用于立面采光的阳光板。整个建筑完全按照传统侗族木构技艺建造。
坪坦书屋的价值在于两点。第一,与坪坦小学的孩子有直接的联系。除了让他们能在书屋里学习玩耍,我们希望他们能意识到在这个瞬息万变的世界里,存在于他们文化当中的爱与希望是多么重要。第二与建筑学科有关。当代建筑为了满足开发商的需求,几乎失去了它们的灵魂,尤其是像在香港这样的大都市。我们希望坪坦书屋能让人们意识到建筑的社会性也同等重要,社会影响力并不一定跟巨额资金挂钩,设计也不仅存在于高端项目之中,而建筑本身就必定有它存在的意义。
项目图纸
△总平面图
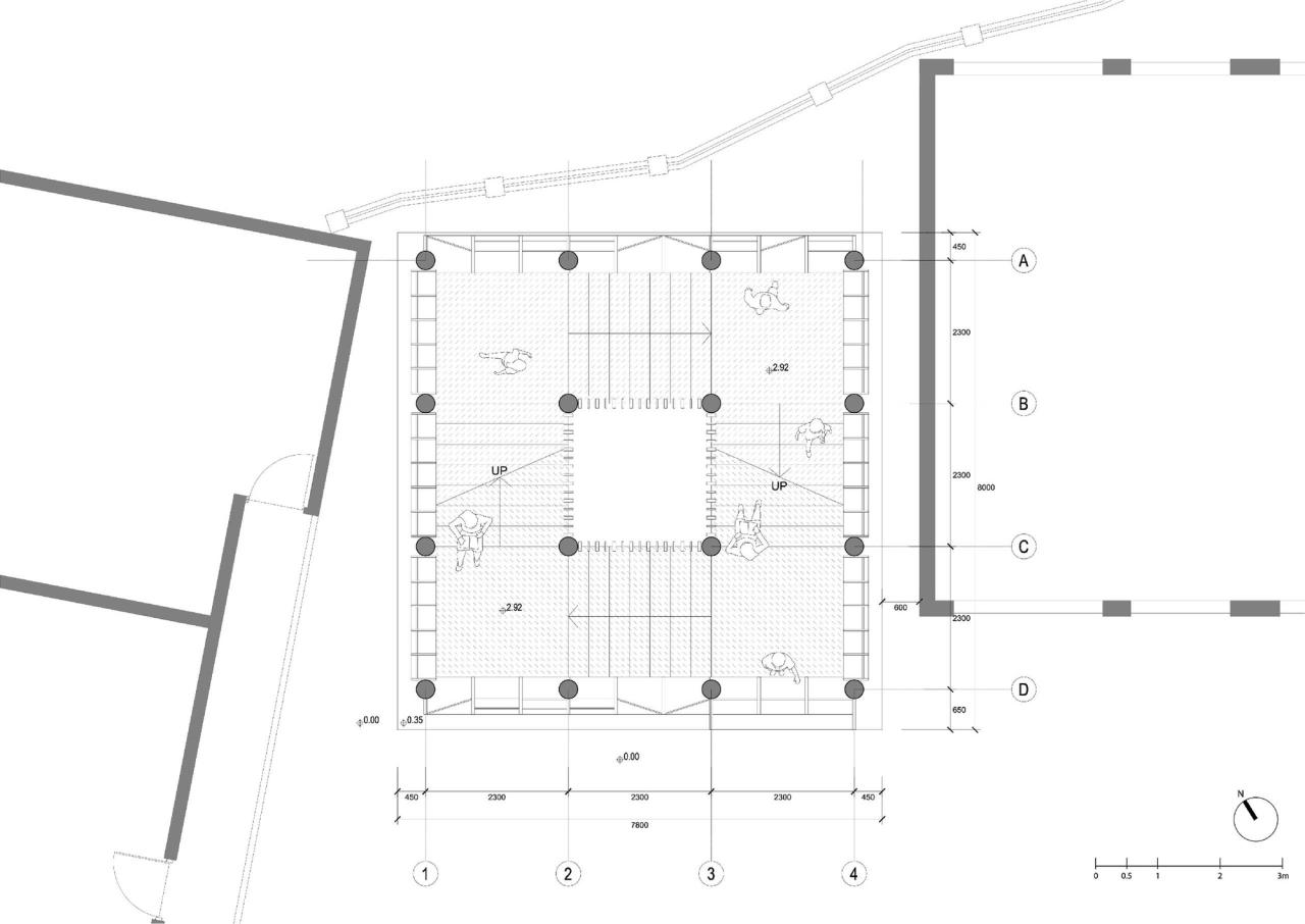
△平面图
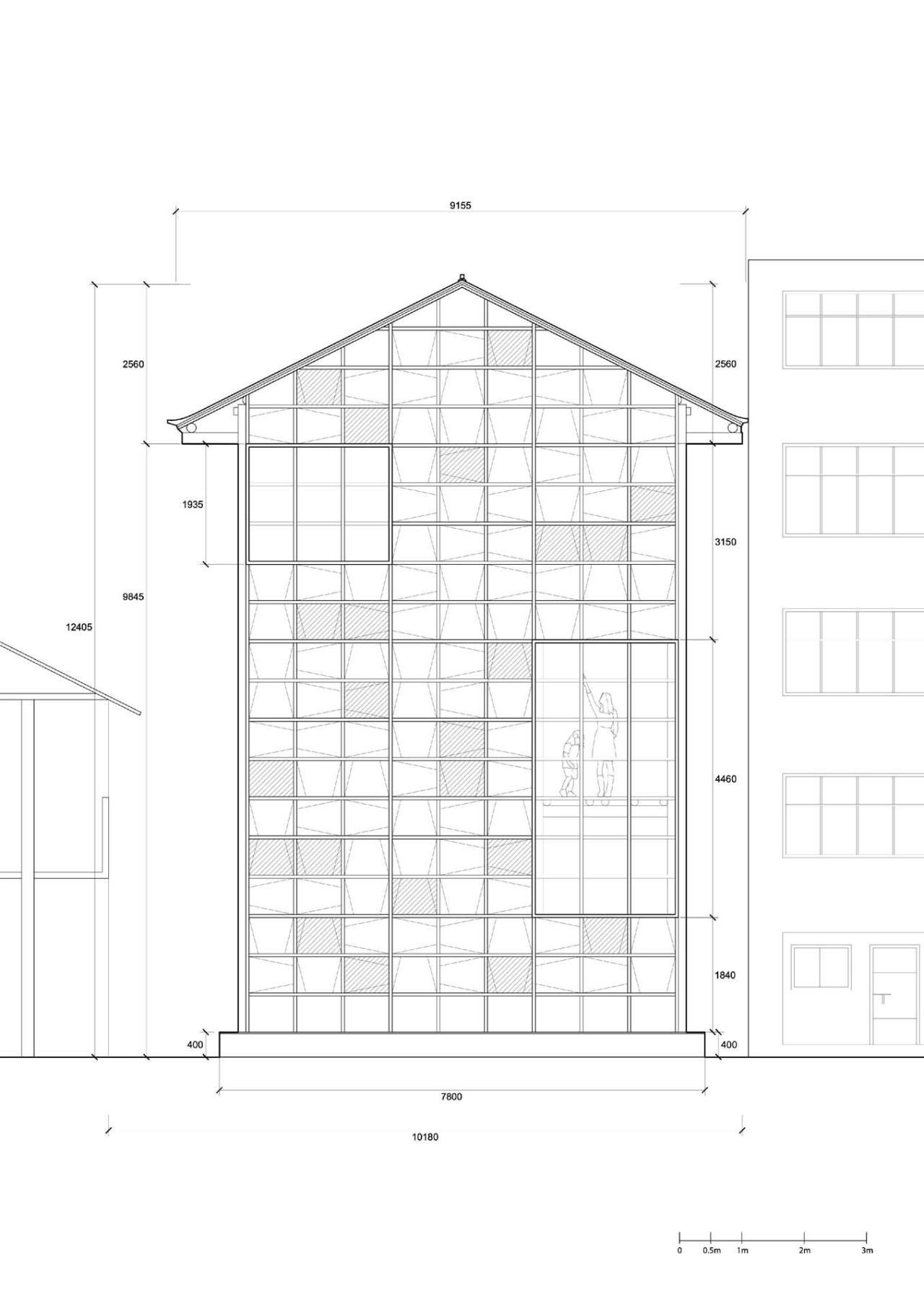
△立面图
△剖面图
项目信息
建筑设计:Condition_Lab & UAL Studio
面积:180m²
项目年份:2021
摄影师:Sai Zhao,Xiaotie Chen
厂家:佛山市铝佰建材科技有限公司
主创建筑师:Peter W. Ferretto
设计团队:蔡凌、林敏欣、刘紫薇、王淯仟
地点:中国,坪坦

BIM建筑网























