合肥京东方医院以简约、高科技、疗愈花园设计,注重患者体验为设计理念,致力于为合肥创建出一所世界一流的智能化医院。合肥京东方医院从屋顶到地面的多处花园设计,以可持续场地连接了室内和室外空间,自然舒适的空间氛围兼顾了患者、家属和医护人员的体验。应用循证设计,建筑师将空间功能和组织流线进行适当的融合与隔离,团队致力于为病人及访客营造出高品质的安全有效的医疗环境,同时也为医护人员提供一个优良的工作环境。
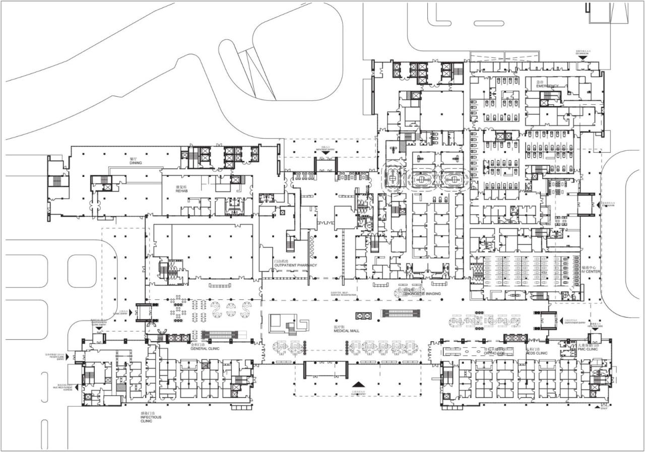
门诊楼未来将会面临整个医院最大的人流量。因此,医院主入口位于两栋门诊大楼之间,直达医院内部公共街区-医疗街。 医疗街作为分流病人、家属及医护人员的空间枢纽,引导大量人流进入门诊楼的东西翼, 连接从地下室到地面层的竖向交通, 提供医院所需的商业功能,并且连接门诊楼到医院北侧的医技楼。
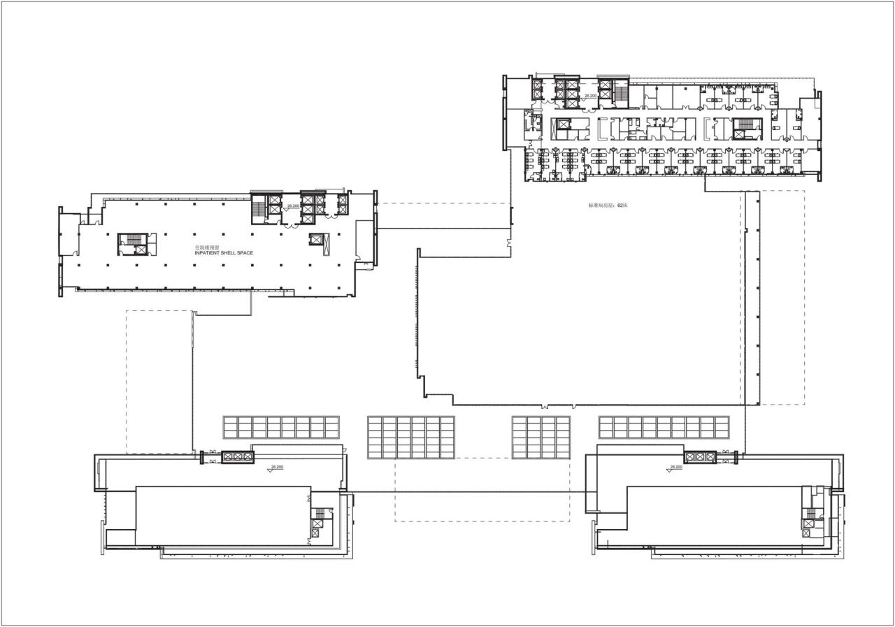
医院的主要功能如急诊部、放射科和手术部均位于医技楼内。住院楼位于医技楼上部以加强彼此之间的联系。位于地块北面的住院楼将北面的湖景尽收眼底,而位于住院楼南侧的屋顶花园也为南向病房提供令人赏心悦目的屋顶绿化景观。住院楼出入口位于两栋住院楼之间,易于识别,方便病人到达任何一栋楼内。
建筑整体与立面造型以简洁干净,高科技感强烈的线条为主。地面层和较低楼层的墙面以天然石材为主,无论从色彩还是材质都给整个建筑带来温暖的感受。 大面积玻璃作为主要立面设计元素,为建筑带来了充足的自然采光,并将花园景观渗透进建筑内。大型金属板用于雨篷和墙面支架以保护和强化此处的玻璃墙面,为建筑带来轻盈和高科技感的细部设计。保护墙面玻璃的遮阳设施,不仅在白天抵挡了进入室内的强烈阳光,又可与LED夜景照明整体设计相结合,成为点缀与美化立面的美学构件。
项目图纸
△总平面图
△总平面图
△一层平面图
△标准层平面图
△功能图
项目信息
建筑师:HKS
面积:193400m²
项目年份:2019
摄影师:BLACKSTATION
结构设计:北京电子工程设计院
合作方:Dignity Health
委托方:京东方科技集团
主创建筑师:Alex Wang
设计团队:Norio Tsuchiya,叶庆亚,许豪哲,余伟琪,宋海珍

BIM建筑网




































