01 一砖一瓦堆叠之居所
▲入口©本态建筑
▲一层室内空间©本态建筑
项目前身是珠江边旧城区里的民居,虽是平凡至极的旧砖屋,但改造初衷并非破旧立新,而是赋予旧屋新的可能。于是,颇具年代感的外墙被保留下来,朴素的材料质感在建筑空间中延伸,与简洁的混凝土框架融合。
▲一层室内空间©本态建筑
原有的双坡瓦屋面拆除后,新增了采光天窗。通高空间既能使建筑各层在不同时节沐浴自然光,也便于吹拔效应加强竖向空间的对流,从而形成层次丰富的空间体验。
▲一层室内空间©本态建筑
▲原状建筑©本态建筑
▲改造后©本态建筑
而在去年的同一时间里,这个小建筑还只是一间老旧昏暗的出租屋,已经风化的旧红砖墙,生锈的门窗,简陋的雨棚,处处体现出年久失修的破败景象。
02 弱化创作者的观点输出,关注自然与空间体验
让体验者在建筑空间中能够更多地关注自身与自然的关系,是一个「设计宣言」。城市中的小尺度民居,也许是对高层住宅的一个挑战:更小的居所,更低矮的居住环境,更有归属感的土地与天空景色,或许能带来更为舒适的生活体验。
▲二层室内空间©本态建筑
▲屋顶阳台©本态建筑
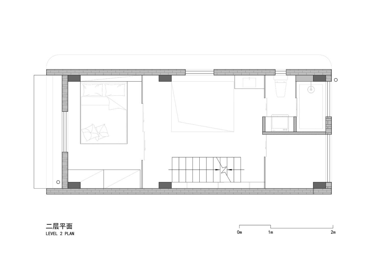
「一叠居」内部的结构框架与楼板均采用了钢筋混凝土搭建,但在上下楼的连通方面,设计了较为简洁的钢楼梯,搭配实木台阶,实现了更为通透的空间感。二层空间包含了一间卧室、一间书房以及卫浴间,为了保证一层的自然采光,将二层楼板对应采光窗预留中空后,用一整张防护网铺满,使之成为了一个放松的休憩空间。
▲厨房操作台©本态建筑
▲洗手台、壁龛、浴缸©本态建筑
厨房操作台、洗手台、浴缸,以及卫浴中的壁龛,都在施工过程中用钢筋混凝土进行现场搭模与浇筑。虽然在一些家居部件上舍弃了工业化品牌的追求,但这些用水泥制作的部件像是从原有的墙上长出来一般,使用起来有着家居成品无法媲美的亲和力。
03 一与叠,简单与复杂
为了让体验者在建筑空间中与自然建立感知,从而引发对于自我的关注,「一叠居」改造从几个方面进行了尝试。首先,经过精心的改造过程,砖房与周围的居住环境保持了密切的关系,从而弱化了“新建筑”的感觉。其次,建筑包含了模糊功能和边界的多功能空间,这些空间可以随着时间“持续生长”,以适应不同需求。最后,建筑将室外、室内环境、以及生活方式整合在一起,形成了一种具有亲和力的空间体验。
一砖一瓦是最简单的建造材料,叠是单一材料的无数次重复。现存人类文明中那些最为复杂的建筑奇迹,都是自然界里最为简单的材料构筑而成的。
但是,建筑的建成并不意味着建筑创作的完结,我们在建筑中产生互动,在空间中感知与自然的联系,并在其中一点一滴的生活,都会随着时间,慢慢形成我们专属的故事与回忆。在这个过程中,建筑成为了一种持续性的动态创作,建筑成为了一种生活方式。
项目图纸
项目信息
项目名称:一叠居
项目类型:建筑/室内
项目地址:中国广州
设计单位:本态建筑
事务所网站:buntai.fun
主创建筑师:孔令岩
设计团队:梁华勇、薛德瑞
项目年份:2021
项目面积:80m²
材料:钢筋混凝土、红砖、微水泥
项目摄影:本态建筑

BIM建筑网





























