五棵松冰上运动中心是2022年北京冬奥会的冰球训练馆,项目紧邻长安街,位于北京五棵松文化体育中心的东南角,与西侧的篮球广场围绕着五棵松篮球馆形成左右对称布局。
功能分布于地下两层和地上两层,地下两层为冰场及1900个固定座椅观众区,为奥运赛时的训练热身场地,休闲观赛区围绕冰场布置,相关配套功能空间可以为观众提供更为多样的观赛方式;地上两层为体育文化配套空间及910座剧场空间。五棵松冰上中心已获得中国绿色建筑三星设计标识,并按超低能耗标准设计和建造,是目前全国最大的超低能耗体育场馆。
象征与情感由于是冬奥会城市赛区少有的新建场馆之一,同时以其特殊的城市区位,五棵松冰上运动中心将承担起传递冬奥会的纪念与象征意义的使命。冬奥会期间,它将作为冰球比赛的训练、热身场地,奥运会后,冰上运动中心作为北京最重要的冰雪主题体育建筑之一,更需要建筑能够激发出这座城市市民参与冰雪运动的能量。因此,我们认为,设计应当借由象征的力量与冰雪世界建立起关联性,凝聚起冰雪运动的情感意义与能量。
五棵松冰上运动中心如同一片片飘落的“冰菱花”聚合而成的冰雪纹理形象。设计力图将这种具象的形象符号与抽象的建筑结构在感知上相互交织透叠,在“一个谜的不透明的透明性”中,唤起象征意义,点燃人们对冬奥会、对冰雪运动的热情与期盼。
象征性策略建筑四周均采用格栅幕墙体系,斜向格栅呈 45°交叉,形成类似冰裂纹的视觉效果。格栅幕墙的空间效果具有层次感,格栅的小尺度能消解建筑的巨大体量,使其更加轻盈而含蓄。介于幕墙与建筑主体之间的“冬奥长廊”成为有仪式感和纪念性的序空间,阳光透过镂空的冰菱花格栅在地面和建筑主体立面上描绘了一幅实虚相映、光影交织的画面,集中呈现冰菱花符号带来的的空间魅力。
斜向交叉的巨型桁架结构体系与立面格栅45°斜向交叉的冰菱花元素同构,立面内侧的结构构件与冰菱花形态的幕墙格栅构件重合,冰球训练场地上空钢桁架斜向轻薄的T型截面构件与冰菱花符号建立起拓扑关系,让建筑结构若隐若现,使建筑整体从外部视觉到内部空间更加统一,具有严谨的逻辑和工程的美感,让使用者由内到外均可感受到冰雪意象,桁架结构所呈现出的力学感知融合进冰菱花格栅的具象元素形态中,消解冰菱花的具象化意义。在冰菱花符号与桁架结构各自若现即离的状态当中,完成“一个谜的不透明的透明性”,从而唤起象征性。
为获得更为生动和丰富的象征性意味,我们对铝格栅幕墙的杆件进行适量删减,并将色彩运用到立面之上,突出体育场馆活跃与热烈的气氛。灯光的加入,描绘出冰雪世界诗一般的意境。
项目图纸
△总平面图
△首层平面图
△二层平面图
△地下一层平面图
△地下二层平面图
△剖面图
△立面示意图
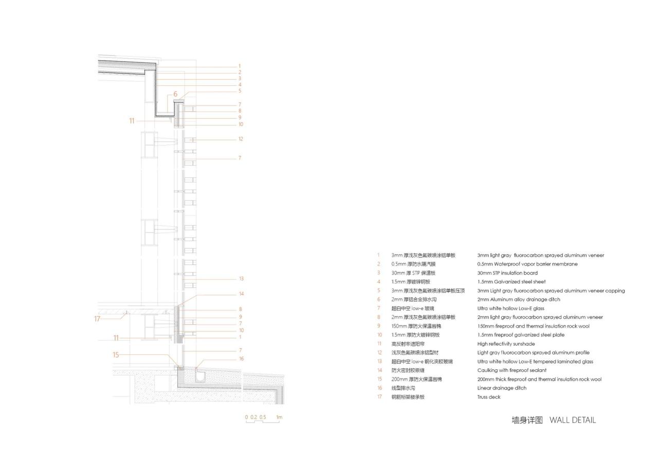
△墙身详图
项目信息
建筑设计:朱小地工作室·BIAD
面积:38960 m²
项目年份:2021
摄影师:张哲鹏
厂家:唐山中厚板材有限公司, 天津南玻, 舞阳钢铁有限责任公司, 青岛宏海
主创建筑师:朱小地
设计团队:朱小地、汪大炜、朱勇、张哲鹏、孙彦亮、章礽然、张昕、韩双、景阳、刘雯静
结构设计:刘立杰、韩博、王辉
设备设计:张建朋、石磊、周睿
电气设计:姜青海、王爽、陈璐
照明设计:北京光湖普瑞照明设计有限公司, 胡芳
可持续性和零能耗顾问:北京清华同衡规划设计研究院有限公司, 肖伟
业主:北京五棵松文化体育中心有限公司
室内设计:北京荔恒元装饰有限公司
地点:中国,北京


BIM建筑网



























