这座大楼是希腊拉米亚(Lamia)市的市政供水办公楼,位于城市东部两条干道的交汇处。设计旨在创造一座地标,一栋可互动的外向性大楼,它能够面向所有用户开放,具有良好的可达性,呈现出一种欢迎姿态。强有力的东西轴线穿过建筑的中心,而建筑的设计走向又会把它转向南侧。
可持续发展的设计是该项目的基本特征。全覆盖的水平向地热系统让我们可以利用稳定的地面温度,从而把暖气和空调的用电量降至最低。此外,玻璃幕墙和屋顶上增加了太阳能板,进而在可持续发展与生物气候原则的指引下,它变成了一栋零能源建筑。
这栋大楼由三种几何原型组成,分别是“柱廊”,“门廊” 和 “中庭”。
暴露的大块混凝土墙之间,通过可穿透的掏空,形成了有趣的空间韵律。变化的构成营造出生动的穿孔空间,充分体现出了建筑的公共属性。为顺应场地高差,北侧的裙楼被打造为两层,而南侧的被做成了三层。由于西立面是大楼唯一与周围城市有视线联通的一面,因而这里成为了建筑的主入口一侧。
层出不穷的入口,楼梯与斜坡缔造出丰富的空间体验,让访客可以有多样的流线选择,同时提供朝向室内、室外以及周边环境的变幻视角。垂直、水平与斜向的轴线,将整个大空间细分,由此形成了带有间隙的造型多样的墙面,外墙的穿透性得以增强。
中庭里面布置了许多座椅,还有水池、绿植与社交空间。值得一提的是,这里的跌水经过了精心的设计,不仅美观还可以降低工作区温度。水景与园林有助于改善夏季的小气候,从而进一步增强建筑可持续层面的表现。
设计的主要目的之一就是创造一块可供公众举办各类文化活动的场地。中庭与圆形剧场间建筑层面的互动形成了很好的衔接,增强了建筑的公共性。
双层的接待空间位于建筑西侧。它被设计成了一个开放的外向场地,欢迎着市民的到来,在城市与建筑间建立起一种有力联系。
通过增减外墙结构的片段,建筑的运动造型由此产生,灵动而富于戏剧性。体量切割将原本清晰的几何造型塑造成了可延伸空间体验的想象性结构。正对城市的大门让城市肌理也仿佛涌进了建筑。
项目图纸
△总平面图
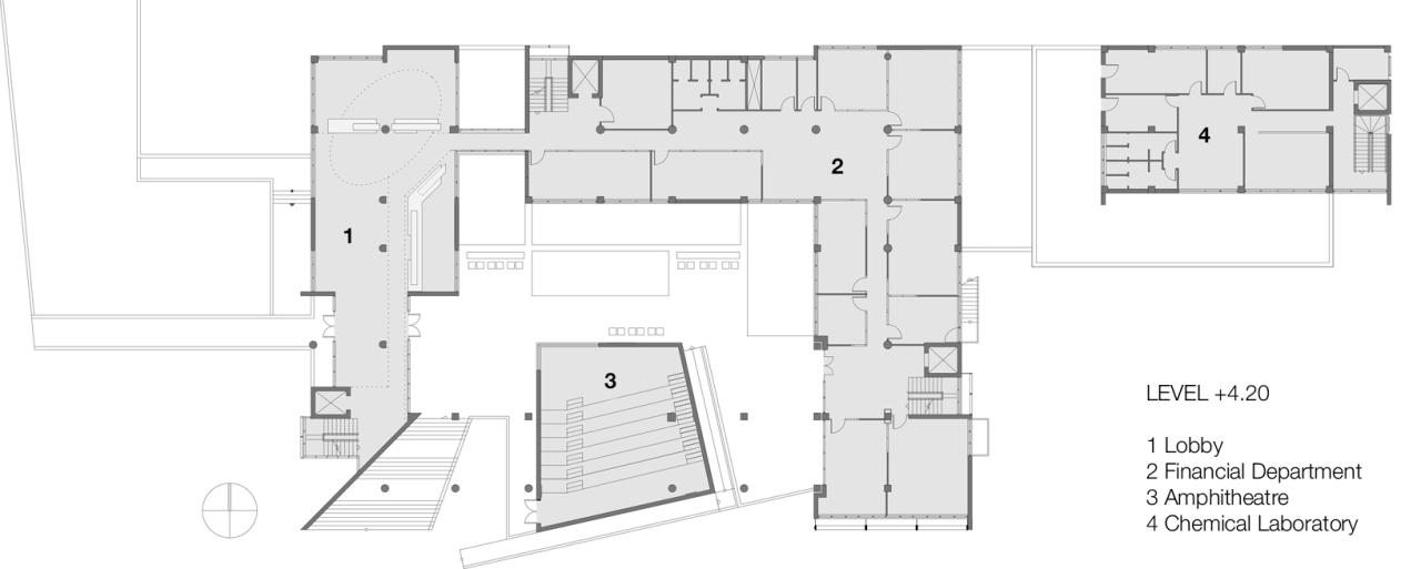
△一层平面图
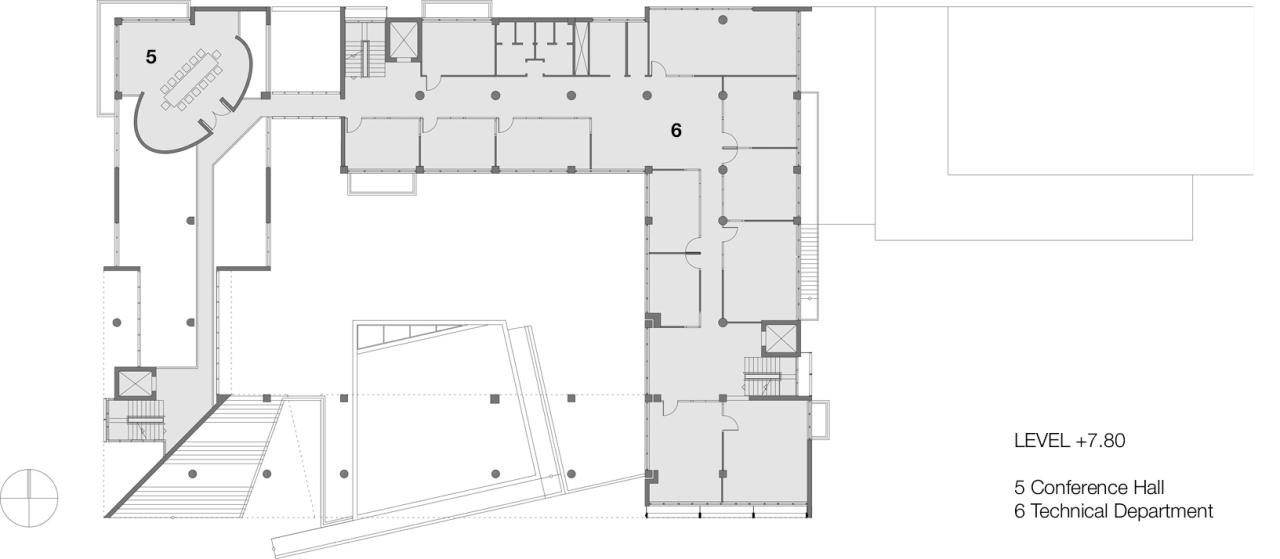
△二层平面图
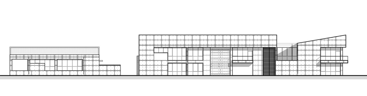
△立面图
△立面图
△立面图
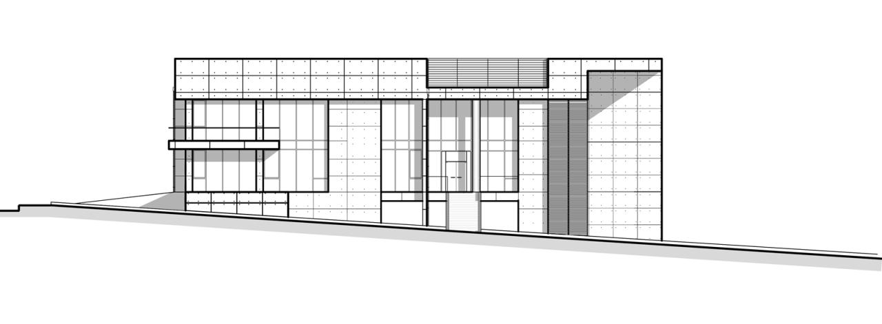
△立面图
△剖面图
△剖面图
项目信息
建筑师:VTria 建筑事务所
面积:3525m²
项目年份:2017
厂家:PERI
合作建筑师:Ifigeneia Triantafyllou,Dimitris Triantafyllou
土木工程师:Nikos Papadopoulos
电气工程师:Giannis Apostolou
工程:Tzortzis A.T.E.B.E. and Lantern Construction
主持建筑师:Vasilis Triantafyllou
地点:希腊,拉米亚

BIM建筑网




































