首先,在钣金模块随意画一个开放零件图。
建立好的零件如图这样。下面为关键的一步
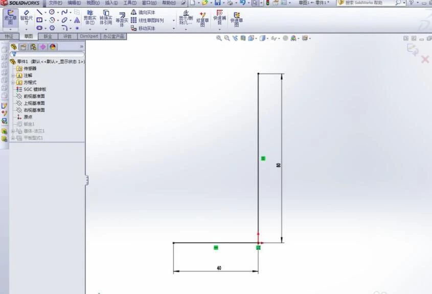
将钣金零件展开,在设计库中的平板型式-边线框显示下进行尺寸标注,一定要注意标注的尺寸为《参考尺寸》(图片的左侧有这个命令,一定要选中,否则展开尺寸失败),正确的标注尺寸为灰色显示,粉红色则不可以导出。
在子零件的文件-属性中进行自定义编辑,如图所示。展开的尺寸采用的是链接方式,直接点击刚才标注的尺寸,中间需要使用“*”分开。展开尺寸=长度*宽度*板厚。
上面的设置好后,一定要记得将钣金件折叠回去,否则装配关系会混乱的。当然如果大家不喜欢窗口中的灰色尺寸标注,可以点击视图-所有注解将尺寸标注进行隐藏。
最后在装配的时候,使用材料明细表进行查看。

微信公众号:xuebim
关注建筑行业BIM发展、研究建筑新技术,汇集建筑前沿信息!
← 微信扫一扫,关注我们+

BIM建筑网






