△夜景之下的“沃土”。开敞的石径显隐结合,秀珍庭院中央的大树吸引着人群的目光与脚步。
扬·盖尔曾在《交往与空间》一书中提到:“能方便而自信地出入;能从空间、建筑和城市中得到愉悦;能与人见面和聚会——不管这聚会是非正式的还是有组织的。上述要求是最基本的,它们只是要求为日常生活提供更好、更适用的环境。它们无论在何时都是有价值和不可替代的,或者说是一个开端。”
△配套公共服务空间与体育公园面朝珠江,背靠保利大厦,洲际酒店,高端住宅等密集的城市建筑群。
洲渚岸边公共形象的“伏”现
明朝万历年间,琶洲尚为珠江一隅四面环水的洲渚。而今,琶洲已从最初的贸易绿岛,变为了广州人工智能与数字经济实验的核心区。我们第一次抵达琶洲时,恰逢春天。时而侧目,发觉珠江南岸不知不觉间早已层台累榭,许多坚固而精致的方体建筑高耸入云。沿岸滨水景观兴建多时。
我们本次的项目便位于此处,为滨江体育公园的配套公共服务中心。承担咨询接待,休憩更衣,公共厕所等功能。体育公园面朝珠江,背靠保利大厦,洲际酒店等密集的城市建筑群,站在高处鸟瞰,公园傍水而生,盎然绿意栖伏日常。因此,在这里营造一处微微“伏”现,自低处沃土“生长”而来的公共服务空间,使之融于周边景观,便成为了设计的第一个旨归。
△从高空俯瞰“沃土”,项目与滨水景观自然融合。“十字小径”接续着原始的景观步道,空间开敞而静蔽。近处江水广阔,行船缓慢前行。
设计从既有的景观动线入手,需同时满足人群活动的两类状态:环绕或穿过建筑。于是,在最初的设计阶段,我们将原始景观上“堆”出一块自然凸起的绿地,再利用形似“十字交叉”的路径将其从中“切开”。
△将不同功能的四个体量空间分别置于小径两侧,中央形成秀珍庭院。
△覆土屋面形成自然起伏,空间消隐于青草灌木之间。
其次,沿着交叉的“十字小径”两侧分别置入了咨询厅,休息室,公共厕所和设备间等功能的四个体量,围合出小径中央过渡式的袖珍庭院。建筑为覆土形式,以拙朴之态融入体育公园的原始景观并与自然相依。
△内院中央的绿树形成视线集聚,“十字小径”时上时下,引导着人群活动。
△不同功能的空间隐于沃土之下,白色壁垒起伏。咨询厅与小径入口则具有一定的标识性。
融入自然的同时,作为公共服务设施,入口等局部也应具备必要的识别性。遂将部分空间抬高,形成一个显隐结合的立体式“十字交叉”路径。于第五立面而言,天光漫射,三两行人,开放的小径与原始步道接壤。屋面起伏,空间消隐于青草灌木之间,兼顾通达与静蔽。
△相交的小径和立面白色水磨石材质,呈现自然而粗糙的饰面效果。
△“十字小径”将人群动线引至秀珍庭院,绿树和堆叠的植物掩映其间。
由“闹”至“静”的空间氛围沉淀
你是否面临过不得不使用某处公厕的情况?传统公厕因为功能单一,空间消极等问题,形成了人们对其长期的抵触与避讳。而消除人们对于公厕具有的根深蒂固的消极印象,便是本次设计的第二个要旨。
1953年,法国建筑师Jean Prouvé在Petrol Station的设计当中,通过对空间及座椅的设计,赋予公共设施除必要性之外的自发性和社会性活动。回归到本次项目,我们则希望人们可以将其变成他们平日行为活动的一部分,而非完全的剥离。空间内置的咨询、休憩、更衣,厕所等功能,从更加日常化的角度回应使用者的需求,让人们意识到公共厕所不只是一处贴砖的房子。
△服务中心咨询大厅的灯光初现。
从远处观望,壁垒微微起伏,若隐若现。步入内院,建筑外墙的白色水磨石饰面,以密拼接工艺形成自然粗糙的立面效果。而人工物的白色,也意在强调建筑师对于空间的刻意“切割”。
相较于外观,我们选择以素混凝土与拉丝不锈钢为主要材质介入室内空间。通过裸露在外的天花与柱、家具,洁具等,营造“沉淀”与“静谧”的空间氛围,使建筑内外能够相对脱离并形成对比,同时起到防潮的效果。当人群从喧闹溽热的户外步入室内,视觉上能够形成“降温”的效果。
△咨询厅内部裸露在外的素混凝土天花和柱子,在空间氛围上沉淀出“冷”的效果。
△公共厕所内部由拉丝不锈钢定制而成的家具与洁具,在视觉上形成“降温”的效果。
夜晚降临,室内光线自白壁洞口倾泻而出,人的视线不由自主地在天然物与人工物之间穿插游移。
△夜晚来临时,至上而下地鸟瞰空间,室内光线自白壁洞口倾泻而出,人工物与自然物穿插显现。
设计反思及其存在的潜能
项目作为滨水景观内的覆土建筑,我们希望它能够以相对理想的状态与既有景观形成一体化的延伸感。但由于后期景观的不可控性,植物的种植稍显繁杂,这在一定程度上阻碍了覆土建筑的营造方式。立面上,我们原定的一体式水磨石材质,碍于时间周期和成本,最终改为水磨石预制板材,建筑立面的完整简洁效果也因此打了折扣。
△傍晚十分,都市灯火闪烁。江水广阔,三两行船,建筑外部的白色壁垒在公园里起伏,仿佛自绿色景观“生长而来”。
项目施工,高楼攀建,“沃土”与周围的环境同步“生长”。城市昼夜迭新,我们也见证了琶洲愈变愈好的过程。而“沃土”作为滨水公园内的公共服务空间,似乎存在着逻辑层面上的“繁殖”可能性,有一天,它会以因地制宜的外观“生长”在别的公园,别的岸边。
项目图纸
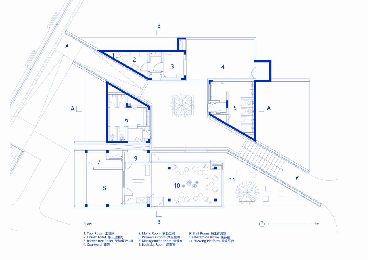
△平面图
△屋顶平面图
△立面图
△立面图
△剖面图
△平面图
△墙身大样图
△墙身大样图
项目信息
项目名称:沃土 | 琶洲保利体育公园服务中心
功能:服务中心,公共厕所,休息区
设计时间:2018.05-2019.09
施工时间:2019.09-2019.12
地点:广州市海珠区琶洲保利体育公园
建筑面积:194.8平方米
团队:肖磊,滋埜悠司,杨毓琼,王晗,曹仪,Eleonora Nucci
合作:和作结构建筑研究所
业主:广州保利
类型:建筑及室内
状态:建成
摄影师:雷坛坛

BIM建筑网
























