朱家角游客服务中心位于上海青浦朱家角古镇历史文化风貌区的西北角,在古镇与新镇的交界之处。在满足建筑物和场地的基本使用需求之外,这个新的建筑显然要面对两个问题:首先必然要面对朱家角古镇风貌区的地域文化;其次要应对郊区新城的场所特征。这两个不同角度的问题最终合在一处,成为建筑思考的起点。
游客中心建筑采用深灰色金属坡顶,满足风貌区规划的要求。坡顶做了变形处理,和传统双坡屋面又有所不同。新建筑体量比风貌区的老房子要大一些,单一的坡顶变形为两个三角组合,改小了建筑的尺度感。
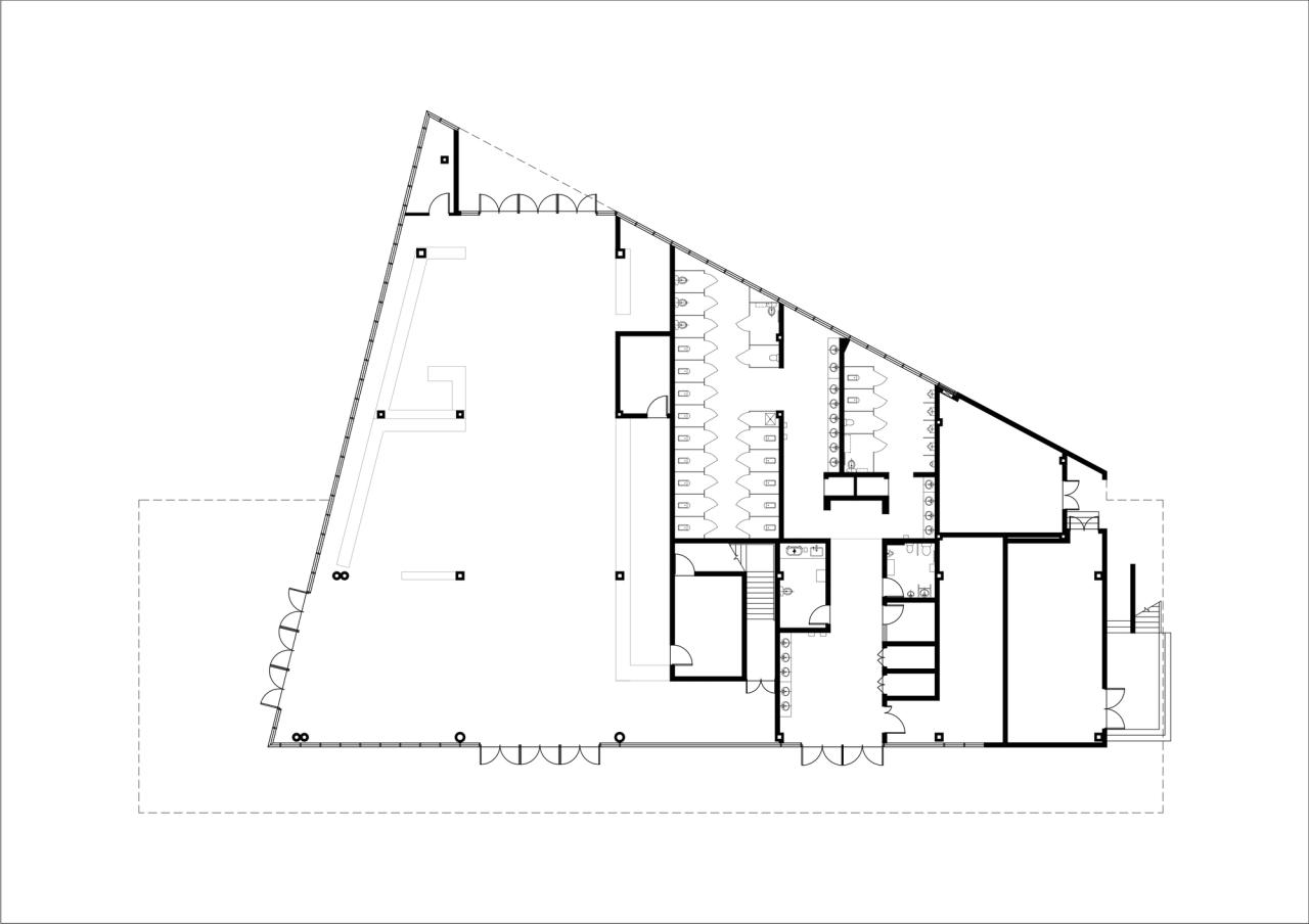
建筑分为两层。一层主要是游客服务大厅和公共卫生间。建筑外墙以落地玻璃窗为主,透明的表皮使建筑具有一种公共性,对街道形成一个友好的界面,同时也给室内带来更多的自然光线。
建筑二层的功能主要是旅游管理用房。建筑外墙采用了悬挑的胶合木构架,它形成了一个具有识别性的建筑外观。另外,它也与朱家角古镇中那些老建筑中常见的木门窗和外墙展开对话,体现了不同时代的技术与材料的转变。
建筑与课植园路相邻。面对街道,建筑出挑形成了一个入口空间。在略显空旷的新镇城市空间之中,这个被悬挑而遮蔽的空间会给人留下与场所有关的深刻体验。悬挑而出的正面采用了镜面不锈钢格板构成的通透的外围护。光线可以进入到悬挑的空间里,而镜面又把外部的街道景观映射到建筑边界上,它们共同构成了一个独特的建筑与城市的交接点。
游客服务大厅主要提供售票、咨询、休息、纪念品等服务。在服务台上方设计了采光天窗,给内部空间带来更多的自然光线。公共卫生间符合AAA级旅游厕所标准,配备有公共洗手区、家庭卫生间和母婴室。卫生间内部也设计了天窗,尽量引入自然光线,避免公厕给人阴暗潮湿的感受。
朱家角游客服务中心不仅在建筑形式上试图与古镇历史环境建立一个有所关照的对应,同时还希望直面郊区新城常见的无地方性,为场所的重新建立做出贡献。
项目图纸
▲基地示意图
▲一层平面图
▲二层平面图
▲剖面图
项目信息
建筑设计 : 无样建筑工作室
面积 : 1781 m²
项目年份 : 2021
摄影师 :吴清山
厂家 : SKF Construction
主创建筑师 : 冯路
设计团队 : 李传琛、朱文来、朱贝宝、高益
合作方 : 上海城乡建筑设计院有限公司, 上海思卡福建筑工程有限公司
地点 : 中国,上海

BIM建筑网























