“作为设计师,我们希望办公空间不是枯燥伏案的场所,而是一个以多样化场景构成的可持续空间。这个'黑白容器'是我们为自己重新定义的办公空间,在黑白的底色之上,我们将所需的辅助功能和分隔墙体同化,空间从而显现出一种可感知的秩序感和流动性,辅以可自由转换的空间场景,新的故事和未来的畅想在这里不断生长。”
line+上海办公室选址于上海虹桥商务区内的诺亚财富中心。作为走出杭州的第一站,line+希望在此打造一个集企业展示、学术沙龙和舒适办公为一体的空间。在新地域拓展业务的同时,新的办公场地也将树立更高品质的企业形象。
诺亚财富中心的建筑由福斯特建筑事务所设计。作为高端写字楼,成熟的架空地板层、地送风系统以及天花集成系统为后续设计提供了良好的前提。端部开间拥有两个连续幕墙面,从而获取了极好的城市景观和自然光照。顶部的金色铝板是立面材料向内的延伸,保证了建筑立面的完整性,却也成了室内既定的预设条件。
和line+杭州办公室一样,我们希望这里不是枯燥伏案的场所,而是设计师、业主、各类专家进行交流碰撞的空间。因此在功能排布上,设计要解决的是如何让展厅、沙龙以及30人的办公在不到300方的面积内生动地展开。同时在空间形式上,如何尽量减少无法拆除的金色铝板对最终效果的影响。
△ 空间概念
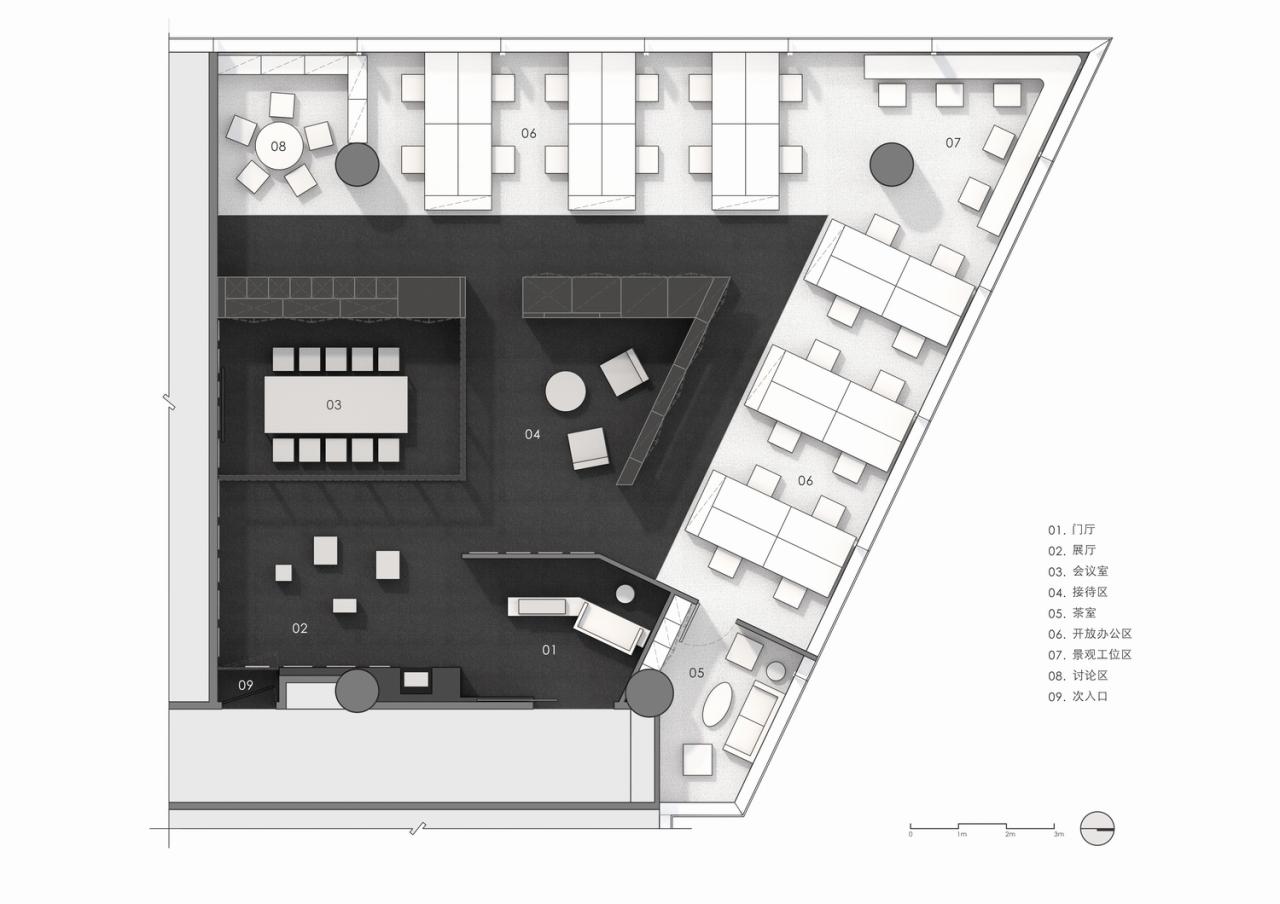
设计遵循原有的场地平面逻辑,将空间分为办公和公共两个区域。办公区域自然沿幕墙侧展开,同时拥有敞亮的办公氛围和一定的私密性。公共区域则包含了前台、展厅、会议、接待等功能。
△ 体块生成
在空间上,两个区域由中部的集中功能墙体分隔,在视觉上则采用黑白两色的对比。空间和视觉分隔的错位自然形成了主走道。
深色的墙面地面配合顶部的发光膜系统塑造了公共区域的纯粹气质,也更能凸显展品本身。考虑到所受光照条件的不同和材质本身的差异,墙面的乳胶漆、烤漆面以及地面的地毯都做了专门的颜色挑选,以确保呈现效果的统一。
移动隔断则使得公共区域可以在常规会议、沙龙和展览等不同模式间随意切换。这样的灵活性带来的是更高的空间利用频率。
△ 公共区域的不同使用状态
为了让功能区域最大化,我们将所有辅助功能集中在用以做空间分隔的中部墙体。水吧台、打印机、服务器机柜、书籍模型展柜以及储藏等功能对应地向两侧提供服务。墙体保证了两个区域一定的独立性并丰富了空间层次。
在锐角侧打开的取景框对应建筑形体,不仅让接待区的使用者享受城市景观,更是对不同区域间互动沟通的促进。
由白色办公家具和白色地毯组成的办公区域和公共区域的深色形成对比,将自然光照形成的明朗氛围最大化。顶部原有的金色铝板由此得以自然地纳入,对室内空间的影响降至最低。端部窗侧的景观工位给午餐的员工带来更好的心情。
胡桃木、跳色家具在黑白两色的纯净环境中尤为凸显,为空间带来温暖和品质感。
日常工作中,员工开会讨论、休闲咖啡亦或是客户来访参观,都穿行于两个区域间。即使面积不足300平,空间和色彩的转换也同样能带来丰富的体验。
△ 日常办公室模式平面
△ LINK模式平面
项目信息
项目名称:line+上海办公空间
项目位置:上海市诺亚财富中心
项目面积:290㎡
设计建成:2021.03-2021.05
设计单位:line+建筑事务所
主持建筑师:孟凡浩 朱培栋
项目主创:祝骏
设计团队:祝骏、杨莉、张思思、邱丽珉
家具:杭州智楷家具、Enjoyspace
摄影:yuuuunstudio云眠

BIM建筑网































