由魏春雨带领地方工作室设计的水口镇如意村文化服务中心及特色工坊位于湖南省永州市江华瑶族自治县水口镇,该镇是在原有自然村落树状分布的基础上,由位于涔天河水库扩建工程水淹区的老镇整体搬迁扩建而成的移民新镇。
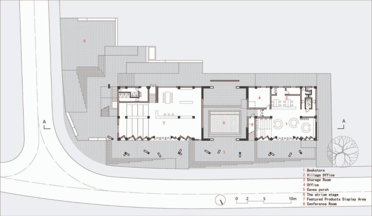
江华瑶族水口镇如意村文化服务中心及特色工坊占地面积约为1835㎡,建筑面积约为2093㎡,是一处集村务办公、村民活动、图书阅览、文艺观演、当地文旅宣传及特色产品展示销售等于一体的小型乡镇文化综合体,项目基地西高东低有约两米高差,顺着高差将场地划分为三个台地,自西向东依次为:文化服务中心、中庭戏台、特色工坊。
江华瑶族自治县是我国南岭腹地瑶族人口最集中的一个县城,被誉为“神州瑶都”。水口镇如意村瑶民原多居住在深山密林之中,人称“高山瑶”,他们信奉盘王为自己的祖先,在每年农历十月十六日全县各地或大或小均会举行隆重肃穆的祭祀活动,人称“盘王节”,亦被称为当地的“第二个春节”。瑶家人无论是在盘王节亦或是其他喜庆日子,均乐意穿戴传统服装,高奏长鼓笙乐,通过瑶族长鼓舞表达其兴致与热情。
该建筑承载着村民的文娱办公活动,同时也承载着当地的祭祀等习俗活动,因此从另一方面讲该建筑似乎也充当着一定的祠堂功能,这促使我们在设计中有意建构出具有物质和精神双重意义的空间场所。
天井与“堂屋”
中庭戏台的空间原型来自当地新老民居中的堂屋和天井。该空间即是满足村民节庆活动的一个仪式场所,同时也是村民日常休闲的汇聚点。设计中将檐廊、中庭、天井以及戏台一同建构起“排门-院落-天井-堂屋”的空间序列关系。设计中期望将中庭戏台建构成为一个仪式与日常并存或具有某种“天地意识”的空间。
檐廊与楼梯
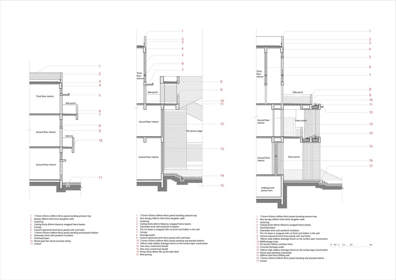
檐廊和楼梯是建筑中比较突出的空间构成要素,形成建筑由外而内的立体循环路径。檐廊空间在适应当地夏季炎热多雨气候的同时,也加强了建筑的开放性和公众参与性,是建筑的前导空间。同时,设计中楼梯不仅仅承载着竖向交通功能,也是作为一个空间要素与图式语言植入建筑空间。
晒台
建筑中的平屋顶一方面可以作为当地村民的公共晒台,同时又是村民的公共活动空间,也是建筑中的观景平台。屋顶作为建筑的顶部空间,具有向山景和天空打开的天然属性,相对于其他空间更具纯粹性和开阔感。
项目建成后得到了当地政府领导及村民的普遍认同,也许是因为设计中采取的策略相对简单和纯粹,顺势而为选择让建筑跟当地村民自建房保持一致,选用当地红砖、水泥砖和混凝土等普遍存在的低价材料,通过提取当地新老民居中的某些原真因子进行转译,尝试一种有差异性的空间建构方式,试图让当地村民在身处“异样”或“陌生”的场所中能够感知到某种“熟悉”的气息。
项目图纸
△模型图
△总平面图
△一层平面图
△二层平面图
△三层平面图
△立面图
△立面图
△立面图
△立面图
△特殊剖面图
△剖面图
△轴测图
△中庭透视图
△分析图
△节点大样图
△分析图
项目信息
建筑设计 : 地方工作室
面积 : 2093 m²
项目年份 : 2021
摄影师 :许昊皓, Sheng Ouyang, Juncheng Meng, Biao Hu
主创建筑师 : 魏春雨,欧阳胜,任榕
设计团队 : 曹广、孟俊丞、朱赛男、陈行、谭茜、谢孜非、侯帅东、涂鑫
合作方团队 : 朱建华、邓远、刘剑、孙末兰、张宁
业主 : 江华瑶族自治县水口镇人民政府
合作方 : 湖南大学设计研究院有限公司
地点 : 中国,江华瑶族自治县

BIM建筑网



















































