项目背景
四川先鹰航空发动机零部件生产基地位于成都市龙泉驿区,主要从事航空发动机零部件的研发制造,航空发动机是飞机的心脏,被誉为“工业之花”,它直接影响飞机的性能、可靠性及经济性,是一个国家科技、工业和国防实力的重要标志。
传统的“四水归堂”是中国民居常用的平面布局形式,以传统的“间”为基本单元,布局紧凑。
△手工模型
△试验车间
我们一直尝试如何让传统建筑文化焕发出新的生机?
提取传统建筑的空间布局和门窗体系,用简约的方式诠释传统建筑的精神内涵,提升建筑的文化韵味和品质。
借用传统四合院的平面布局形式,两个四合院错落拼接,利用架空层和园区其他功能进行联系,方便工作人员高效沟通协作的同时提供多个院落休闲空间。
四川盆地属于亚热带季风气候,建筑屋顶架空层在炎热的夏季起到自然通风散热的作用。架空屋顶借鉴当地传统建筑的节能方式,通过空气间层的自然通风,降低夏季太阳辐射对顶层建筑的热效应,通过被动节能设计,提高建筑舒适度,降低建筑能耗。
△质检楼
质检楼与试验车间屋顶造型相似,结合质检楼的窗户形态,简化组合,形成轻松自由的立面形态。
项目图纸
△ 总平面图
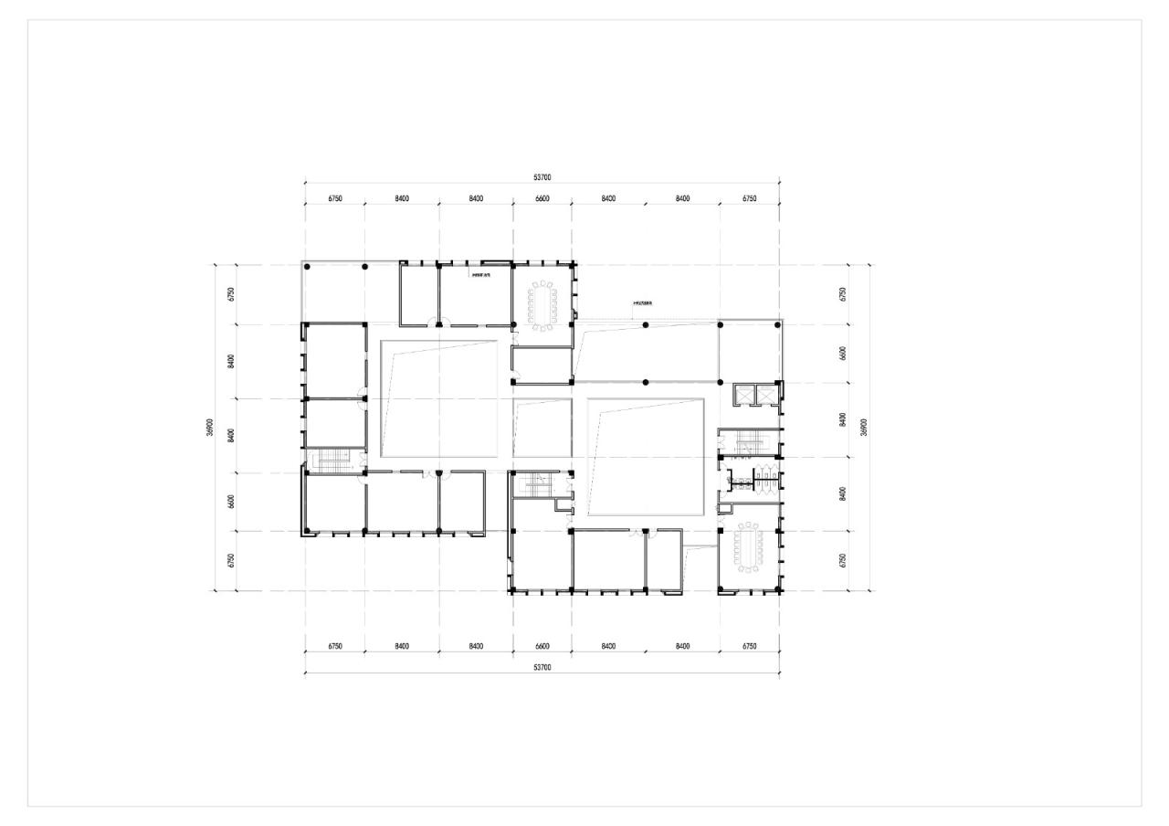
△ 一层平面图
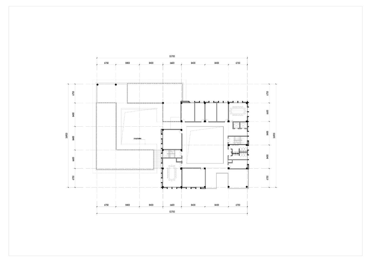
△ 二层平面图
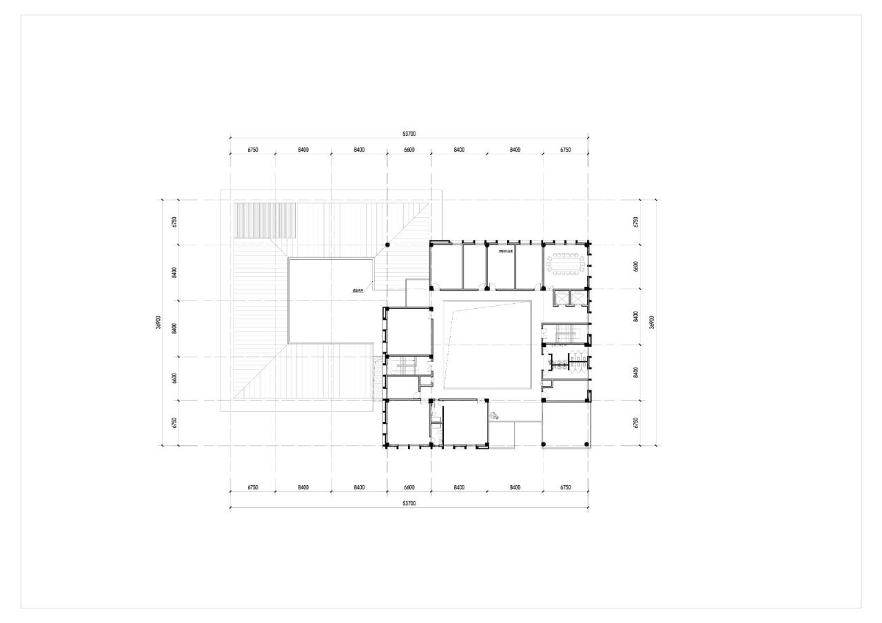
△ 三层平面图
△ 四层平面图
△ 四层屋架
△ 屋顶平面图
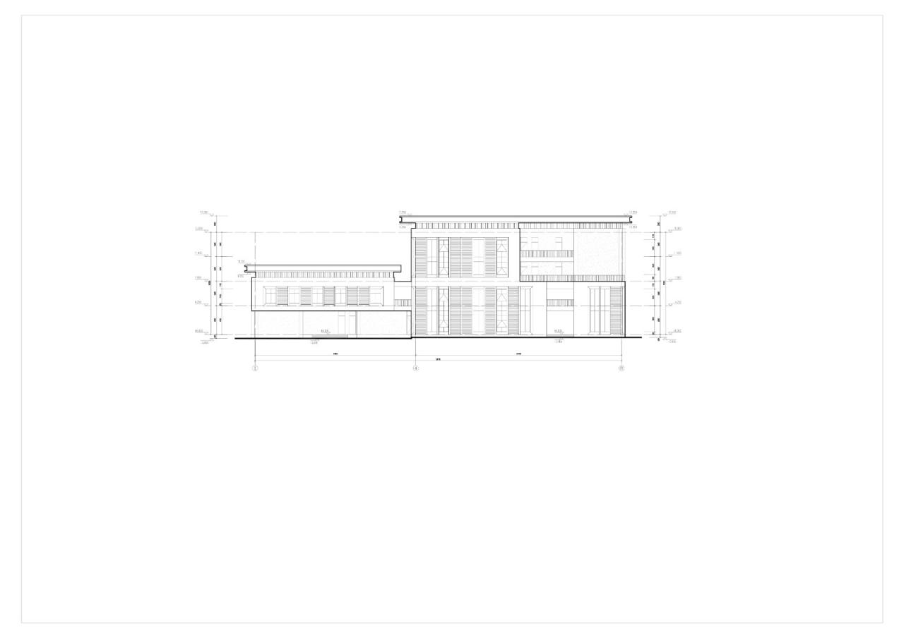
△ 立面图
△ 立面图
△ 立面图
△ 立面图
△ 剖面图
项目信息
项目名称:四川先鹰航空发动机零部件生产基地
项目地址:中国四川省成都市龙泉驿区国家级经济技术开发区
项目类型:办公产业园
项目面积:57686.88㎡
业主:成都和鸿科技有限公司(CHENGDU HEHONG TECHNOLOGY CO.,LTD)
业主总工程师:雷施福
设计公司:汉嘉设计集团股份有限公司西南分公司
公司院长:俞列
总建筑师:王哲
设计总监:王川
建筑&景观方案团队:刘婷婷、滕树杰、张奇
建筑施工图团队:王伟、徐净宇、向德军、包伟、黄强、马邢、向非凡、王亚洲
完工时间:2020年11月
建筑主材:真石漆,玻璃
摄影师:邓科
地址 : 成都市武侯区人民南路三段2号汇日央扩写字楼30F

BIM建筑网






























